Дніпропетровська обл., м. Жовті Води, вул. Свободи, 39; Оренда – приміщення 3-го поверху площею 34,1 кв.м. (В)

511.50 грн
15.00 грн / м2
Україна, Дніпропетровська обл., Жовті Води, бульвар Свободи, 39
Перейти до аукціону на сайті
  • Інформація
  • Опис
  • Документи
Дата оголошення пропозиції:
25 січня 2024
Площа:
34.10 м2
Тип об’єкта:
Приміщення
Тип аукціону:
Англійський аукціон
Статус аукціону:
Аукціон не відбувся
Тип угоди:
Оренда
Розмір мінімального кроку:
15.00 ₴
Розмір гарантійного внеску:
306.90 ₴
Початок прийому пропозицій:
25.01.2024 14:24:15
Завершення прийому пропозицій:
28.02.2024 20:00:00
Проведення аукціону:
29.02.2024 11:45:00
Лот:
CLE001-UA-20240125-55410
№ лоту (УТК):
UTK011122_4T
Лот виставляється на торги (раз):
10
Стислий опис майна:
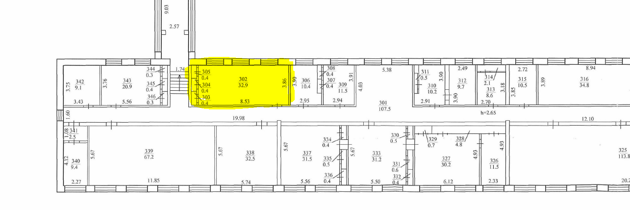
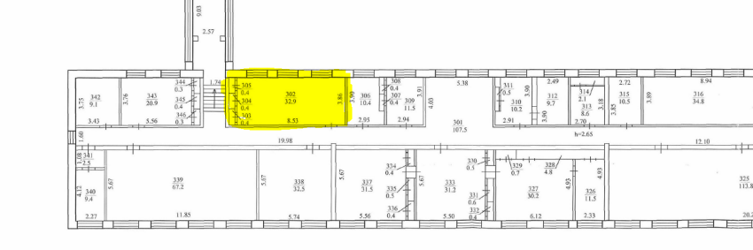
Пропонується до оренди приміщення 3-го поверху площею 34,1 кв.м. Розташування – 3-поверхова будівля (літ.А-Б-В, приміщ.№302 - 32,9 кв.м та вбудовані шафи №№303-305 площею 1,2 кв.м), знаходиться в центральному районі міста. Поруч знаходяться відділення банку, високий автомобільний і пішохідний потоки. Стан приміщення задовільний, підходить для офісу, Ідеальне місце під розвиток будь-якого бізнесу. Можливість передачі приміщень в суборенду. Характеристики: • Кількість поверхів – 3 • Загальна площа – 3622,5 кв.м. • Площа запропонована до оренди – 34,1 кв.м. • Електропостачання, водопостачання, теплопостачанняцентралізоване; • Земельна ділянка – 0, 603 га (договір оренди)
Адреса місцезнаходження майна:
Україна, Дніпропетровська обл., Жовті Води, бульвар Свободи, 39
Схожі пропозиції
03.09.2025
Дніпропетровська обл., м. Кам’янське, вул. Героїв АТО, 1. Оренда – приміщення 3-го поверху площею 17,30 кв.м.(В)
519.00 грн
30.00 грн / м2
Приміщення
Дніпропетровська обл., м. Кам’янське, вул. Героїв АТО, 1. Оренда – приміщення 3-го поверху площею 17,30 кв.м.(В)
Україна, Дніпропетровська обл., Кам’янське, Кам’янське, вул. Героїв АТО, 1
25.04.2025
Дніпропетровська обл., м. Дніпро, вул. Князя Ярослава Мудрого, 3. Оренда – приміщення 5-го поверху площею 23,10 кв.м. (В)
693.00 грн
30.00 грн / м2
Приміщення
Дніпропетровська обл., м. Дніпро, вул. Князя Ярослава Мудрого, 3. Оренда – приміщення 5-го поверху площею 23,10 кв.м. (В)
Україна, Дніпропетровська обл., м. Дніпро, вул. Князя Ярослава Мудрого, 3
23.01.2024
Дніпропетровська обл., м. Кам’янське, вул. Героїв АТО, 1;  Оренда – приміщення 3-го поверху площею 17,3 кв.м. (В)
259.50 грн
15.00 грн / м2
Приміщення
Дніпропетровська обл., м. Кам’янське, вул. Героїв АТО, 1; Оренда – приміщення 3-го поверху площею 17,3 кв.м. (В)
Україна, Дніпропетровська обл., Кам’янське, Героїв АТО, 1
10.09.2024
Дніпропетровська обл., м. Кривий Ріг, вул. Дніпропетровське шосе, 48;  Оренда – приміщення 3-го поверху, площею 403,4 кв.м. (В)
6 204.29 грн
15.38 грн / м2
Приміщення
Дніпропетровська обл., м. Кривий Ріг, вул. Дніпропетровське шосе, 48; Оренда – приміщення 3-го поверху, площею 403,4 кв.м. (В)
Україна, Дніпропетровська обл., Кривий Ріг, вулиця Дніпровське шосе, 48
Переглянуті пропозиції
21.03.2025
м. Київ, вул. Джона Маккейна, 40, літ. «А» (Печерський р-н). Оренда – група приміщень на 1-му поверсі, площею 65,60 кв.м. (В)
22 180.67 грн
338.12 грн / м2
Приміщення
м. Київ, вул. Джона Маккейна, 40, літ. «А» (Печерський р-н). Оренда – група приміщень на 1-му поверсі, площею 65,60 кв.м. (В)
Україна, м.Київ, Київ, вулиця Джона Маккейна, 40