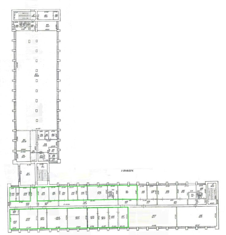
Львівська обл., м. Новояворівськ, вул. Шевченка,7. Оренда – приміщення 3-го поверху площею 314 кв.м. (В)

3 165.12 грн
10.08 грн / м2
Україна, Львівська обл., Новояворівськ, вул. Шевченка,7
Перейти до аукціону на сайті
  • Інформація
  • Опис
  • Документи
Дата оголошення пропозиції:
28 грудня 2021
Площа:
314.00 м2
Тип об’єкта:
Приміщення
Тип аукціону:
Англійський аукціон
Статус аукціону:
Аукціон не відбувся
Тип угоди:
Оренда
Розмір мінімального кроку:
100.00 ₴
Розмір гарантійного внеску:
1 899.07 ₴
Початок прийому пропозицій:
28.12.2021 11:16:09
Завершення прийому пропозицій:
26.01.2022 20:00:00
Лот:
UA-PS-2021-12-28-000008-2
№ лоту (УТК):
UTK150721_01Т
Лот виставляється на торги (раз):
6
Стислий опис майна:
Пропонуються до оренди приміщення 3-го поверху площею 314 кв.м. Будівля знаходиться у центральній частини міста, розвинена інфраструктура. Характеристики - кількість поверхів – 3 - Опалення , електропостачання,водопостачання, водовідведення – централізоване, технічна охорона. - потребує ремонту - Вільна до використання потужність – 20кВт - земельна ділянка – 0,52 га (податок);
Адреса місцезнаходження майна:
Україна, Львівська обл., Новояворівськ, вул. Шевченка,7
Схожі пропозиції
27.12.2024
Львівська обл., с. Ямпіль, вул. Шевченка, 75;     Оренда – приміщення площею 19,7 кв. м ( В )
295.50 грн
15.00 грн / м2
Приміщення
Львівська обл., с. Ямпіль, вул. Шевченка, 75; Оренда – приміщення площею 19,7 кв. м ( В )
Україна, Львівська обл., Ямпіль, вул. Шевченка, 75
21.11.2023
Львівська обл., м. Глиняни, вул. Св.Миколая, 5;    Оренда – приміщення 1-го поверху площею 18,50 кв.м. (В)
647.69 грн
35.01 грн / м2
Приміщення
Львівська обл., м. Глиняни, вул. Св.Миколая, 5; Оренда – приміщення 1-го поверху площею 18,50 кв.м. (В)
Україна, Львівська обл., Глиняни, вул. Св. Миколая, 5
Львівська обл. м. Добромиль, вул. Галицька, 24. Оренда – приміщення складу площею 24,3 кв.м. (В)
416.02 грн
17.12 грн / м2
Приміщення
Львівська обл. м. Добромиль, вул. Галицька, 24. Оренда – приміщення складу площею 24,3 кв.м. (В)
Україна, Львівська обл., м. Добромиль, вул. Галицька, 24
01.04.2025
Львівська обл., м. Старий Самбір, вул. Л.Галицького,61.Оренда – приміщення 1-го поверху площею 52,80 кв. м. (В)
4 295.81 грн
81.36 грн / м2
Приміщення
Львівська обл., м. Старий Самбір, вул. Л.Галицького,61.Оренда – приміщення 1-го поверху площею 52,80 кв. м. (В)
Україна, Львівська обл., м. Старий Самбір, вул. Л.Галицького, 61
Переглянуті пропозиції
м. Івано-Франківськ вул. Ребета, 2. Оренда Нежитлові приміщення площею 1247,5 кв.м.(В)
12 250.45 грн
9.82 грн / м2
Приміщення
м. Івано-Франківськ вул. Ребета, 2. Оренда Нежитлові приміщення площею 1247,5 кв.м.(В)
Україна, Івано-Франківська обл., м. Івано-Франківськ, вул. Ребета, 2
Полтавська обл., м. Полтава, вул. Загородня, буд.30. Оренда – приміщення на 1-му поверсі площею 22,90 кв.м.(В)
1 621.32 грн
70.80 грн / м2
Приміщення
Полтавська обл., м. Полтава, вул. Загородня, буд.30. Оренда – приміщення на 1-му поверсі площею 22,90 кв.м.(В)
Україна, Полтавська обл., м. Полтава, вул. Загородня, буд.30