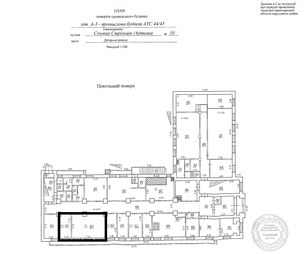
Дніпропетровська обл., м. Дніпро, вул. Січових Стрільців, 10. Оренда – приміщення цокольного поверху площею 47,90 кв.м. (В)

8 559.25 грн
178.69 грн / м2
Україна, Дніпропетровська обл., м. Дніпро, вул. Січових Стрільців, 10
Перейти до аукціону на сайті
  • Інформація
  • Опис
  • Документи
Дата оголошення пропозиції:
28 грудня 2021
Площа:
47.90 м2
Тип об’єкта:
Приміщення
Тип аукціону:
Англійський аукціон
Статус аукціону:
Аукціон не відбувся
Тип угоди:
Оренда
Розмір мінімального кроку:
100.00 ₴
Розмір гарантійного внеску:
5 135.55 ₴
Початок прийому пропозицій:
28.12.2021 11:07:12
Завершення прийому пропозицій:
26.01.2022 20:00:00
Лот:
UA-PS-2021-12-28-000004-2
№ лоту (УТК):
UTK281221_04P
Лот виставляється на торги (раз):
1
Стислий опис майна:
Пропонується до оренди приміщення цокольного поверху площею 47,90кв.м. Розташування - будівля знаходиться в центральному районі міста. Поруч знаходяться відділення банку, високий автомобільний і пішохідний потоки. Стан приміщення задовільний, підходить для офісу, студії, Ідеальне місце під розвиток будь-якого бізнесу. Можливість передачі приміщень в суборенду. Характеристики: - Кількість поверхів – 3 - Загальна площа – 2854,80 кв.м. - Площа запропонована до оренди – 47,90 кв.м. - Електропостачання, водопостачання, теплопостачання, охорона та обслуговування пожежної сигналізації, вивіз сміття, прибирання загальних місць та території; - Земельна ділянка – 0, 1636 га (договір оренди)
Адреса місцезнаходження майна:
Україна, Дніпропетровська обл., м. Дніпро, вул. Січових Стрільців, 10
Схожі пропозиції
26.01.2023
Дніпропетровська обл., м. Дніпро, вул. Шолохова, 7. Оренда – приміщення 1-го поверху площею 79,60 кв.м. (В)
24 109.25 грн
302.88 грн / м2
Приміщення
Дніпропетровська обл., м. Дніпро, вул. Шолохова, 7. Оренда – приміщення 1-го поверху площею 79,60 кв.м. (В)
Україна, Дніпропетровська обл., м. Дніпро, вул. Шолохова, 7
27.09.2022
Дніпропетровська обл., м. Новомосковськ, вул. Північна, 5. Оренда – приміщення громадського будинку нежитлових будівель площею 2636,60 кв.м. (В)
43 952.12 грн
16.67 грн / м2
Приміщення
Дніпропетровська обл., м. Новомосковськ, вул. Північна, 5. Оренда – приміщення громадського будинку нежитлових будівель площею 2636,60 кв.м. (В)
Україна, Дніпропетровська обл., м. Новомосковськ, вул. Північна, 5
10.11.2023
Дніпропетровська обл., м. Дніпро, вул. Січових Стрільців, 10. Оренда – приміщення цокольного поверху площею 47,90 кв.м. (В)
5 006.51 грн
104.52 грн / м2
Приміщення
Дніпропетровська обл., м. Дніпро, вул. Січових Стрільців, 10. Оренда – приміщення цокольного поверху площею 47,90 кв.м. (В)
Україна, Дніпропетровська обл., м. Дніпро, вул. Січових Стрільців, 10
25.08.2022
Дніпропетровська обл., м. Дніпро, вул. Князя Ярослава Мудрого, 3. Оренда – приміщення 5-го поверху площею 18,60 кв.м. (В)
1 553.10 грн
83.50 грн / м2
Приміщення
Дніпропетровська обл., м. Дніпро, вул. Князя Ярослава Мудрого, 3. Оренда – приміщення 5-го поверху площею 18,60 кв.м. (В)
Україна, Дніпропетровська обл., м. Дніпро, вул. Князя Ярослава Мудрого, 3