Полтавська обл., Кременчуцький р-н, м. Кременчук, вулиця Соборна, 17; Оренда – приміщення 1-го поверху площею 21,70 кв.м. (В)

1 316.32 грн
60.66 грн / м2
Україна, Полтавська обл., Кременчук, Соборна вулиця, 17
Перейти до аукціону на сайті
  • Інформація
  • Опис
  • Документи
Дата оголошення пропозиції:
23 лютого 2024
Площа:
21.70 м2
Тип об’єкта:
Приміщення
Тип аукціону:
Англійський аукціон
Статус аукціону:
Аукціон не відбувся
Тип угоди:
Оренда
Розмір мінімального кроку:
100.00 ₴
Розмір гарантійного внеску:
789.79 ₴
Початок прийому пропозицій:
23.02.2024 12:10:32
Завершення прийому пропозицій:
25.03.2024 20:00:00
Проведення аукціону:
26.03.2024 11:35:00
Лот:
CLE001-UA-20240223-27099
№ лоту (УТК):
UTK081223_03T
Лот виставляється на торги (раз):
3
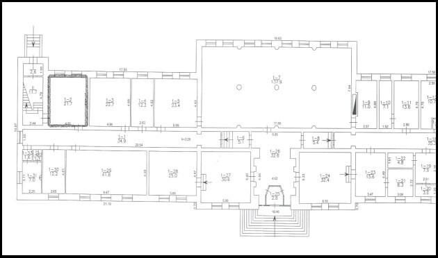
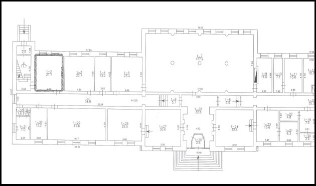
Стислий опис майна:
Пропонується до оренди приміщення площею 21,70 кв.м. Приміщення розташоване на 1 поверсі 3-х поверхової адміністративної будівлі, яка знаходиться в центрі м. Кременчук. Вхід з вулиці. Характеристики • Кількість поверхів – 3; • Загальна площа – 2757,60 кв. м.; • Площа запропонована до оренди 21,70 кв. м.; • Опалення – наявне; • Дозволена потужність – до 5 кВт; • Земельна ділянка – 0,5591 га (договір оренди)
Адреса місцезнаходження майна:
Україна, Полтавська обл., Кременчук, Соборна вулиця, 17
Схожі пропозиції
20.08.2024
Полтавська обл., Лубенський р-н, м. Хорол, провулок Заливний, 6. Оренда – приміщення загальною площею 249,90 кв.м. (В)
8 776.50 грн
35.12 грн / м2
Приміщення
Полтавська обл., Лубенський р-н, м. Хорол, провулок Заливний, 6. Оренда – приміщення загальною площею 249,90 кв.м. (В)
Україна, Полтавська обл., Лубенський р-н, м. Хорол, провулок Заливний, 6
17.01.2025
Полтавська обл., Кременчуцький р-н, с. Великі Кринки, вулиця Полтавська, 29. Оренда – приміщення 1-го поверху загальною площею 49,50 кв.м (В)
1 069.20 грн
21.60 грн / м2
Приміщення
Полтавська обл., Кременчуцький р-н, с. Великі Кринки, вулиця Полтавська, 29. Оренда – приміщення 1-го поверху загальною площею 49,50 кв.м (В)
Україна, Полтавська обл., Кременчуцький р-н, с. Великі Кринки, вул. Полтавська, 29
05.09.2023
Полтавська обл., м. Решетилівка, вул. Старокиївська, 2. Оренда – приміщення 1-го поверху площею 30,70 кв.м. (В)
686.45 грн
8.00 грн / м2
Приміщення
Полтавська обл., м. Решетилівка, вул. Старокиївська, 2. Оренда – приміщення 1-го поверху площею 30,70 кв.м. (В)
Україна, Полтавська обл., м. Решетилівка, вул. Старокиївська, 2
09.01.2024
Полтавська обл., Кременчуцький р-н, м. Горішні Плавні, вулиця Миру, 18. Оренда – приміщення 3-го поверху площею 15,90 кв.м. (В)
1 067.37 грн
67.13 грн / м2
Приміщення
Полтавська обл., Кременчуцький р-н, м. Горішні Плавні, вулиця Миру, 18. Оренда – приміщення 3-го поверху площею 15,90 кв.м. (В)
Україна, Полтавська обл., Кременчуцький р-н, м. Горішні Плавні, вулиця Миру, 18