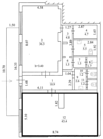
Дніпропетровська обл., м. Кам’янське, просп. Свободи, 44 . Оренда – приміщення будівлі сортировочної загальною площею 43,40 кв.м (В)

2 760.24 грн
63.60 грн / м2
Україна, Дніпропетровська обл., м. Кам’янське, просп. Свободи, 44
Перейти до аукціону на сайті
  • Інформація
  • Опис
  • Документи
Дата оголошення пропозиції:
23 лютого 2024
Площа:
43.40 м2
Тип об’єкта:
Приміщення
Тип аукціону:
Англійський аукціон
Статус аукціону:
Аукціон не відбувся
Тип угоди:
Оренда
Розмір мінімального кроку:
200.00 ₴
Розмір гарантійного внеску:
1 656.14 ₴
Початок прийому пропозицій:
23.02.2024 14:59:56
Завершення прийому пропозицій:
25.03.2024 20:00:00
Проведення аукціону:
26.03.2024 12:50:00
Лот:
CLE001-UA-20240223-80752
№ лоту (УТК):
UTK230224_19P
Лот виставляється на торги (раз):
1
Стислий опис майна:
Пропонується до оренди приміщення будівлі сортировочної (В-1, №12) площею 43,40 кв.м. Будівля в центрі міста. Поруч знаходяться об’єкти соціальної інфраструктури: відділення пошти та банку, клініка, магазини, ринок тощо. Стан приміщення відмінний, підходить для офісу, ідеальне місце під розвиток будь-якого бізнесу. Зручна транспортна розв’язка та інфраструктура. Характеристики: Кількість поверхів – 1 Загальна площа – 115,30 кв.м Площа запропонована до оренди – 43,40 кв.м Електропостачання, водопостачання, теплопостачання Земельна ділянка – 0,2324 га (договір оренди) Ресурсні податки – 2,68 грн за 1 кв.м
Адреса місцезнаходження майна:
Україна, Дніпропетровська обл., м. Кам’янське, просп. Свободи, 44
Схожі пропозиції
18.03.2025
Дніпропетровська обл., м. Кам’янське, просп. Свободи, 44. Оренда – приміщення 5-го поверху загальною площею 26,10 кв.м (В)
522.00 грн
20.00 грн / м2
Приміщення
Дніпропетровська обл., м. Кам’янське, просп. Свободи, 44. Оренда – приміщення 5-го поверху загальною площею 26,10 кв.м (В)
Україна, Дніпропетровська обл., м. Кам’янське, просп. Свободи, 44
02.08.2024
Дніпропетровська обл., м.Кривий Ріг, вул. Головка Адмірала, 71;   Оренда–приміщення 3-го поверху, площею 777,3 кв.м. (В)
6 855.79 грн
8.82 грн / м2
Приміщення
Дніпропетровська обл., м.Кривий Ріг, вул. Головка Адмірала, 71; Оренда–приміщення 3-го поверху, площею 777,3 кв.м. (В)
Україна, Дніпропетровська обл., Кривий Ріг, вулиця Адмірала Головка, 71
Дніпропетровська обл., м. Верхньодніпровськ, вул. Титова, 8. Оренда – приміщення 3-го поверху, площею 169,40 кв.м. (В)
506.51 грн
2.99 грн / м2
Приміщення
Дніпропетровська обл., м. Верхньодніпровськ, вул. Титова, 8. Оренда – приміщення 3-го поверху, площею 169,40 кв.м. (В)
Україна, Дніпропетровська обл., Верхньодніпровськ, вул. Титова, 8
Дніпропетровська обл., м. Кривий Ріг, вул. Калантая, 12. Оренда – приміщення 2-го поверху, площею 337,7 кв.м. (В)
5 170.19 грн
15.31 грн / м2
Приміщення
Дніпропетровська обл., м. Кривий Ріг, вул. Калантая, 12. Оренда – приміщення 2-го поверху, площею 337,7 кв.м. (В)
Україна, Дніпропетровська обл., Кривий Ріг, вул. Калантая, 12
Переглянуті пропозиції
25.04.2025
Дніпропетровська обл., м. Дніпро, вул. Пушкіна, 75А. Оренда – приміщення технічного поверху площею 66,80 кв.м (В)
6 710.06 грн
100.45 грн / м2
Приміщення
Дніпропетровська обл., м. Дніпро, вул. Пушкіна, 75А. Оренда – приміщення технічного поверху площею 66,80 кв.м (В)
Україна, Дніпропетровська обл., м. Дніпро, вул. Пушкіна, 75А
26.11.2025
м. Харків, вул. Конторська,14. Оренда – приміщення 2-го поверху площею 12,1 кв. м (В)
508.20 грн
42.00 грн / м2
Приміщення
м. Харків, вул. Конторська,14. Оренда – приміщення 2-го поверху площею 12,1 кв. м (В)
Україна, Харківська обл., Харків, вулиця Конторська, 14