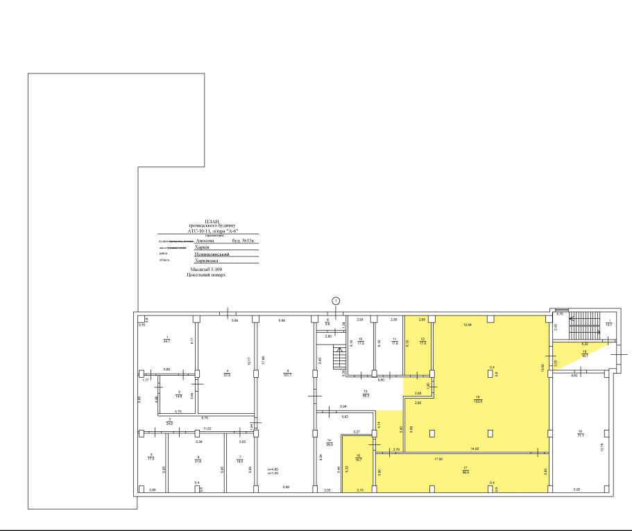
м.Харків, вул. Амосова,13 в. Оренда – приміщення цокольного поверху площею 312,51 кв.м (П)

14 812.97 грн
47.40 грн / м2
Україна, Харківська обл., м. Харків, вул. Амосова,13 в
Перейти до аукціону на сайті
  • Інформація
  • Опис
  • Документи
Дата оголошення пропозиції:
23 лютого 2024
Площа:
312.51 м2
Тип об’єкта:
Приміщення
Тип аукціону:
Англійський аукціон
Статус аукціону:
Аукціон не відбувся
Тип угоди:
Оренда
Розмір мінімального кроку:
200.00 ₴
Розмір гарантійного внеску:
8 887.78 ₴
Початок прийому пропозицій:
23.02.2024 16:14:10
Завершення прийому пропозицій:
25.03.2024 20:00:00
Проведення аукціону:
26.03.2024 11:45:00
Лот:
CLE001-UA-20240223-65393
№ лоту (УТК):
UTK050124_13P
Лот виставляється на торги (раз):
2
Стислий опис майна:
Пропонується до оренди приміщення цокольного поверху площею 312,51 кв.м. Будівля в спальному районі міста Харкова. 10 хв до зупинки транспорту. Характеристики: Кількість поверхів – 5; Загальна площа – 4838,00 кв.м_ Площа запропонована до оренди – 312,51 кв.м. Дозволена потужність – 5 кВт Теплопостачання-централізоване Земельна ділянка – 0,4825 га
Адреса місцезнаходження майна:
Україна, Харківська обл., м. Харків, вул. Амосова,13 в
Схожі пропозиції
19.11.2025
м. Харків, вул. Конторська, 14. Оренда – приміщення цокольного поверху площею 219,7 кв. м (В)
6 591.00 грн
30.00 грн / м2
Приміщення
м. Харків, вул. Конторська, 14. Оренда – приміщення цокольного поверху площею 219,7 кв. м (В)
Україна, Харківська обл., Харків, вулиця Конторська, 14
05.11.2024
Харківська обл., Чугуївський р-н, м. Зміїв, вул. Адміністративна, 5. Оренда – приміщення на ІІІ поверсі площею 16,1 кв.м. (В)
273.70 грн
17.00 грн / м2
Приміщення
Харківська обл., Чугуївський р-н, м. Зміїв, вул. Адміністративна, 5. Оренда – приміщення на ІІІ поверсі площею 16,1 кв.м. (В)
Україна, Харківська обл., Чугуївський р-н, м. Зміїв, вул. Адміністративна, 5
16.11.2023
Харківська обл., Богодухівський р-н, смт. Краснокутськ, вул. Миру, 123. Оренда – приміщення 2-го поверху площею 92,90 кв.м. (В)
5 574.00 грн
60.00 грн / м2
Приміщення
Харківська обл., Богодухівський р-н, смт. Краснокутськ, вул. Миру, 123. Оренда – приміщення 2-го поверху площею 92,90 кв.м. (В)
Україна, Харківська обл., Богодухівський р-н, смт. Краснокутськ, вул. Миру, 123
10.01.2024
Харківська обл., м. Лозова, вул. Михайла Грушевського, 7. Оренда – приміщення на 1-му поверсі площею 224,2 кв.м. (В)
2 689.20 грн
11.99 грн / м2
Приміщення
Харківська обл., м. Лозова, вул. Михайла Грушевського, 7. Оренда – приміщення на 1-му поверсі площею 224,2 кв.м. (В)
Україна, Харківська обл., м. Лозова, вул. Михайла Грушевського, 7
Переглянуті пропозиції
26.07.2023
Рівненська обл., м. Рівне, вул. Дубенська, 44б. Оренда – приміщення 1-го поверху одноповерхової будівлі площею 65,1 кв.м. (В)
7 575.04 грн
116.36 грн / м2
Приміщення
Рівненська обл., м. Рівне, вул. Дубенська, 44б. Оренда – приміщення 1-го поверху одноповерхової будівлі площею 65,1 кв.м. (В)
Україна, Рівненська обл., м. Рівне, вул. Дубенська, 44б