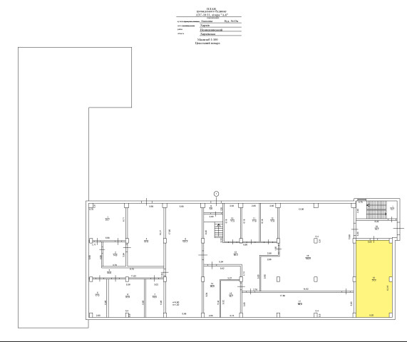
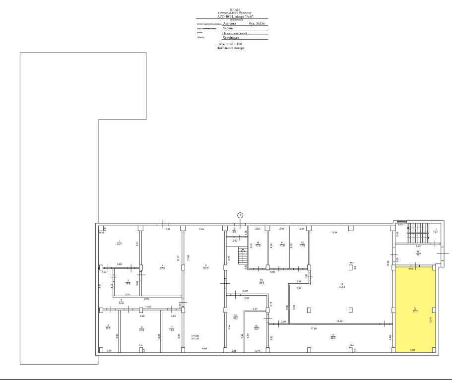
м.Харків, вул. Амосова,13 в. Оренда – приміщення цоколю та другого поверху площею 301,5 кв.м (П)

18 982.24 грн
62.96 грн / м2
Україна, Харківська обл., м. Харків, вул. Амосова,13 в
Перейти до аукціону на сайті
  • Інформація
  • Опис
  • Документи
Дата оголошення пропозиції:
23 лютого 2024
Площа:
301.50 м2
Тип об’єкта:
Приміщення
Тип аукціону:
Англійський аукціон
Статус аукціону:
Аукціон не відбувся
Тип угоди:
Оренда
Розмір мінімального кроку:
250.00 ₴
Розмір гарантійного внеску:
11 389.46 ₴
Початок прийому пропозицій:
23.02.2024 16:07:47
Завершення прийому пропозицій:
25.03.2024 20:00:00
Проведення аукціону:
26.03.2024 11:00:00
Лот:
CLE001-UA-20240223-25198
№ лоту (УТК):
UTK050124_12P
Лот виставляється на торги (раз):
2
Стислий опис майна:
Пропонується до оренди приміщення цоколю та другого поверху площею 301,5 кв.м. Будівля в спальному районі міста Харкова. 10 хв до зупинки транспорту. Характеристики: Кількість поверхів – 5; Загальна площа – 4838,00 кв.м_ Площа запропонована до оренди – 301,5 кв.м. Дозволена потужність – 10 кВт Теплопостачання-централізоване Земельна ділянка – 0,4825 га
Адреса місцезнаходження майна:
Україна, Харківська обл., м. Харків, вул. Амосова,13 в
Схожі пропозиції
20.12.2023
м.Харків, вул.Конторська,14;    Оренда–приміщення 2-го поверху площею 12,3 кв.м (В)
852.39 грн
69.30 грн / м2
Приміщення
м.Харків, вул.Конторська,14; Оренда–приміщення 2-го поверху площею 12,3 кв.м (В)
Україна, Харківська обл., Харків, вулиця Конторська, 14
21.01.2025
м. Харків, вул.Старошишківська,5а.Оренда – приміщення 2-го поверху, площею 413,7 кв.м (В)
21 433.80 грн
51.81 грн / м2
Приміщення
м. Харків, вул.Старошишківська,5а.Оренда – приміщення 2-го поверху, площею 413,7 кв.м (В)
Україна, Харківська обл., м. Харків, вул.Старошишківська,5а
21.03.2025
м. Харків, вул. Старошишківська,5а. Оренда – приміщення 1-го поверху площею 8,7 кв.м (В)
643.97 грн
74.02 грн / м2
Приміщення
м. Харків, вул. Старошишківська,5а. Оренда – приміщення 1-го поверху площею 8,7 кв.м (В)
Україна, Харківська обл., м. Харків, вул. Старошишківська,5а
Харківська обл., смт. Борова, вул. Центральна, 3, будівля літ. А. Оренда – приміщення 1-го поверху площею 65 кв.м.
468.00 грн
7.20 грн / м2
Приміщення
Харківська обл., смт. Борова, вул. Центральна, 3, будівля літ. А. Оренда – приміщення 1-го поверху площею 65 кв.м.
Україна, Харківська обл., м. Борова, вул. Центральна, 3
Переглянуті пропозиції
06.06.2025
Дніпропетровська обл., м. Дніпро, вул. Князя Ярослава Мудрого, 3. Оренда – приміщення 5-го поверху площею 12,10 кв.м. (В)
605.00 грн
50.00 грн / м2
Приміщення
Дніпропетровська обл., м. Дніпро, вул. Князя Ярослава Мудрого, 3. Оренда – приміщення 5-го поверху площею 12,10 кв.м. (В)
Україна, Дніпропетровська обл., м. Дніпро, вул. Князя Ярослава Мудрого, 3
13.04.2023
Полтавська обл., м. Решетилівка, вул. Старокиївська, 2. Оренда – приміщення 1-го поверху площею 30,70 кв.м. (В)
686.45 грн
8.00 грн / м2
Приміщення
Полтавська обл., м. Решетилівка, вул. Старокиївська, 2. Оренда – приміщення 1-го поверху площею 30,70 кв.м. (В)
Україна, Полтавська обл., м. Решетилівка, вул. Старокиївська, 2
Львів, вул. Суботівська, 13-А. Оренда – будівля площею 1813,5 кв.м. (В)
22 396.73 грн
12.35 грн / м2
Будівля
Львів, вул. Суботівська, 13-А. Оренда – будівля площею 1813,5 кв.м. (В)
Україна, Львівська обл., м. Львів, вул. Суботівська, буд. 13-А
15.07.2025
ДОВГОСТРОКОВА ОРЕНДА! Харківська обл., м. Харків, Нетіченська набережна, 8.Оренда – приміщення на 9-му поверсі загальною площею 513,50 кв.м. (В)
15 405.00 грн
30.00 грн / м2
Приміщення
ДОВГОСТРОКОВА ОРЕНДА! Харківська обл., м. Харків, Нетіченська набережна, 8.Оренда – приміщення на 9-му поверсі загальною площею 513,50 кв.м. (В)
Україна, Харківська обл., м. Харків, Нетіченська набережна, 8