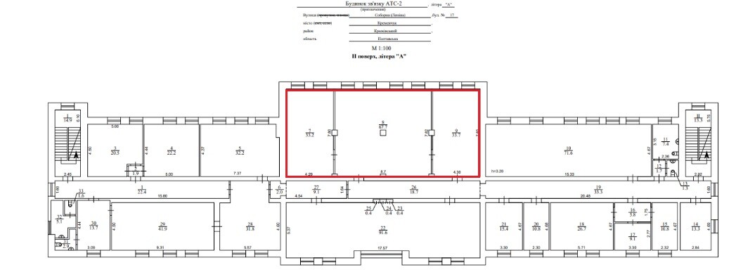
Полтавська обл., Кременчуцький р-н, м. Кременчук, вулиця Соборна, 17. Оренда – приміщення 2-го поверху площею 134,60 кв.м. (В)

4 665.24 грн
34.66 грн / м2
Україна, Полтавська обл., Кременчуцький р-н, м. Кременчук, вул. Соборна, 17
Перейти до аукціону на сайті
  • Інформація
  • Опис
  • Документи
Дата оголошення пропозиції:
23 лютого 2024
Площа:
134.60 м2
Тип об’єкта:
Приміщення
Тип аукціону:
Англійський аукціон
Статус аукціону:
Аукціон не відбувся
Тип угоди:
Оренда
Розмір мінімального кроку:
400.00 ₴
Розмір гарантійного внеску:
2 799.14 ₴
Початок прийому пропозицій:
23.02.2024 19:38:26
Завершення прийому пропозицій:
25.03.2024 20:00:00
Проведення аукціону:
26.03.2024 12:30:00
Лот:
CLE001-UA-20240223-35088
№ лоту (УТК):
UTK101123_16P
Лот виставляється на торги (раз):
4
Стислий опис майна:
Пропонується до оренди приміщення площею 134,60 кв.м. Приміщення розташоване на 2 поверсі 3х поверхової будівлі, яка знаходиться в центральній частині м. Кременчук. Вхід з центральної вулиці . Характеристики Кількість поверхів – 3; Загальна площа – 2733,40 кв. м.; Площа запропонована до оренди 134,60 кв. м.; Опалення – наявне; Дозволена потужність – до 3 кВт; Земельна ділянка – 0,5591 договір оренди
Адреса місцезнаходження майна:
Україна, Полтавська обл., Кременчуцький р-н, м. Кременчук, вул. Соборна, 17
Схожі пропозиції
27.09.2024
Полтавська обл., Лубенський р-н, с.Новоаврамівка, вул.Центральна, буд.14;   Оренда–будівля площею 62,1 кв.м. (В)
632.80 грн
10.19 грн / м2
Приміщення
Полтавська обл., Лубенський р-н, с.Новоаврамівка, вул.Центральна, буд.14; Оренда–будівля площею 62,1 кв.м. (В)
Україна, Полтавська обл., с. Новоаврамівка, вул. Центральна, буд. 14
05.06.2024
Полтавська обл., Кременчуцький р-н., смт. Семенівка, вул. Воїнів Інтернаціоналістів, 12/9. Оренда – приміщення 3-го поверху площею 93,0 кв.м. (В)
502.20 грн
5.40 грн / м2
Приміщення
Полтавська обл., Кременчуцький р-н., смт. Семенівка, вул. Воїнів Інтернаціоналістів, 12/9. Оренда – приміщення 3-го поверху площею 93,0 кв.м. (В)
Україна, Полтавська обл., Кременчуцький р-н., смт. Семенівка, вул. Воїнів Інтернаціоналістів, 12/9
10.10.2023
Полтавська обл., м. Полтава, вул. Юрія Побєдоносцева, буд.17. Оренда – приміщення на 1-му поверсі площею 97,20 кв.м. (В)
4 607.28 грн
47.40 грн / м2
Приміщення
Полтавська обл., м. Полтава, вул. Юрія Побєдоносцева, буд.17. Оренда – приміщення на 1-му поверсі площею 97,20 кв.м. (В)
Україна, Полтавська обл., м. Полтава, вул. Юрія Побєдоносцева, буд.17
10.06.2025
Полтавська обл., Кременчуцький р-н, с. Броварки, вулиця Різдвяна, 41. Оренда – приміщення загальною площею 55,50 кв.м. (В)
666.00 грн
12.00 грн / м2
Приміщення
Полтавська обл., Кременчуцький р-н, с. Броварки, вулиця Різдвяна, 41. Оренда – приміщення загальною площею 55,50 кв.м. (В)
Україна, Полтавська обл., Кременчуцький р-н, с. Броварки, вул. Різдвяна, 41