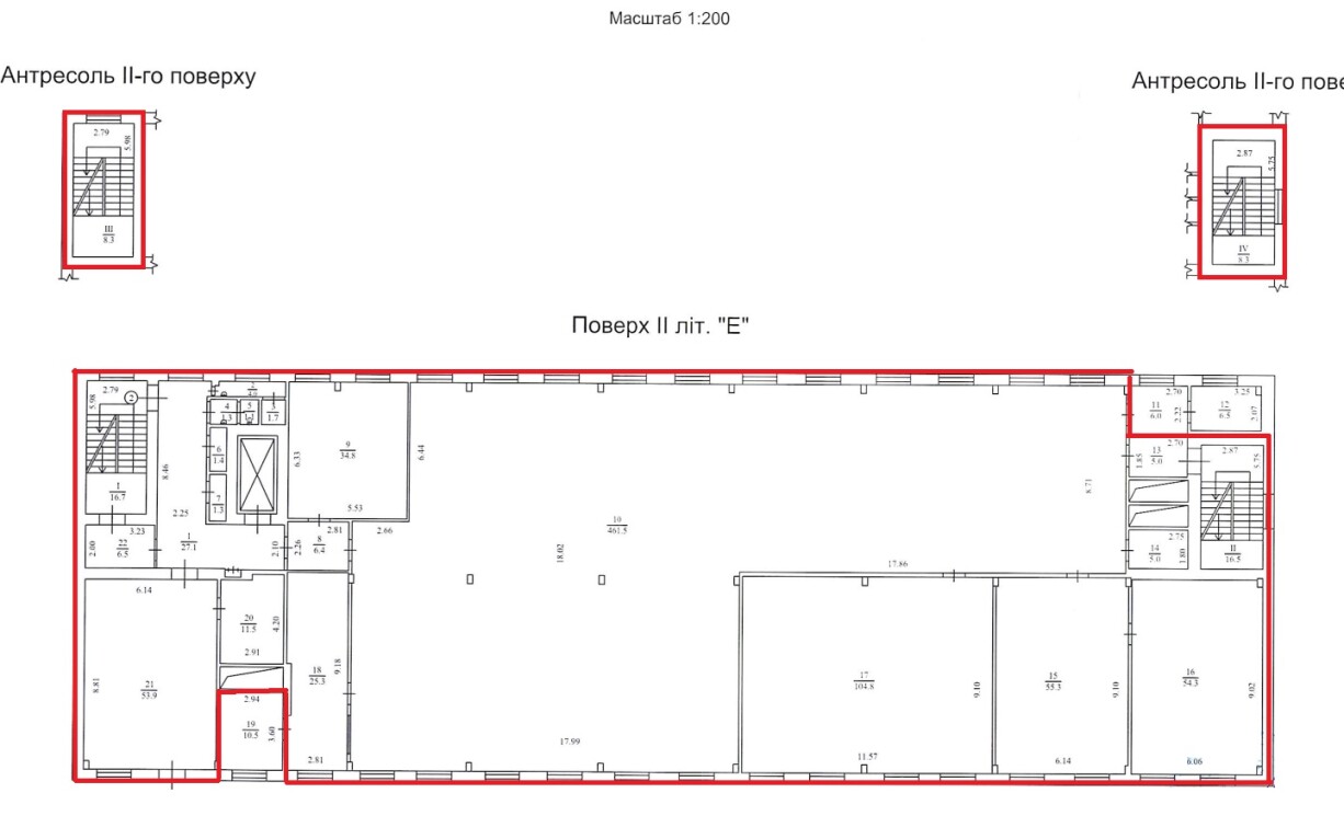
ДОВГОСТРОКОВА ОРЕНДА! м. Київ, вул. Героїв Севастополя, 39/8 літ. «Е»; Оренда – приміщення 2-го та 4-го поверхів, площею 1751,8 кв.м. (В)

239 944.05 грн
136.97 грн / м2
Україна, м.Київ, Київ, вул. Героїв Севастополя, 39/8(Е)
Перейти до аукціону на сайті
  • Інформація
  • Опис
  • Документи
Дата оголошення пропозиції:
27 лютого 2024
Площа:
1751.80 м2
Тип об’єкта:
Приміщення
Тип аукціону:
Англійський аукціон
Статус аукціону:
Аукціон не відбувся
Тип угоди:
Оренда
Розмір мінімального кроку:
2 500.00 ₴
Розмір гарантійного внеску:
143 966.43 ₴
Початок прийому пропозицій:
27.02.2024 18:12:30
Завершення прийому пропозицій:
28.03.2024 20:00:00
Проведення аукціону:
29.03.2024 12:55:00
Лот:
CLE001-UA-20240227-10485
№ лоту (УТК):
UTK270522_6T
Лот виставляється на торги (раз):
10
Стислий опис майна:
Пропонується до оренди приміщення 2-го та 4-го поверху площею 1751,80 кв.м. Розташування будівлі у Солом'янському районі міста Києва, місцевості Відрадний та Новокараваєві дачі. Поруч розвинена інфраструктура, зупинки маршрутного транспорту, трамваю, магазини, кафе, аптеки, середній автомобільний і пішохідний потоки. Вхід з вулиці Героїв Севастополя та з прохідної. Доступ 24/7. Характеристики: - загальна площа будівлі – 4607,20 м²; - кількість поверхів – 4; - загальна площа земельної ділянки – 0,9713 га; - опалення – централізоване (міське); - сан. вузол, каналізація, водопостачання – присутне;
Адреса місцезнаходження майна:
Україна, м.Київ, Київ, вул. Героїв Севастополя, 39/8(Е)
Схожі пропозиції
13.09.2024
м. Київ, вул. Будівельників, 8-Б;   Оренда – приміщення підвалу, площею 452,6 кв.м. (В)
42 300.00 грн
93.46 грн / м2
Приміщення
м. Київ, вул. Будівельників, 8-Б; Оренда – приміщення підвалу, площею 452,6 кв.м. (В)
Україна, м.Київ, Київ, вулиця Будівельників, 8-Б
14.06.2024
м. Київ, вул. Джона Маккейна, №40;   Оренда – приміщення підвалу, площею 24,80 м2 (В)
5 882.31 грн
237.19 грн / м2
Приміщення
м. Київ, вул. Джона Маккейна, №40; Оренда – приміщення підвалу, площею 24,80 м2 (В)
Україна, м.Київ, Київ, вулиця Джона Маккейна, 40
21.10.2025
м. Київ, вул. Василя Макуха (Шевченківський р-н), 5. Оренда – приміщення 3-го поверху площею 905,30 м2 (В)
54 318.00 грн
60.00 грн / м2
Приміщення
м. Київ, вул. Василя Макуха (Шевченківський р-н), 5. Оренда – приміщення 3-го поверху площею 905,30 м2 (В)
Україна, м.Київ, Київ, вулиця Василя Макуха, 5
26.12.2024
м. Київ, вул. Василя Макуха (Івана Шевцова), 5;   Оренда – приміщення 1-го поверху будівлі, площею 401,5 кв.м. (В)
83 720.78 грн
208.52 грн / м2
Приміщення
м. Київ, вул. Василя Макуха (Івана Шевцова), 5; Оренда – приміщення 1-го поверху будівлі, площею 401,5 кв.м. (В)
Україна, м.Київ, м. Київ, вулиця Василя Макуха (Івана Шевцова), 5