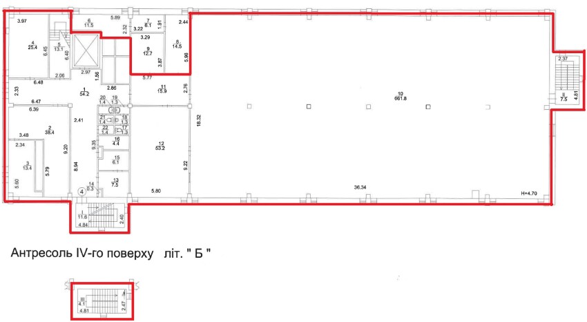
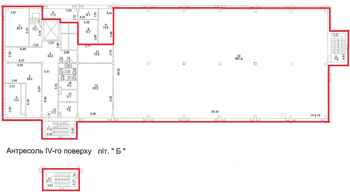
ДОВГОСТРОКОВА ОРЕНДА! м. Київ, вул. Салютна, 5а, літ. «Б»; Оренда – приміщення 3-го та 4-го поверхів площею 992,8 кв.м. (В)

122 720.01 грн
123.61 грн / м2
Україна, м.Київ, Київ, вулиця Салютна, 5а, літ.Б
Перейти до аукціону на сайті
  • Інформація
  • Опис
  • Документи
Дата оголошення пропозиції:
27 лютого 2024
Площа:
992.80 м2
Тип об’єкта:
Приміщення
Тип аукціону:
Англійський аукціон
Статус аукціону:
Аукціон не відбувся
Тип угоди:
Оренда
Розмір мінімального кроку:
1 500.00 ₴
Розмір гарантійного внеску:
73 632.00 ₴
Початок прийому пропозицій:
27.02.2024 18:46:18
Завершення прийому пропозицій:
28.03.2024 20:00:00
Проведення аукціону:
29.03.2024 12:00:00
Лот:
CLE001-UA-20240227-13237
№ лоту (УТК):
UTK040422_06T
Лот виставляється на торги (раз):
10
Стислий опис майна:
Пропонуються до оренди приміщення 3-го та 4-го поверху, літ. «Б», площею 992,8 кв.м . Будівля розташована в Шевченківському районі міста Києва, місцевість Нивки. Поруч розвинена інфраструктура, зупинки маршрутного транспорту, супермаркети, бізнес-центри, фінансові заклади, 5 хв. від ст. м. «Нивки». Вхід з двору. Доступ 24/7. Характеристики • кількість поверхів – 4; • сан. вузол, каналізація – присутні; • площа будівлі – літ. «Б» - 4892,1 м2; • опалення централізоване (міське); • земельна ділянка – 0,6317 га;
Адреса місцезнаходження майна:
Україна, м.Київ, Київ, вулиця Салютна, 5а, літ.Б
Схожі пропозиції
21.10.2025
м. Київ, вул. Наталії Ужвій 1 (Подільський р-н). Оренда – приміщення 3-го поверху, загальною площею – 105,80 м. кв. (В)
м. Київ, вул. Володимирська, 10 Оренда – Приміщення 1-го поверху, площею 201,1 м2 (В)
60 531.10 грн
301.00 грн / м2
Приміщення
м. Київ, вул. Володимирська, 10 Оренда – Приміщення 1-го поверху, площею 201,1 м2 (В)
Україна, м.Київ, Київ, вул. Володимирська, 10
12.01.2024
м. Київ, вул. Ореста Васкула (Феодори Пушиної), 27-А; Оренда – приміщення 3-го поверху, площею 34,5 кв.м. (В)
6 810.99 грн
197.42 грн / м2
Приміщення
м. Київ, вул. Ореста Васкула (Феодори Пушиної), 27-А; Оренда – приміщення 3-го поверху, площею 34,5 кв.м. (В)
Україна, м.Київ, м. Київ, вулиця Ореста Васкула, 27-А
11.08.2022
м. Київ, вул. Н. Ужвій, 1. Оренда – приміщення 3-го поверху, площею 21,90 кв.м. (В)
2 005.16 грн
91.56 грн / м2
Приміщення
м. Київ, вул. Н. Ужвій, 1. Оренда – приміщення 3-го поверху, площею 21,90 кв.м. (В)
Україна, м.Київ, Київ, вул. Н. Ужвій, 1