Київська обл., Білоцерківський р-н, м. Тараща, вул. Шевченка, 37, літ. «А-4»; Оренда – приміщення 2-го поверху, площею 190,1 кв.м. (В)

513.27 грн
2.70 грн / м2
Україна, Київська обл., Тараща, вул. Шевченка, 37, літ. «А-4»
Перейти до аукціону на сайті
  • Інформація
  • Опис
  • Документи
Дата оголошення пропозиції:
27 лютого 2024
Площа:
190.10 м2
Тип об’єкта:
Приміщення
Тип аукціону:
Англійський аукціон
Статус аукціону:
Аукціон не відбувся
Тип угоди:
Оренда
Розмір мінімального кроку:
50.00 ₴
Розмір гарантійного внеску:
307.96 ₴
Початок прийому пропозицій:
27.02.2024 19:40:29
Завершення прийому пропозицій:
28.03.2024 20:00:00
Проведення аукціону:
29.03.2024 11:45:00
Лот:
CLE001-UA-20240227-38732
№ лоту (УТК):
UTK190821_03Т
Лот виставляється на торги (раз):
10
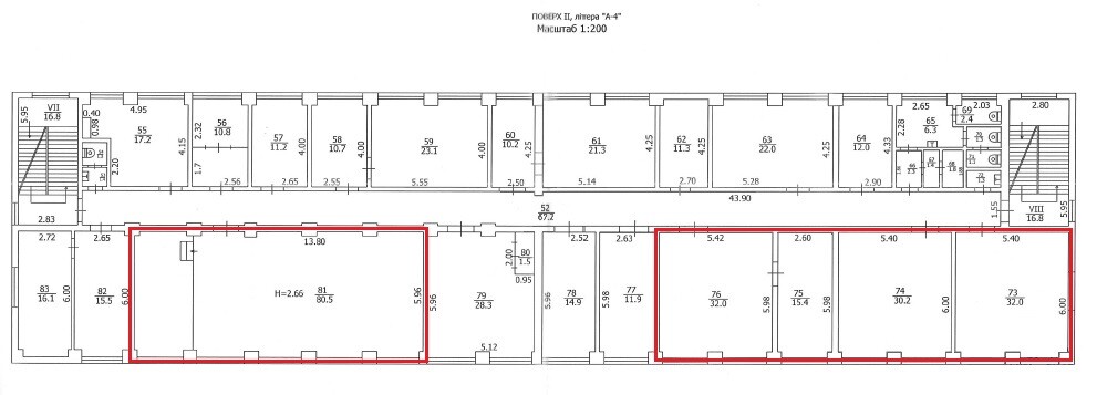
Стислий опис майна:
Пропонується до оренди приміщення 2-го поверху, площею 190,1 кв.м. в м. Тараща. Стан приміщень задовільний. Центральна частина міста. Поруч розвинена інфраструктура, продовольчі магазини, аптеки, банківські та поштові відділення, зручний під’їзд до будівлі. Характеристики: • кількість поверхів – 4; • загальна площа будівлі – 1962,6 м2; • опалення наявне; • земельна ділянка – 0,30 га; • сан. вузол, водопостачання, каналізація - присутні на поверсі.
Адреса місцезнаходження майна:
Україна, Київська обл., Тараща, вул. Шевченка, 37, літ. «А-4»
Схожі пропозиції
Київська обл., м. Яготин, вул. Незалежності, 56,Оренда – приміщення 2-го поверху, площею 226,8 м. кв. (В)
8 151.19 грн
35.94 грн / м2
Приміщення
Київська обл., м. Яготин, вул. Незалежності, 56,Оренда – приміщення 2-го поверху, площею 226,8 м. кв. (В)
Україна, Київська обл., Яготин, вул. Незалежності, 56
30.12.2022
Київська обл., м. Миронівка, вул. Соборності, 54 літ. «Г», оренда – приміщення 2-го поверху, площею 151,1 м. кв. (В)
2 538.48 грн
16.80 грн / м2
Приміщення
Київська обл., м. Миронівка, вул. Соборності, 54 літ. «Г», оренда – приміщення 2-го поверху, площею 151,1 м. кв. (В)
Україна, Київська обл., Миронівка, вулиця Соборності, 54
Переглянуті пропозиції
03.06.2025
Харківська обл., м. Харків, вул. Коцарська, 45, літер «А-4». Оренда – приміщення на 2-му поверсі загальною площею 48,70 кв.м. (В)
1 461.00 грн
30.00 грн / м2
Приміщення
Харківська обл., м. Харків, вул. Коцарська, 45, літер «А-4». Оренда – приміщення на 2-му поверсі загальною площею 48,70 кв.м. (В)
Україна, Харківська обл., Харків, м. Харків, вул. Коцарська, 45, літер «А-4»
Харківська обл., смт. Сахновщина, вул. Поштова, 6. Оренда – приміщення 1-го поверху
154.00 грн
7.70 грн / м2
Приміщення
Харківська обл., смт. Сахновщина, вул. Поштова, 6. Оренда – приміщення 1-го поверху
Україна, Харківська обл., смт. Сахновщина, вул. Поштова, буд. 6
05.12.2023
Вінницька обл., Вінницький р-н., м. Липовець, вул. В. Липківського, 37;   Оренда – нежитлові приміщення площею 86,7 кв.м. (В)
2 314.89 грн
26.70 грн / м2
Приміщення
Вінницька обл., Вінницький р-н., м. Липовець, вул. В. Липківського, 37; Оренда – нежитлові приміщення площею 86,7 кв.м. (В)
Україна, Вінницька обл., Липовець, вул. В. Липківського, 37
05.05.2023
Полтавська обл., Миргородський р-н., смт. Шишаки, вул. Корніліча, буд.10. Оренда – приміщення 2-го поверху площею 32,00 кв.м. (В)
500.80 грн
15.65 грн / м2
Приміщення
Полтавська обл., Миргородський р-н., смт. Шишаки, вул. Корніліча, буд.10. Оренда – приміщення 2-го поверху площею 32,00 кв.м. (В)
Україна, Полтавська обл., Миргородський р-н., смт. Шишаки, вул. Корніліча, буд.10