Івано-Франківська обл., Калуський район, смт. Рожнятів, площа Єдності, 9; Оренда – приміщення 3-го поверху площею 109,6 м.кв. (В)

1 367.81 грн
12.48 грн / м2
Україна, Івано-Франківська обл., Рожнятів, площа Єдності, 9
Перейти до аукціону на сайті
  • Інформація
  • Опис
  • Документи
Дата оголошення пропозиції:
29 лютого 2024
Площа:
109.60 м2
Тип об’єкта:
Приміщення
Тип аукціону:
Англійський аукціон
Статус аукціону:
Аукціон не відбувся
Тип угоди:
Оренда
Розмір мінімального кроку:
40.00 ₴
Розмір гарантійного внеску:
820.68 ₴
Початок прийому пропозицій:
29.02.2024 13:37:45
Завершення прийому пропозицій:
02.04.2024 20:00:00
Проведення аукціону:
03.04.2024 12:10:00
Лот:
CLE001-UA-20240229-33962
№ лоту (УТК):
UTK070721_10Т
Лот виставляється на торги (раз):
10
Стислий опис майна:
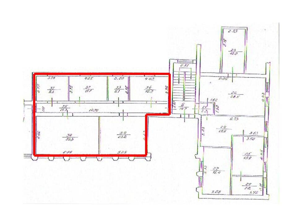
Пропонуються до оренди приміщення 3-го поверху площею 109,6 м.кв. Будівля знаходиться в центральній частині населеного пункту. Високі пішохідний та транспортний потоки. Характеристики: • кількість поверхів – 3 • опалення газове • земельна ділянка – 0,1126 га (договір оренди)
Адреса місцезнаходження майна:
Україна, Івано-Франківська обл., Рожнятів, площа Єдності, 9
Схожі пропозиції
21.05.2024
Івано-Франківська обл., Івано-Франківський р-н, м.Тлумач, вул. Макуха, 14-А;  Оренда – приміщення 1-го поверху, площею 35,9 кв.м. (П)
5 311.76 грн
147.96 грн / м2
Приміщення
Івано-Франківська обл., Івано-Франківський р-н, м.Тлумач, вул. Макуха, 14-А; Оренда – приміщення 1-го поверху, площею 35,9 кв.м. (П)
Україна, Івано-Франківська обл., Тлумач, вул. Макуха, 14-А
Івано-Франківська обл., м. Івано-Франківськ, вул. В.Симоненка, 1. Оренда – приміщення цокольного поверху, площею 108,9 м.кв. (П)
8 264.42 грн
75.89 грн / м2
Приміщення
Івано-Франківська обл., м. Івано-Франківськ, вул. В.Симоненка, 1. Оренда – приміщення цокольного поверху, площею 108,9 м.кв. (П)
Україна, Івано-Франківська обл., м. Івано-Франківськ, вул. В.Симоненка, 1
м. Івано-Франківськ, вул. В.Симоненка, 1. Оренда – приміщення 1-го поверху площею 54,0 кв.м. (В)
1 293.84 грн
23.96 грн / м2
Приміщення
м. Івано-Франківськ, вул. В.Симоненка, 1. Оренда – приміщення 1-го поверху площею 54,0 кв.м. (В)
Україна, Івано-Франківська обл., Івано-Франківськ, вул. В.Симоненка, 1
Івано-Франківська обл., м. Івано-Франківськ, вул. В. Симоненка, 1. Оренда – приміщення 1-го поверху, площею 17,40 кв.м. (П)
1 366.25 грн
78.52 грн / м2
Приміщення
Івано-Франківська обл., м. Івано-Франківськ, вул. В. Симоненка, 1. Оренда – приміщення 1-го поверху, площею 17,40 кв.м. (П)
Україна, Івано-Франківська обл., м. Івано-Франківськ, вул. В. Симоненка, 1
Переглянуті пропозиції
Дніпропетровська обл., м. Дніпро, вул. Князя Ярослава Мудрого, 3. Оренда – приміщення  5-го  поверху площею 18,60 кв.м. (В)
2 008.80 грн
108.00 грн / м2
Приміщення
Дніпропетровська обл., м. Дніпро, вул. Князя Ярослава Мудрого, 3. Оренда – приміщення 5-го поверху площею 18,60 кв.м. (В)
Україна, Дніпропетровська обл., м. Дніпро, вул. Князя Ярослава Мудрого, 3
14.04.2023
м. Київ, бульвар Бучми Амвросія, 5. Оренда – приміщення 3-го та 4-го поверхів технічної будівлі АТС-550 (літ. «Б»), площею 1006,83 кв. м. (В)
м. Київ, вул. Н. Ужвій, 1, Оренда – приміщення 2-го поверху площею 215,40 кв.м. (В)
19 722.02 грн
91.56 грн / м2
Приміщення
м. Київ, вул. Н. Ужвій, 1, Оренда – приміщення 2-го поверху площею 215,40 кв.м. (В)
Україна, м.Київ, Київ, вул. Н. Ужвій 1
23.03.2023
Рівненська обл., Рівненський р-н, с.Тучин, вул.Поштова, 4. Оренда – виробничі приміщення загальною площею 243,1 кв.м. (В)
3 882.31 грн
15.97 грн / м2
Приміщення
Рівненська обл., Рівненський р-н, с.Тучин, вул.Поштова, 4. Оренда – виробничі приміщення загальною площею 243,1 кв.м. (В)
Україна, Рівненська обл., Рівненський р-н, с.Тучин, вул.Поштова, 4