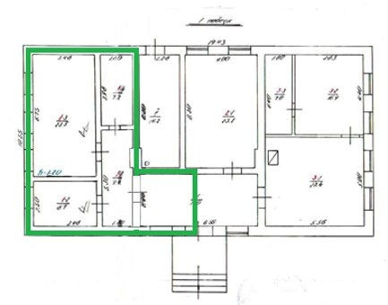
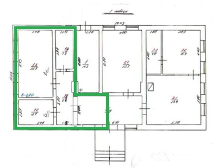
Львівська обл., с. Сілець, вул. Підберезина, 25. Оренда – частини будівлі загальною площею 48,80 кв. м (В)

622.69 грн
12.76 грн / м2
Україна, Львівська обл., с. Сілець, вул. Підберезина, 25
Перейти до аукціону на сайті
  • Інформація
  • Опис
  • Документи
Дата оголошення пропозиції:
29 лютого 2024
Площа:
48.80 м2
Тип об’єкта:
Будівля
Тип аукціону:
Англійський аукціон
Статус аукціону:
Аукціон не відбувся
Тип угоди:
Оренда
Розмір мінімального кроку:
40.00 ₴
Розмір гарантійного внеску:
373.61 ₴
Початок прийому пропозицій:
29.02.2024 14:15:52
Завершення прийому пропозицій:
02.04.2024 20:00:00
Проведення аукціону:
03.04.2024 12:30:00
Лот:
CLE001-UA-20240229-40894
№ лоту (УТК):
UTK140322_15P
Лот виставляється на торги (раз):
10
Стислий опис майна:
Пропонуються до оренди частини будівлі загальною площею 48,80 кв. м. Будівля розташована на околиці села. Світло потребує відновлення. Характеристики: Стан задовільний Кількість поверхів - 1 Вільне до споживання електропостачання – 2 кВт
Адреса місцезнаходження майна:
Україна, Львівська обл., с. Сілець, вул. Підберезина, 25
Схожі пропозиції
Львівська обл., м. Ходорів, вул. Шевченка, 119. Оренда –  частини будівлі площею 48,10 кв. м. (В)
544.97 грн
11.33 грн / м2
Будівля
Львівська обл., м. Ходорів, вул. Шевченка, 119. Оренда – частини будівлі площею 48,10 кв. м. (В)
Україна, Львівська обл., м. Ходорів, вул. Шевченка, 119
03.04.2024
ДОВГОСТРОКОВА ОРЕНДА! Тернопільська обл., м. Тернопіль, вул. Бордуляка, 5. Оренда – будівля складу площею 462,5 кв.м. (В)
21 922.50 грн
47.40 грн / м2
Будівля
ДОВГОСТРОКОВА ОРЕНДА! Тернопільська обл., м. Тернопіль, вул. Бордуляка, 5. Оренда – будівля складу площею 462,5 кв.м. (В)
Україна, Львівська обл., м. Тернопіль, вул. Бордуляка, 5
30.07.2024
Львівська обл., м. Броди, вул. Зелена, 19. Оренда – частини будівлі площею 492,60 кв. м. (В)
7 901.30 грн
16.04 грн / м2
Будівля
Львівська обл., м. Броди, вул. Зелена, 19. Оренда – частини будівлі площею 492,60 кв. м. (В)
Україна, Львівська обл., м. Броди, вул. Зелена, 19
20.11.2024
Львівська обл., м. Золочів, вул. Л.Українки,16. Оренда – одноповерхова будівля площею 248,5 кв.м (В)
5 467.00 грн
22.00 грн / м2
Будівля
Львівська обл., м. Золочів, вул. Л.Українки,16. Оренда – одноповерхова будівля площею 248,5 кв.м (В)
Україна, Львівська обл., м. Золочів, вул. Л.Українки,16