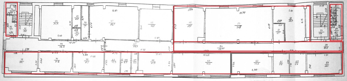
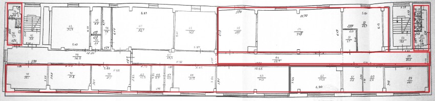
Рівненська обл., м. Рівне, вул. Соборна, 271. Оренда – приміщення 2-го поверху площею 430,5 кв.м. (В)

30 410.52 грн
70.64 грн / м2
Україна, Рівненська обл., м. Рівне, вул. Соборна, 271
Перейти до аукціону на сайті
  • Інформація
  • Опис
  • Документи
Дата оголошення пропозиції:
02 березня 2024
Площа:
430.50 м2
Тип об’єкта:
Приміщення
Тип аукціону:
Англійський аукціон
Статус аукціону:
Аукціон не відбувся
Тип угоди:
Оренда
Розмір мінімального кроку:
1 000.00 ₴
Розмір гарантійного внеску:
18 246.31 ₴
Початок прийому пропозицій:
02.03.2024 13:59:35
Завершення прийому пропозицій:
02.04.2024 20:00:00
Проведення аукціону:
03.04.2024 11:45:00
Лот:
CLE001-UA-20240302-09191
№ лоту (УТК):
UTK270522_06P
Лот виставляється на торги (раз):
10
Стислий опис майна:
Пропонуються до оренди приміщення 2-го поверху загальною площею 430,5 кв.м. Будівля знаходиться на околиці міста. Розвинена інфраструктура, досить високі автомобільний та пішохідний потоки. Поряд парк , стоянка для автомобілів . Приміщення потребують реконструкції електромережі. Характеристики: Кількість поверхів – 4 ; Загальна площа – 2647 кв.м.; Площа, запропонована до оренди – 430,5 кв.м.; Опалення – централізоване; Земельна ділянка - площа 0,482 га. (договір оренди)
Адреса місцезнаходження майна:
Україна, Рівненська обл., м. Рівне, вул. Соборна, 271
Схожі пропозиції
09.05.2023
Рівненська обл., Вараський р-н., с. Довговоля, вул. Грушевського, 9/2а. Оренда – нежитлові приміщення площею 33,4 кв.м. (В)
579.82 грн
17.36 грн / м2
Приміщення
Рівненська обл., Вараський р-н., с. Довговоля, вул. Грушевського, 9/2а. Оренда – нежитлові приміщення площею 33,4 кв.м. (В)
Україна, Рівненська обл., Вараський р-н., с. Довговоля, вул. Грушевського, 9/2а
11.08.2022
Рівненська обл., Рівненський р-н., м. Здолбунів, вул.Грушевського,15, оренда – приміщення прохідної загальною площею 8,7 кв.м. (В)
27.05.2025
Рівненська обл., Рівненський р-н., с. Вітковичі, вул. Ковальська, 1. Оренда – частина приміщення одноповерхової будівлі, площею 10,8 кв.м. (В)
507.60 грн
47.00 грн / м2
Приміщення
Рівненська обл., Рівненський р-н., с. Вітковичі, вул. Ковальська, 1. Оренда – частина приміщення одноповерхової будівлі, площею 10,8 кв.м. (В)
Україна, Рівненська обл., Рівненський р-н., с. Вітковичі, вул. Ковальська, 1
26.07.2023
Рівненська обл., м. Рівне, вул. Міцкевича, 2. Оренда – приміщення 1-го та 2-го поверху площею 270 кв.м. (В)
27 272.70 грн
101.01 грн / м2
Приміщення
Рівненська обл., м. Рівне, вул. Міцкевича, 2. Оренда – приміщення 1-го та 2-го поверху площею 270 кв.м. (В)
Україна, Рівненська обл., м. Рівне, вул. Міцкевича, 2
Переглянуті пропозиції
30.12.2022
ДОВГОСТРОКОВА ОРЕНДА! м. Київ, вул. Салютна, 5а, літ. «Б». Оренда – приміщення 3-го та 4-го поверхів площею 992,8 кв.м. (В)
10.06.2025
м. Київ, бульвар Академіка Вернадського, 79-А (В). Оренда – приміщення 2-го поверху, загальною площею – 37,70 кв.м.
4 496.86 грн
119.28 грн / м2
Приміщення
м. Київ, бульвар Академіка Вернадського, 79-А (В). Оренда – приміщення 2-го поверху, загальною площею – 37,70 кв.м.
Україна, м.Київ, Київ, бульвар Академіка Вернадського, 79А
26.11.2025
Полтавська обл., Миргородський район, смт. Комишня, вул. Миру, 101. Оренда – приміщення загальною площею 552,90 кв.м. (В)
10 018.55 грн
18.12 грн / м2
Приміщення
Полтавська обл., Миргородський район, смт. Комишня, вул. Миру, 101. Оренда – приміщення загальною площею 552,90 кв.м. (В)
Україна, Полтавська обл., Миргородський район, смт. Комишня, вул. Миру, 101
22.09.2022
Полтавська обл., м. Кременчук, вулиця Соборна, 17. Оренда – приміщення 2-го поверху площею 22,40 кв.м. (В)
1 458.24 грн
65.10 грн / м2
Приміщення
Полтавська обл., м. Кременчук, вулиця Соборна, 17. Оренда – приміщення 2-го поверху площею 22,40 кв.м. (В)
Україна, Полтавська обл., м. Кременчук, Соборна вулиця, 17