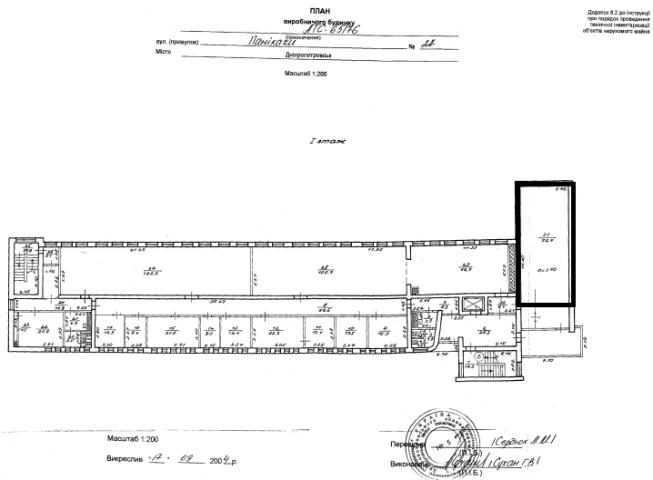
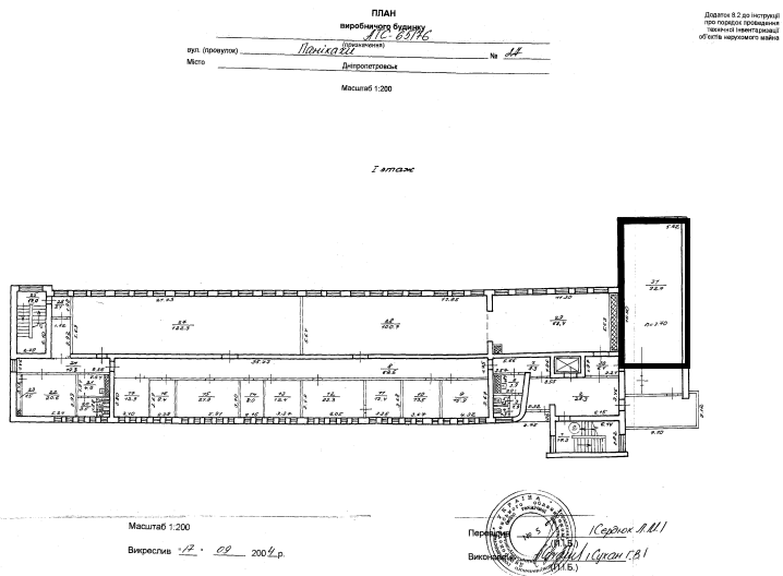
Дніпропетровська обл., м. Дніпро, вул. Панікахи, 27; Оренда – приміщення 1-го поверху площею 92,7 кв.м.(В)

8 520.06 грн
91.91 грн / м2
Україна, Дніпропетровська обл., Дніпро, вулиця Панікахи, 27
Перейти до аукціону на сайті
  • Інформація
  • Опис
  • Документи
Дата оголошення пропозиції:
05 березня 2024
Площа:
92.70 м2
Тип об’єкта:
Приміщення
Тип аукціону:
Англійський аукціон
Статус аукціону:
Аукціон не відбувся
Тип угоди:
Оренда
Розмір мінімального кроку:
200.00 ₴
Розмір гарантійного внеску:
5 112.04 ₴
Початок прийому пропозицій:
05.03.2024 17:04:27
Завершення прийому пропозицій:
08.04.2024 20:00:00
Проведення аукціону:
09.04.2024 12:40:00
Лот:
CLE001-UA-20240305-38983
№ лоту (УТК):
UTK180222_01T
Лот виставляється на торги (раз):
10
Стислий опис майна:
Пропонується до оренди приміщення 1-го поверху площею 92,7 кв.м. Розташування: будівля знаходиться в Шевченківському районі міста на ж/м Тополя-3. Поруч знаходяться полікліники, супермаркети, автозаправка, зупинка міського транспорту, високий автомобільний і пішохідний потоки. Стан приміщення – задовільний, підходить для будь-якого бізнесу. Можливість передачі приміщення в суборенду. Характеристики: • Кількість поверхів – 5 • Загальна площа – 4027,6 кв.м. • Площа запропонована до оренди – 92,7 кв.м. • Електропостачання, водопостачання, каналізаційна мережа, теплопостачання, охорона та обслуговування пожежної сигналізації, вивіз сміття, прибирання загальних місць та території. • Земельна ділянка – 0,2133 га (договір оренди)
Адреса місцезнаходження майна:
Україна, Дніпропетровська обл., Дніпро, вулиця Панікахи, 27
Схожі пропозиції
10.01.2023
Дніпропетровська обл., м. Дніпро, вул. Чернишевського, 27. Оренда – приміщення 1-го поверху площею 12,60 кв.м. (В)
855.79 грн
67.92 грн / м2
Приміщення
Дніпропетровська обл., м. Дніпро, вул. Чернишевського, 27. Оренда – приміщення 1-го поверху площею 12,60 кв.м. (В)
Україна, Дніпропетровська обл., м. Дніпро, вул. Чернишевського, 27
27.11.2025
Дніпропетровська обл., м. Дніпро, вул. Князя Ярослава Мудрого, 3. Оренда – приміщення 1-го поверху площею 32,8 кв.м.(В)
2 679.43 грн
81.69 грн / м2
Приміщення
Дніпропетровська обл., м. Дніпро, вул. Князя Ярослава Мудрого, 3. Оренда – приміщення 1-го поверху площею 32,8 кв.м.(В)
Україна, Дніпропетровська обл., Дніпро, вул. Князя Ярослава Мудрого, 3
Дніпропетровська обл., м. Дніпро, пр. Богдана Хмельницького, 28а. Оренда – приміщення підвалу, 2-го, 3-го та 4-го поверхів, загальною площею 1910,90 кв.м. (В)
140 642.24 грн
73.60 грн / м2
Приміщення
Дніпропетровська обл., м. Дніпро, пр. Богдана Хмельницького, 28а. Оренда – приміщення підвалу, 2-го, 3-го та 4-го поверхів, загальною площею 1910,90 кв.м. (В)
Україна, Дніпропетровська обл., м. Дніпро, пр. Богдана Хмельницького, 28а
м. Дніпро, проспект Пушкіна, 75А. Оренда - приміщення 2-го поверху площею 746,4 кв.м. (В)
7 329.65 грн
9.82 грн / м2
Приміщення
м. Дніпро, проспект Пушкіна, 75А. Оренда - приміщення 2-го поверху площею 746,4 кв.м. (В)
Україна, Дніпропетровська обл., м. Дніпро, проспект Пушкіна, 75А