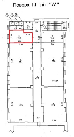
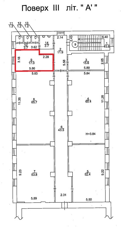
Він;ницька обл., м. Вінниця, вул. М. Оводова, 22; Оренда – приміщення 3-го поверху площею 17,00 кв.м. (В)

3 036.54 грн
178.62 грн / м2
Україна, Вінницька обл., Вінниця, вулиця Миколи Оводова, 22
Перейти до аукціону на сайті
  • Інформація
  • Опис
  • Документи
Дата оголошення пропозиції:
14 березня 2024
Площа:
17.00 м2
Тип об’єкта:
Приміщення
Тип аукціону:
Англійський аукціон
Статус аукціону:
Аукціон не відбувся
Тип угоди:
Оренда
Розмір мінімального кроку:
50.00 ₴
Розмір гарантійного внеску:
1 821.92 ₴
Початок прийому пропозицій:
14.03.2024 08:49:22
Завершення прийому пропозицій:
15.04.2024 20:00:00
Проведення аукціону:
16.04.2024 11:45:00
Лот:
CLE001-UA-20240314-61693
№ лоту (УТК):
UTK050124_01T
Лот виставляється на торги (раз):
3
Стислий опис майна:
Пропонується до оренди приміщення 3-го поверху площею 17,00 кв.м. Будівля знаходиться в центральній частині м. Вінниця в діловому та культурному центрі міста, поруч Вінницька міська та обласна ради, ресторани, торгові центри (ТРЦ «Скайпарк», «Варшава»), православний та католицький собори. Зручна транспортна розв’язка та інфраструктура. Характеристики - Кількість поверхів – 3; - Загальна площа – 3062,70 кв.м; - Площа запропонована до оренди – 17,00 кв.м; - Електропостачання, теплопостачання.
Адреса місцезнаходження майна:
Україна, Вінницька обл., Вінниця, вулиця Миколи Оводова, 22
Схожі пропозиції
Вінницька обл., м. Вінниця, вул. М. Оводова, 22. Оренда – приміщення 3-го поверху площею 187,20 кв.м. (В)
28 540.51 грн
152.46 грн / м2
Приміщення
Вінницька обл., м. Вінниця, вул. М. Оводова, 22. Оренда – приміщення 3-го поверху площею 187,20 кв.м. (В)
Україна, Вінницька обл., Вінниця, вул. М. Оводова, 22
15.06.2023
Вінницька обл., м. Вінниця, вул. М. Оводова, 22. Оренда – приміщення 3-го поверху площею 187,2 кв.м. (В)
8 648.64 грн
46.20 грн / м2
Приміщення
Вінницька обл., м. Вінниця, вул. М. Оводова, 22. Оренда – приміщення 3-го поверху площею 187,2 кв.м. (В)
Україна, Вінницька обл., Вінниця, вулиця Миколи Оводова, 22
23.07.2024
Вінницька обл., м. Вінниця, вул. Соборна, 8;  Оренда – приміщення 2-го поверху площею 17,9 кв.м. (В)
2 334.16 грн
130.40 грн / м2
Приміщення
Вінницька обл., м. Вінниця, вул. Соборна, 8; Оренда – приміщення 2-го поверху площею 17,9 кв.м. (В)
Україна, Вінницька обл., Вінниця, вулиця Соборна, 8
19.12.2023
Вінницька обл., Жмеринський р_н, смт. Браїлів, вул. Монастирська, 26;  Оренда – приміщення підвалу площею 176,4 кв.м (В)
7 197.12 грн
40.80 грн / м2
Приміщення
Вінницька обл., Жмеринський р_н, смт. Браїлів, вул. Монастирська, 26; Оренда – приміщення підвалу площею 176,4 кв.м (В)
Україна, Вінницька обл., Браїлів, вулиця Монастирська, 26