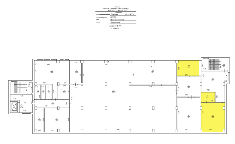
м.Харків, вул. Амосова,13 В; Оренда – приміщення четвертого поверху площею 77,6 кв.м (П)

6 733.35 грн
86.77 грн / м2
Україна, Харківська обл., Харків, вул. Амосова,13 В
Перейти до аукціону на сайті
  • Інформація
  • Опис
  • Документи
Дата оголошення пропозиції:
15 березня 2024
Площа:
77.60 м2
Тип об’єкта:
Приміщення
Тип аукціону:
Англійський аукціон
Статус аукціону:
Аукціон не відбувся
Тип угоди:
Оренда
Розмір мінімального кроку:
150.00 ₴
Розмір гарантійного внеску:
4 040.01 ₴
Початок прийому пропозицій:
15.03.2024 12:08:38
Завершення прийому пропозицій:
15.04.2024 20:00:00
Проведення аукціону:
16.04.2024 12:40:00
Лот:
CLE001-UA-20240315-40693
№ лоту (УТК):
UTK150324_06T
Лот виставляється на торги (раз):
1
Стислий опис майна:
Пропонується до оренди приміщення четветого поверху площею 77,6 кв.м. Будівля в спальному районі міста Харкова. 10 хв до зупинки транспорту. Характеристики: Кількість поверхів – 5; Загальна площа – 4736,00 кв.м_ Площа запропонована до оренди – 77,6 кв.м. Дозволена потужність – 5 кВт Теплопостачання-централізоване Земельна ділянка – 0,4825 га
Адреса місцезнаходження майна:
Україна, Харківська обл., Харків, вул. Амосова,13 В
Схожі пропозиції
Харківська обл., Красноградський р-н, смт. Сахновщина, вул. Поштова, 6. Оренда – приміщення 3-го поверху площею 387,10 кв.м. (В)
3 162.61 грн
8.17 грн / м2
Приміщення
Харківська обл., Красноградський р-н, смт. Сахновщина, вул. Поштова, 6. Оренда – приміщення 3-го поверху площею 387,10 кв.м. (В)
Україна, Харківська обл., Красноградський р-н, смт. Сахновщина, вул. Поштова, 6
Харківська обл., м. Харків, вул. Старошишківська, 5а. Оренда – приміщення 3-го поверху площею 540,7 кв.м. (В)
5 098.80 грн
9.43 грн / м2
Приміщення
Харківська обл., м. Харків, вул. Старошишківська, 5а. Оренда – приміщення 3-го поверху площею 540,7 кв.м. (В)
Україна, Харківська обл., м. Харків, вул. Старошишківська, буд. 5а
05.11.2024
м. Харків,  пр-т  Ювілейний, 66;  Оренда – приміщення 2-го поверху площею 11,2 кв.м (В)
602.34 грн
53.78 грн / м2
Приміщення
м. Харків, пр-т Ювілейний, 66; Оренда – приміщення 2-го поверху площею 11,2 кв.м (В)
Україна, Харківська обл., Харків, проспект Ювілейний, 66
21.03.2024
м. Харків, пр-т. Г. Сталінграду, 169. Оренда – приміщення 3-го поверху площею 320,9 кв.м. (В)
17 521.14 грн
54.60 грн / м2
Приміщення
м. Харків, пр-т. Г. Сталінграду, 169. Оренда – приміщення 3-го поверху площею 320,9 кв.м. (В)
Україна, Харківська обл., м. Харків, пр-т. Г. Сталінграду, 169
Переглянуті пропозиції
05.11.2024
м. Харків, просп. Олександрівський, 83. Оренда – приміщення 2-го поверху площею 118,1 кв.м. (В)
6 448.26 грн
54.60 грн / м2
Приміщення
м. Харків, просп. Олександрівський, 83. Оренда – приміщення 2-го поверху площею 118,1 кв.м. (В)
Україна, Харківська обл., м. Харків, просп. Олександрівський, 83
Сумська обл., м. Суми, вул. Петропавлівська, буд. 65. Оренда – приміщення гаражу площею 37,0 кв. м. (В)
1 709.40 грн
46.20 грн / м2
Приміщення
Сумська обл., м. Суми, вул. Петропавлівська, буд. 65. Оренда – приміщення гаражу площею 37,0 кв. м. (В)
Україна, Сумська обл., м. Суми, вул. Петропавлівська, буд. 65
12.07.2024
м. Харків, вул. Старошишківська, 5а. Оренда – приміщення 3-го поверху площею 160,4 кв.м. (В)
8 735.38 грн
54.46 грн / м2
Приміщення
м. Харків, вул. Старошишківська, 5а. Оренда – приміщення 3-го поверху площею 160,4 кв.м. (В)
Україна, Харківська обл., м. Харків, вул. Старошишківська, 5а
14.02.2024
Полтавська обл., Миргородський р-н., смт. Шишаки, вул. Корніліча, буд.10. Оренда – приміщення 2-го поверху площею 32,00 кв.м. (В)
500.80 грн
15.65 грн / м2
Приміщення
Полтавська обл., Миргородський р-н., смт. Шишаки, вул. Корніліча, буд.10. Оренда – приміщення 2-го поверху площею 32,00 кв.м. (В)
Україна, Полтавська обл., Миргородський р-н., смт. Шишаки, вул. Корніліча, буд.10