Сумська обл., Конотопський р-н, с. Землянка, вул. Центральна, буд. 49; Оренда – нежитлове приміщення площею 18,7 кв.м. (В)

502.28 грн
26.86 грн / м2
Україна, Сумська обл., Землянка, вул. Центральна, буд. 49
Перейти до аукціону на сайті
  • Інформація
  • Опис
  • Документи
Дата оголошення пропозиції:
27 березня 2024
Площа:
18.70 м2
Тип об’єкта:
Приміщення
Тип аукціону:
Англійський аукціон
Статус аукціону:
Аукціон не відбувся
Тип угоди:
Оренда
Розмір мінімального кроку:
40.00 ₴
Розмір гарантійного внеску:
301.37 ₴
Початок прийому пропозицій:
27.03.2024 15:34:14
Завершення прийому пропозицій:
29.04.2024 20:00:00
Проведення аукціону:
30.04.2024 11:15:00
Лот:
CLE001-UA-20240327-42051
№ лоту (УТК):
UTK070622_3T
Лот виставляється на торги (раз):
10
Стислий опис майна:
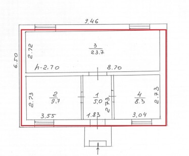
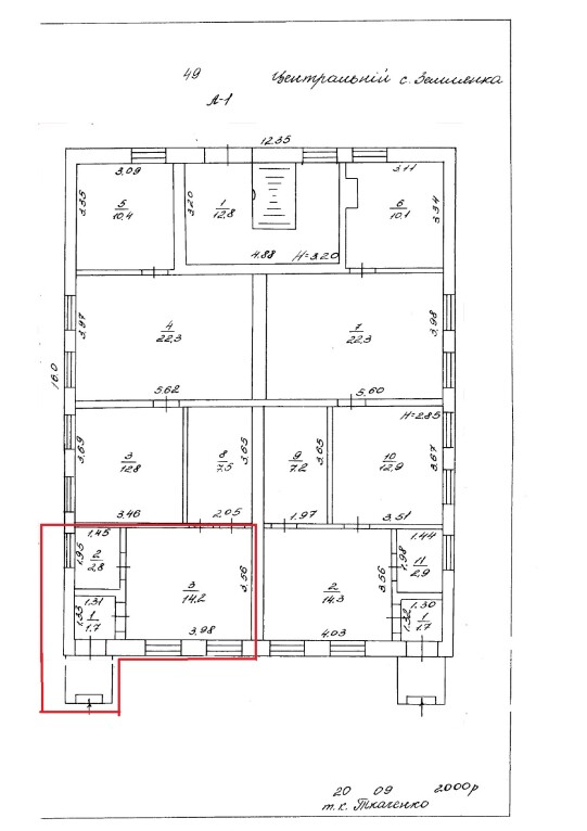
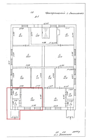
Пропонується до оренди нежитлове приміщення площею 18,7 кв.м. Знаходиться в 1-поверховому будинку АТС в центральній частині села. Звичайний ремонт. Поруч приватний сектор. Характеристики • Кількість поверхів – 1 • Загальна площа – 18,7 кв.м. • Площа запропонована до оренди – 18,7 кв.м. • Електроенергія – наявне , опалення, водопостачання – відсутні; • Земельна ділянка – 0,0043 га (договір оренди ЗД) • Стан приміщення – задовільний
Адреса місцезнаходження майна:
Україна, Сумська обл., Землянка, вул. Центральна, буд. 49
Схожі пропозиції
15.10.2025
Сумська обл., Конотопський р-н, с. Кошари, вул. Центральна, 3. Оренда – нежитлове приміщення площею 26,20 кв.м. (В)
540.24 грн
20.62 грн / м2
Приміщення
Сумська обл., Конотопський р-н, с. Кошари, вул. Центральна, 3. Оренда – нежитлове приміщення площею 26,20 кв.м. (В)
Україна, Сумська обл., Конотопський р-н, с. Кошари, вул. Центральна, 3
22.10.2024
Сумська обл., Охтирський р-н, с. Довжик, вул. Адміністративна, буд.1;   Оренда – нежитлове приміщення площею 23,70 кв. м. (В)
579.47 грн
24.45 грн / м2
Приміщення
Сумська обл., Охтирський р-н, с. Довжик, вул. Адміністративна, буд.1; Оренда – нежитлове приміщення площею 23,70 кв. м. (В)
Україна, Сумська обл., с. Довжик, вул. Адміністративна, буд. 1
Сумська обл., м. Охтирка, вул. Пушкіна, буд. 26. Оренда – приміщення гаражів, площею 159,00 кв.м. (В)
2 098.80 грн
13.20 грн / м2
Приміщення
Сумська обл., м. Охтирка, вул. Пушкіна, буд. 26. Оренда – приміщення гаражів, площею 159,00 кв.м. (В)
Україна, Сумська обл., м. Охтирка, вул. Пушкіна, буд. 26
14.02.2024
Сумська обл., Охтирський р-н., с. Чернеччина, вул. Заводська, буд.1;    Оренда – нежитлова будівля, площею 46,7 кв.м. (В)
500.62 грн
10.72 грн / м2
Приміщення
Сумська обл., Охтирський р-н., с. Чернеччина, вул. Заводська, буд.1; Оренда – нежитлова будівля, площею 46,7 кв.м. (В)
Україна, Сумська обл., Чернеччина, вул. Заводська, буд. 1
Переглянуті пропозиції
22.04.2025
м.Харків, Салтівське шосе,2. Оренда – приміщення 1-го поверху, площею 41,00 кв.м (В)
1 271.00 грн
31.00 грн / м2
Приміщення
м.Харків, Салтівське шосе,2. Оренда – приміщення 1-го поверху, площею 41,00 кв.м (В)
Україна, Харківська обл., м. Харків, Салтівське шосе,2