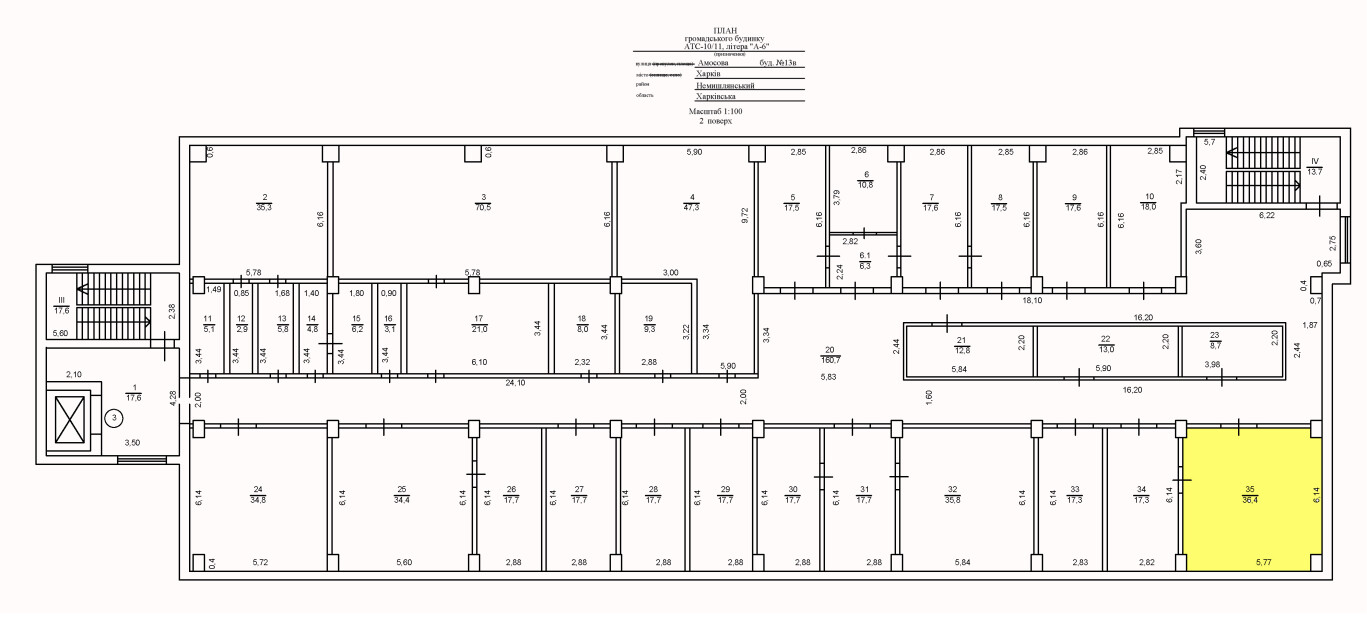
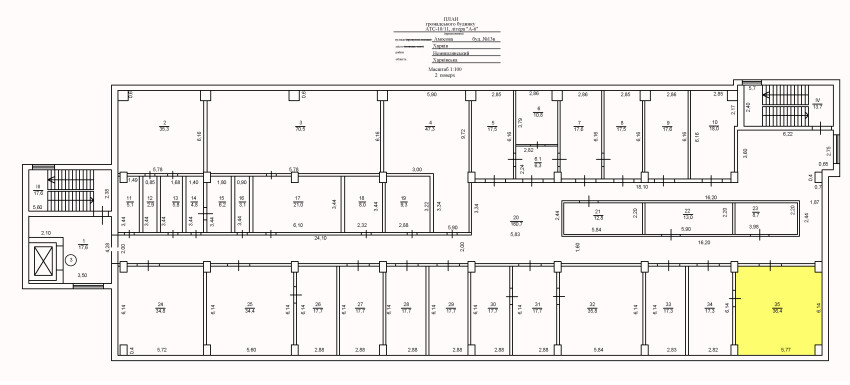
м. Харків, вул. Амосова,13-в. Оренда - приміщення 2-го поверху площею 36,4 кв.м (В)

2 210.94 грн
60.57 грн / м2
Україна, Харківська обл., м. Харків, вул. Амосова,13-в
Перейти до аукціону на сайті
  • Інформація
  • Опис
  • Документи
Дата оголошення пропозиції:
28 березня 2024
Площа:
36.50 м2
Тип об’єкта:
Приміщення
Тип аукціону:
Англійський аукціон
Статус аукціону:
Аукціон не відбувся
Тип угоди:
Оренда
Розмір мінімального кроку:
200.00 ₴
Розмір гарантійного внеску:
1 326.56 ₴
Початок прийому пропозицій:
28.03.2024 11:59:19
Завершення прийому пропозицій:
29.04.2024 20:00:00
Проведення аукціону:
30.04.2024 11:45:00
Лот:
CLE001-UA-20240328-37413
№ лоту (УТК):
UTK070723_04P
Лот виставляється на торги (раз):
8
Стислий опис майна:
Пропонується до оренди приміщення 2-го поверху площею 36,4 кв.м. Будівля в спальному районі міста Харкова. 10 хв до зупинки транспорту. Характеристики: Кількість поверхів – 5; Загальна площа – 4838,00 кв.м_ Площа запропонована до оренди -36,4 кв.м Дозволена потужність – 5 кВт Теплопостачання-централізоване Земельна ділянка – 0,4825 га
Адреса місцезнаходження майна:
Україна, Харківська обл., м. Харків, вул. Амосова,13-в
Схожі пропозиції
Харківська обл., м. Балаклія, вул. Соборна, 28. Оренда – приміщення 1-го поверху площею 359,7 кв.м. (В)
2 899.18 грн
8.06 грн / м2
Приміщення
Харківська обл., м. Балаклія, вул. Соборна, 28. Оренда – приміщення 1-го поверху площею 359,7 кв.м. (В)
Україна, Харківська обл., м. Балаклія, вул. Соборна, буд. 28
16.11.2023
м. Харків, пр-т. Г. Сталінграду, 169. Оренда – приміщення 2-го поверху площею 36,3 кв.м. (В)
1 981.98 грн
54.60 грн / м2
Приміщення
м. Харків, пр-т. Г. Сталінграду, 169. Оренда – приміщення 2-го поверху площею 36,3 кв.м. (В)
Україна, Харківська обл., м. Харків, пр-т. Г. Сталінграду, 169
22.04.2025
м. Харків, Салтівське шосе, 2. Оренда – приміщення 2-го поверху, площею 343,7 кв.м (В)
10 654.70 грн
31.00 грн / м2
Приміщення
м. Харків, Салтівське шосе, 2. Оренда – приміщення 2-го поверху, площею 343,7 кв.м (В)
Україна, Харківська обл., м. Харків, Салтівське шосе, 2
05.05.2023
Харківська обл., м. Первомайський, мікрорайон 3, буд.1-А. Оренда – приміщення першого поверху, площею 145,2 кв.м. (В)
871.20 грн
6.00 грн / м2
Приміщення
Харківська обл., м. Первомайський, мікрорайон 3, буд.1-А. Оренда – приміщення першого поверху, площею 145,2 кв.м. (В)
Україна, Харківська обл., м. Первомайський, мікрорайон 3, буд.1-А
Переглянуті пропозиції
26.07.2023
Рівненська обл., м. Рівне, вул. Дубенська, 44б. Оренда – приміщення 1-го поверху одноповерхової будівлі площею 65,1 кв.м. (В)
7 575.04 грн
116.36 грн / м2
Приміщення
Рівненська обл., м. Рівне, вул. Дубенська, 44б. Оренда – приміщення 1-го поверху одноповерхової будівлі площею 65,1 кв.м. (В)
Україна, Рівненська обл., м. Рівне, вул. Дубенська, 44б