Вінницька обл., Жмеринський р-н., м. Бар, майдан Святого Миколая, 20. Оренда – приміщення 3-го поверху площею 57,0 кв.м. (В)

399.00 грн
7.00 грн / м2
Україна, Вінницька обл., Жмеринський р-н., м. Бар, майдан Святого Миколая, 20
Перейти до аукціону на сайті
  • Інформація
  • Опис
  • Документи
Дата оголошення пропозиції:
04 квітня 2024
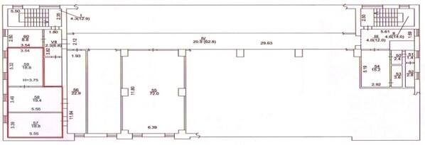
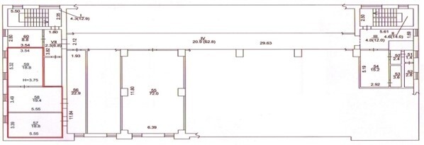
Площа:
57.00 м2
Тип об’єкта:
Приміщення
Тип аукціону:
Англійський аукціон
Статус аукціону:
Аукціон не відбувся
Тип угоди:
Оренда
Розмір мінімального кроку:
10.00 ₴
Розмір гарантійного внеску:
239.40 ₴
Початок прийому пропозицій:
04.04.2024 13:22:34
Завершення прийому пропозицій:
07.05.2024 20:00:00
Проведення аукціону:
08.05.2024 11:50:00
Лот:
CLE001-UA-20240404-97921
№ лоту (УТК):
UTK120721_02P
Лот виставляється на торги (раз):
10
Стислий опис майна:
До оренди пропонуються приміщення 3го поверху площею 57 кв.м. Будівля знаходиться в центральній частині м. Бар в діловому та культурному центрі міста, поруч Барська міська рада та районна державна адміністрація, районний суд, районна бібліотека, будинок культури, магазини, (супермаркет «Грош», «Місто»), костел святої Анни та Миколаївська церква. Характеристики: Кількість поверхів –3 ; Електропостачання.
Адреса місцезнаходження майна:
Україна, Вінницька обл., Жмеринський р-н., м. Бар, майдан Святого Миколая, 20
Схожі пропозиції
20.02.2024
Вінницька обл., Гайсинський р-н., м. Тростянець, вул. Соборна, 47. Оренда – приміщення 3 поверху площею 66,20 кв.м. (В)
331.00 грн
5.00 грн / м2
Приміщення
Вінницька обл., Гайсинський р-н., м. Тростянець, вул. Соборна, 47. Оренда – приміщення 3 поверху площею 66,20 кв.м. (В)
Україна, Вінницька обл., Гайсинський р-н., м. Тростянець, вул. Соборна, 47
Вінницька обл., м. Іллінці, вул. Соборна, 29. Оренда – приміщення 1-го поверху
809.82 грн
19.80 грн / м2
Приміщення
Вінницька обл., м. Іллінці, вул. Соборна, 29. Оренда – приміщення 1-го поверху
Україна, Вінницька обл., м. Іллінці, вул. Соборна, буд. 29
Вінницька обл., Вінницький р-н., м. Липовець, вул. В. Липківського, 26. Оренда – Приміщення 3-го поверху площею 123,7 кв.м.(В)
3 428.96 грн
27.72 грн / м2
Приміщення
Вінницька обл., Вінницький р-н., м. Липовець, вул. В. Липківського, 26. Оренда – Приміщення 3-го поверху площею 123,7 кв.м.(В)
Україна, Вінницька обл., м. Липовець, вул. В. Липківського, 26
Вінницька обл., Хмільницький р-н, м. Козятин, вул. Незалежності 39. Оренда – приміщення 3-го поверху площею 288,40 кв.м. (В)
4 778.79 грн
16.57 грн / м2
Приміщення
Вінницька обл., Хмільницький р-н, м. Козятин, вул. Незалежності 39. Оренда – приміщення 3-го поверху площею 288,40 кв.м. (В)
Україна, Вінницька обл., Козятин, вул. Незалежності 39