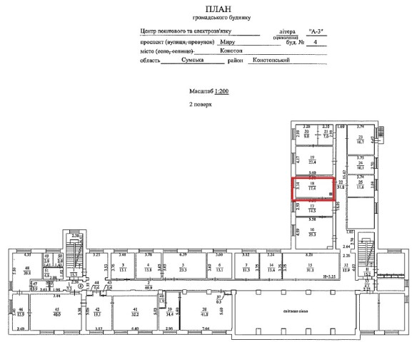
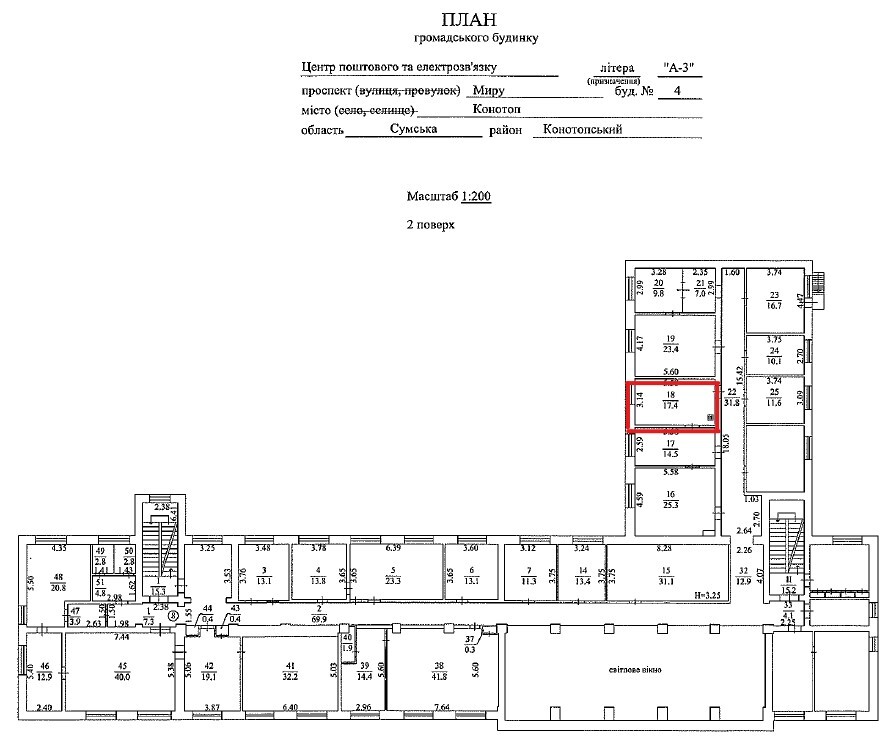
Сумська обл., м. Конотоп, пл. Миру, буд. 4. Оренда – приміщення 2-го поверху площею 17,40 кв.м. (В)

736.02 грн
42.30 грн / м2
Україна, Сумська обл., Конотоп, пл. Миру, буд. 4
Перейти до аукціону на сайті
  • Інформація
  • Опис
  • Документи
Дата оголошення пропозиції:
12 січня 2022
Площа:
17.40 м2
Тип об’єкта:
Приміщення
Тип аукціону:
Англійський аукціон
Статус аукціону:
Аукціон не відбувся
Тип угоди:
Оренда
Розмір мінімального кроку:
85.00 ₴
Розмір гарантійного внеску:
441.61 ₴
Початок прийому пропозицій:
12.01.2022 10:48:14
Завершення прийому пропозицій:
09.02.2022 20:00:00
Лот:
UA-PS-2022-01-12-000008-2
№ лоту (УТК):
UTK251021_12T
Лот виставляється на торги (раз):
3
Стислий опис майна:
Пропонується до оренди приміщення 2-го поверху, площею 17,40 кв. м. Знаходиться в центральній частині міста. Добра візуалізація з дороги. Високий автомобільний та пішохідний потік. Характеристики: • кількість поверхів – 3; • Загальна площа – 2809,80 кв.м.; • Площа запропонована до оренди – 17,40 кв.м.; • Електропостачання, опалення - наявне; • Водопостачання - відсутнє ( є можливість користування санвузлом загального користування на першому поверсі); • земельна ділянка – 0,0415 га (договір оренди ЗД); • стан приміщення – задовільний.
Адреса місцезнаходження майна:
Україна, Сумська обл., Конотоп, пл. Миру, буд. 4
Схожі пропозиції
21.01.2025
Сумська обл., м. Суми, вул. Іллінська, буд. 2. Оренда – частина приміщення цокольного поверху площею 147,9 кв. м. (В)
73 950.00 грн
500.00 грн / м2
Приміщення
Сумська обл., м. Суми, вул. Іллінська, буд. 2. Оренда – частина приміщення цокольного поверху площею 147,9 кв. м. (В)
Україна, Сумська обл., м. Суми, вул. Іллінська, буд. 2
16.05.2023
Сумська обл., Сумський р-н., м. Ворожба, вул. Центральна (Комсомольська), буд. 65. Оренда – нежитлове приміщення, площею 28,0 кв.м. (В)
500.36 грн
17.87 грн / м2
Приміщення
Сумська обл., Сумський р-н., м. Ворожба, вул. Центральна (Комсомольська), буд. 65. Оренда – нежитлове приміщення, площею 28,0 кв.м. (В)
Україна, Сумська обл., Ворожба, вул. Центральна (Комсомольська), буд. 65
10.10.2023
Сумська обл., м. Кролевець, вул. Миру, буд. 8. Оренда – приміщення 1-го поверху площею 9,4 кв.м. (В)
507.60 грн
54.00 грн / м2
Приміщення
Сумська обл., м. Кролевець, вул. Миру, буд. 8. Оренда – приміщення 1-го поверху площею 9,4 кв.м. (В)
Україна, Сумська обл., м. Кролевець, вул. Миру, буд. 8
06.08.2024
Сумська обл., Охтирський р-н, с. Бугрувате, вул. Литовченка, буд. 3;  Оренда – нежитлове приміщення площею 24,70 кв. м. (В)
553.53 грн
22.41 грн / м2
Приміщення
Сумська обл., Охтирський р-н, с. Бугрувате, вул. Литовченка, буд. 3; Оренда – нежитлове приміщення площею 24,70 кв. м. (В)
Україна, Сумська обл., с. Бугрувате, вул. Литовченка, буд. 3