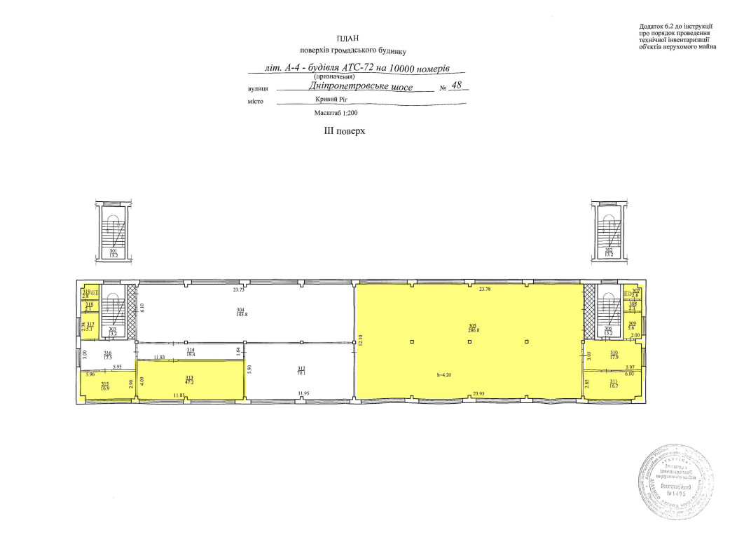
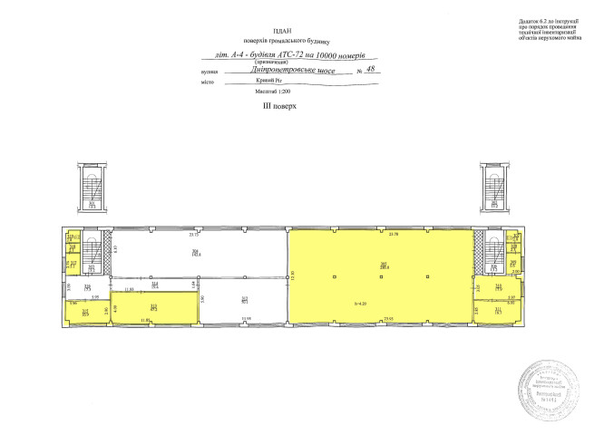
Дніпропетровська обл., м. Кривий Ріг, вул. Дніпропетровське шосе, 48; Оренда – приміщення 3-го поверху, площею 403,4 кв.м. (В)

6 204.29 грн
15.38 грн / м2
Україна, Дніпропетровська обл., Кривий Ріг, вулиця Дніпровське шосе, 48
Перейти до аукціону на сайті
  • Інформація
  • Опис
  • Документи
Дата оголошення пропозиції:
15 квітня 2024
Площа:
403.40 м2
Тип об’єкта:
Приміщення
Тип аукціону:
Англійський аукціон
Статус аукціону:
Аукціон не відбувся
Тип угоди:
Оренда
Розмір мінімального кроку:
100.00 ₴
Розмір гарантійного внеску:
3 722.58 ₴
Початок прийому пропозицій:
15.04.2024 20:13:30
Завершення прийому пропозицій:
16.05.2024 20:00:00
Проведення аукціону:
17.05.2024 12:40:00
Лот:
CLE001-UA-20240415-25159
№ лоту (УТК):
UTK051121_02Т
Лот виставляється на торги (раз):
10
Стислий опис майна:
Пропонуються до оренди приміщення 3-го поверху, площею 403,4 кв.м. Будівля знаходиться в Довгінцевському районі м. Кривого Рогу. Поруч розташовані: житловий масив, відділення Нової пошти, ТЦ Варус, АТБ, центральний автовокзал. Зручна транспортна та пішохідна розв’язка. Вхід в приміщення спільний. Характеристики: - Кількість поверхів – 4; - Загальна площа – 2 620,8кв.м_ - Площа запропонована до оренди – 403,4 кв.м -Електропостачання, водопостачання, теплопостачання - централізоване. - Земельна ділянка – 0,3347 га (договір оренди)
Адреса місцезнаходження майна:
Україна, Дніпропетровська обл., Кривий Ріг, вулиця Дніпровське шосе, 48
Схожі пропозиції
Дніпропетровська обл., м. Дніпро, вулиця Чернишевського, буд. 27. Оренда – приміщення 2-го поверху, площею 89,30 кв.м. (В)
3 473.59 грн
38.90 грн / м2
Приміщення
Дніпропетровська обл., м. Дніпро, вулиця Чернишевського, буд. 27. Оренда – приміщення 2-го поверху, площею 89,30 кв.м. (В)
Україна, Дніпропетровська обл., м. Дніпро, вулиця Чернишевського, буд. 27
06.06.2025
Дніпропетровська обл., м. Жовті Води, вул. Свободи, 39. Оренда – приміщення 1-го поверху площею 30,00 кв.м.(В)
600.00 грн
20.00 грн / м2
Приміщення
Дніпропетровська обл., м. Жовті Води, вул. Свободи, 39. Оренда – приміщення 1-го поверху площею 30,00 кв.м.(В)
Україна, Дніпропетровська обл., Жовті Води, Жовті Води, вул. Свободи, 39
21.04.2023
Дніпропетровська обл., м. Дніпро, вул. Чернишевського, 27. Оренда – приміщення 1-го поверху площею 14,30 кв.м. (В)
660.66 грн
46.20 грн / м2
Приміщення
Дніпропетровська обл., м. Дніпро, вул. Чернишевського, 27. Оренда – приміщення 1-го поверху площею 14,30 кв.м. (В)
Україна, Дніпропетровська обл., м. Дніпро, вул. Чернишевського, 27
10.01.2023
Дніпропетровська обл., м. Дніпро, вул. Панікахи, 27. Оренда – приміщення 3-го поверху площею 742,0 кв.м. (В)
34 280.40 грн
46.20 грн / м2
Приміщення
Дніпропетровська обл., м. Дніпро, вул. Панікахи, 27. Оренда – приміщення 3-го поверху площею 742,0 кв.м. (В)
Україна, Дніпропетровська обл., м. Дніпро, вул. Панікахи, 27
Переглянуті пропозиції
25.07.2023
Рівненська обл., Рівненський р-н., с. Вітковичі, вул. Ковальська, 1. Оренда – частина приміщення одноповерхової будівлі, площею 10,8 кв.м. (В)
500.04 грн
46.30 грн / м2
Приміщення
Рівненська обл., Рівненський р-н., с. Вітковичі, вул. Ковальська, 1. Оренда – частина приміщення одноповерхової будівлі, площею 10,8 кв.м. (В)
Україна, Рівненська обл., Рівненський р-н., с. Вітковичі, вул. Ковальська, 1