Сумська обл., Роменський р-н., с. Хоружівка, вул. б/н. Оренда – частина нежитлового приміщення площею 38,70 кв.м. (В)

2 042.97 грн
52.79 грн / м2
Україна, Сумська обл., Роменський р-н., с. Хоружівка, вул. б/н
Перейти до аукціону на сайті
  • Інформація
  • Опис
  • Документи
Дата оголошення пропозиції:
02 травня 2024
Площа:
38.70 м2
Тип об’єкта:
Приміщення
Тип аукціону:
Англійський аукціон
Статус аукціону:
Аукціон не відбувся
Тип угоди:
Оренда
Розмір мінімального кроку:
50.00 ₴
Розмір гарантійного внеску:
1 225.78 ₴
Початок прийому пропозицій:
02.05.2024 10:59:58
Завершення прийому пропозицій:
04.06.2024 20:00:00
Проведення аукціону:
05.06.2024 11:10:00
Лот:
CLE001-UA-20240502-84490
№ лоту (УТК):
UTK081122_09P
Лот виставляється на торги (раз):
10
Стислий опис майна:
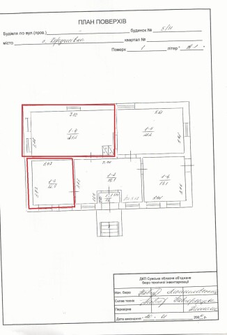
Пропонується до оренди частина нежитлового приміщення площею 38,70 кв.м. Будівля знаходиться в центральній частині села. Можливість передачі приміщень в суборенду. Доступ вільний 24/7. Характеристики: Кількість поверхів – 1; Загальна площа – 93,70 кв.м. Площа запропонована до оренди - 38,70 кв.м. Електроенергія – наявне , опалення, водопостачання – відсутні; Земельна ділянка – 0,140 га (договір оренди)
Адреса місцезнаходження майна:
Україна, Сумська обл., Роменський р-н., с. Хоружівка, вул. б/н
Схожі пропозиції
03.06.2025
Сумська обл., Сумський р-н., с. Воронівка, вул. Миру, буд. 15. Оренда – нежитлове приміщення площею 22,40 кв.м. (В)
500.64 грн
22.35 грн / м2
Приміщення
Сумська обл., Сумський р-н., с. Воронівка, вул. Миру, буд. 15. Оренда – нежитлове приміщення площею 22,40 кв.м. (В)
Україна, Сумська обл., Воронівка, Воронівка, вул. Миру, буд. 15
27.12.2022
Сумська обл., Конотопський р-н, с. Малий Самбір, вул. Центральна, 1А. Оренда – нежитлове приміщення площею 17,90 кв.м. (В)
369.10 грн
20.62 грн / м2
Приміщення
Сумська обл., Конотопський р-н, с. Малий Самбір, вул. Центральна, 1А. Оренда – нежитлове приміщення площею 17,90 кв.м. (В)
Україна, Сумська обл., с. Малий Самбір, вул. Центральна, 1А
14.09.2022
Сумська обл., м. Конотоп, пл. Миру, буд. 4. Оренда – приміщення 1-го поверху площею 26,20 кв. м. (В)
912.55 грн
34.83 грн / м2
Приміщення
Сумська обл., м. Конотоп, пл. Миру, буд. 4. Оренда – приміщення 1-го поверху площею 26,20 кв. м. (В)
Україна, Сумська обл., Конотоп, пл. Миру, буд. 4
12.07.2024
Сумська обл., м. Суми, пр-т. Курський, буд. 37. Оренда – приміщення нежитлові площею 613,5 кв. м., (В)
29 079.90 грн
47.40 грн / м2
Приміщення
Сумська обл., м. Суми, пр-т. Курський, буд. 37. Оренда – приміщення нежитлові площею 613,5 кв. м., (В)
Україна, Сумська обл., м. Суми, пр-т. Курський, буд. 37., пр-т. Курський, буд. 37