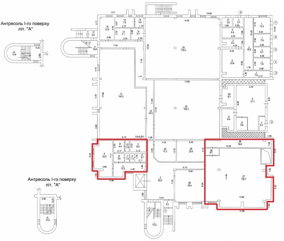
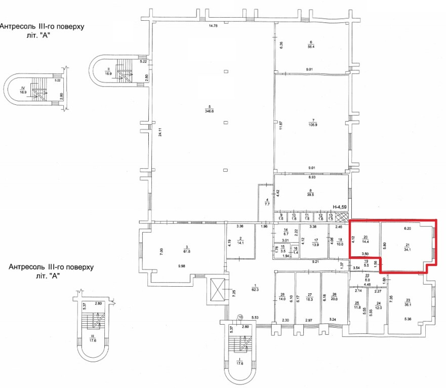
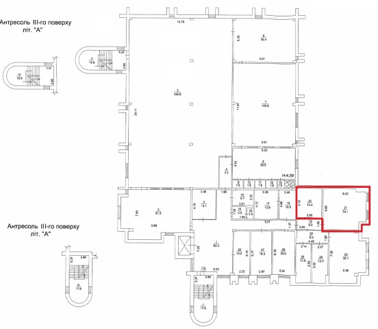
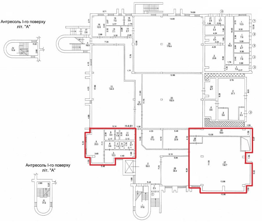
м. Київ, вул. Архітектора Вербицького, 3; Оренда – приміщення 1-го та 3-го поверху площею 263,7 кв.м. (В)

25 251.91 грн
95.76 грн / м2
Україна, м.Київ, Київ, вул. Архітектора Вербицького, 3
Перейти до аукціону на сайті
  • Інформація
  • Опис
  • Документи
Дата оголошення пропозиції:
09 травня 2024
Площа:
263.70 м2
Тип об’єкта:
Приміщення
Тип аукціону:
Англійський аукціон
Статус аукціону:
Аукціон не відбувся
Тип угоди:
Оренда
Розмір мінімального кроку:
260.00 ₴
Розмір гарантійного внеску:
15 151.15 ₴
Початок прийому пропозицій:
09.05.2024 15:54:33
Завершення прийому пропозицій:
13.06.2024 20:00:00
Проведення аукціону:
14.06.2024 12:55:00
Лот:
CLE001-UA-20240509-23118
№ лоту (УТК):
UTK181122_01T
Лот виставляється на торги (раз):
10
Стислий опис майна:
Пропонується до оренди приміщення 1-го та 3-го поверху площею 263,7 кв.м . Будівля знаходиться в Дарницькому районі міста Києва, житловий масив Харківський. Зупинки маршрутного транспорту, супермаркети, торгово-розважальні центри. Найближчі станції метро «Харківська», «Вирлиця». Вхід з двору. Характеристики: • загальна площа будівлі – 4804,7 м2 • кількість поверхів – 5; • опалення централізоване (міське); • земельна ділянка – 0,5530 га; • каналізація, водозабезпечення, сан. вузол – присутні
Адреса місцезнаходження майна:
Україна, м.Київ, Київ, вул. Архітектора Вербицького, 3
Схожі пропозиції
16.08.2022
м. Київ, вул. Макіївська, 3.Оренда – приміщення 2-го поверху, площею 724,10 м2 (В)
33 453.42 грн
46.20 грн / м2
Приміщення
м. Київ, вул. Макіївська, 3.Оренда – приміщення 2-го поверху, площею 724,10 м2 (В)
Україна, м.Київ, Київ, вул. Макіївська, 3
11.05.2023
м. Київ, вул. Василя Макуха (Івана Шевцова), 5 Оренда – приміщення 1-го поверху будівлі, площею 401,5 м2 (В)
61 453.59 грн
153.06 грн / м2
Приміщення
м. Київ, вул. Василя Макуха (Івана Шевцова), 5 Оренда – приміщення 1-го поверху будівлі, площею 401,5 м2 (В)
Україна, м.Київ, м. Київ, вулиця Василя Макуха (Івана Шевцова), 5
21.10.2025
м. Київ, вул. Наталії Ужвій 1 (Подільський р-н). Оренда – приміщення 3-го поверху, загальною площею – 105,80 м. кв. (В)
Переглянуті пропозиції
26.11.2025
Харківська обл., м. Харків, вул. Старошишківська, 5-А. Оренда – приміщення на 1-му поверсі площею 35,90 кв.м. (В)
1 077.00 грн
30.00 грн / м2
Приміщення
Харківська обл., м. Харків, вул. Старошишківська, 5-А. Оренда – приміщення на 1-му поверсі площею 35,90 кв.м. (В)
Україна, Харківська обл., м. Харків, вул. Старошишківська, 5-А