Тернопільська обл., м. Тернопіль, вул. Бордуляка, 5. Оренда – приміщення складу на 2-му поверсі площею 290 кв.м. (В)

16 286.40 грн
56.16 грн / м2
Україна, Львівська обл., м. Тернопіль, вул. Бордуляка, 5
Перейти до аукціону на сайті
  • Інформація
  • Опис
  • Документи
Дата оголошення пропозиції:
21 травня 2024
Площа:
290.00 м2
Тип об’єкта:
Приміщення
Тип аукціону:
Англійський аукціон
Статус аукціону:
Аукціон не відбувся
Тип угоди:
Оренда
Розмір мінімального кроку:
250.00 ₴
Розмір гарантійного внеску:
9 771.84 ₴
Початок прийому пропозицій:
21.05.2024 15:53:23
Завершення прийому пропозицій:
20.06.2024 20:00:00
Проведення аукціону:
21.06.2024 11:05:00
Лот:
CLE001-UA-20240521-71526
№ лоту (УТК):
UTK190523_04P
Лот виставляється на торги (раз):
10
Стислий опис майна:
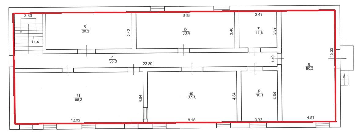
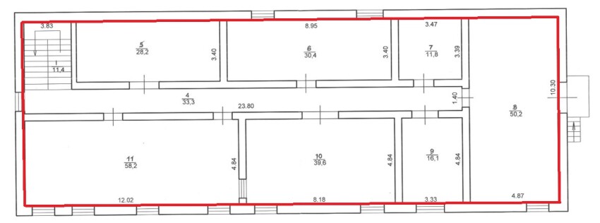
Пропонуються до оренди приміщення складів на другому поверсі двох поверхової будівлі, площею 290,0 кв.м. Будівля знаходиться в наближеному до центра міста районі, навколо малоповерхова житлова забудова зручний заїзд. Велика територія для проїзду та паркінгу, габаритних авто. Характеристики: кількість поверхів – 2; опалення – відсутнє; водопостачання, водовідведення – відсутнє.
Адреса місцезнаходження майна:
Україна, Львівська обл., м. Тернопіль, вул. Бордуляка, 5
Схожі пропозиції
03.04.2024
Львівська обл., м. Ходорів, вул. Шевченка, 119. Оренда – нежитлове приміщення площею 47,2 кв. м. та гаражі – 137,7 кв. м. (В)
1 930.36 грн
10.44 грн / м2
Приміщення
Львівська обл., м. Ходорів, вул. Шевченка, 119. Оренда – нежитлове приміщення площею 47,2 кв. м. та гаражі – 137,7 кв. м. (В)
Україна, Львівська обл., м. Ходорів, вул. Шевченка, 119
03.04.2024
Львівська обл., Радехівський р-н., с. Барилів, вул. Б. Хмельницького, 1. Оренда – приміщення 1-го поверху площею 14,70 кв.м. (В)
294.00 грн
20.00 грн / м2
Приміщення
Львівська обл., Радехівський р-н., с. Барилів, вул. Б. Хмельницького, 1. Оренда – приміщення 1-го поверху площею 14,70 кв.м. (В)
Україна, Львівська обл., Радехівський р-н., с. Барилів, вул. Б. Хмельницького, 1
30.07.2024
Львівська обл., м. Львів, вул. Виговського, 29а. Оренда – приміщення підвалу площею 86,80 кв.м (В)
7 812.87 грн
90.01 грн / м2
Приміщення
Львівська обл., м. Львів, вул. Виговського, 29а. Оренда – приміщення підвалу площею 86,80 кв.м (В)
Україна, Львівська обл., м. Львів, вул. Виговського, 29а
Львівська обл., м. Городок, вул. Львівська, 16. Оренда – приміщення 4-го поверху площею 156,60 кв. м. (В)
2 148.55 грн
13.72 грн / м2
Приміщення
Львівська обл., м. Городок, вул. Львівська, 16. Оренда – приміщення 4-го поверху площею 156,60 кв. м. (В)
Україна, Львівська обл., Городок, вул. Львівська, 16
Переглянуті пропозиції
24.06.2025
м. Харків, вул.Конторська,14 Оренда – приміщення четвертого поверху площею 25,8 кв.м (В)
2 040.52 грн
79.09 грн / м2
Приміщення
м. Харків, вул.Конторська,14 Оренда – приміщення четвертого поверху площею 25,8 кв.м (В)
Україна, Харківська обл., Харків, вулиця Конторська, 14
Харківська обл., м. Харків, вул. Старошишківська, 5а. Оренда – приміщення 3-го поверху площею 540,7 кв.м. (В)
4 076.88 грн
7.54 грн / м2
Приміщення
Харківська обл., м. Харків, вул. Старошишківська, 5а. Оренда – приміщення 3-го поверху площею 540,7 кв.м. (В)
Україна, Харківська обл., м. Харків, вул. Старошишківська, буд. 5а
Полтавська обл., смт. Семенівка, вул. Воїнів Інтернаціоналістів, буд. 12/9. Оренда – приміщення 2-го поверху 10,6 кв.м.
471.70 грн
44.50 грн / м2
Приміщення
Полтавська обл., смт. Семенівка, вул. Воїнів Інтернаціоналістів, буд. 12/9. Оренда – приміщення 2-го поверху 10,6 кв.м.
Україна, Полтавська обл., смт. Семенівка, вул. Воїнів Інтернаціоналістів, буд. 12/9