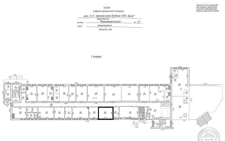
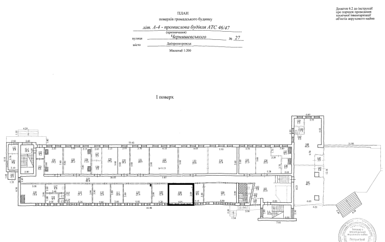
Дніпропетровська обл., м. Дніпро, вул.Чернишевського, 27; Оренда – приміщення 1-го поверху площею 19,8 кв.м.(В)

2 004.95 грн
101.26 грн / м2
Україна, Дніпропетровська обл., Дніпро, вулиця Чернишевського, 27
Перейти до аукціону на сайті
  • Інформація
  • Опис
  • Документи
Дата оголошення пропозиції:
22 травня 2024
Площа:
19.80 м2
Тип об’єкта:
Приміщення
Тип аукціону:
Англійський аукціон
Статус аукціону:
Аукціон не відбувся
Тип угоди:
Оренда
Розмір мінімального кроку:
50.00 ₴
Розмір гарантійного внеску:
1 202.97 ₴
Початок прийому пропозицій:
22.05.2024 12:48:05
Завершення прийому пропозицій:
24.06.2024 20:00:00
Проведення аукціону:
25.06.2024 12:10:00
Лот:
CLE001-UA-20240522-85249
№ лоту (УТК):
UTK180222_02T
Лот виставляється на торги (раз):
10
Стислий опис майна:
Пропонується до оренди приміщення 1-го поверху площею 19,8 кв.м. Будівля знаходиться в Соборному районі міста. Поруч знаходяться відділення банку, супермаркети, учбові заклади, зупинка громадського транспорту, високий автомобільний і пішохідний потоки. Стан приміщення задовільний, підходить для офісу, студії, Ідеальне місце під розвиток будь-якого бізнесу. Можливість передачі приміщень в суборенду. Характеристики: - Кількість поверхів – 4 - Загальна площа – 4 137,1 кв.м. - Електропостачання, водопостачання, теплопостачання, вивіз сміття, охорона та обслуговування пожежної сигналізації, прибирання загальних місць та території; - Земельна ділянка – 0, 358 га (договір оренди)
Адреса місцезнаходження майна:
Україна, Дніпропетровська обл., Дніпро, вулиця Чернишевського, 27
Схожі пропозиції
29.02.2024
Дніпропетровська обл., м. Кривий Ріг, вул. Водоп`янова, 1а;  Оренда – приміщення 4-го поверху, площею 789,8 кв.м. (В)
7 108.20 грн
9.00 грн / м2
Приміщення
Дніпропетровська обл., м. Кривий Ріг, вул. Водоп`янова, 1а; Оренда – приміщення 4-го поверху, площею 789,8 кв.м. (В)
Україна, Дніпропетровська обл., Кривий Ріг, вулиця Водоп'янова, 1а
05.03.2024
Дніпропетровська обл., м. Дніпро, вул. Князя Ярослава Мудрого , 3.Оренда – приміщення 2-го поверху площею 40,10 кв.м  (В)
6 854.29 грн
170.93 грн / м2
Приміщення
Дніпропетровська обл., м. Дніпро, вул. Князя Ярослава Мудрого , 3.Оренда – приміщення 2-го поверху площею 40,10 кв.м (В)
Україна, Дніпропетровська обл., м. Дніпро, вул. Князя Ярослава Мудрого , 3
04.06.2024
ДОВГОСТРОКОВА ОРЕНДА! Дніпропетровська обл., м. Кам’янське, просп. Героїв АТО, 1. Оренда – приміщення 4-го поверху загальною площею 536,30 кв.м (В)
18 770.50 грн
35.00 грн / м2
Приміщення
ДОВГОСТРОКОВА ОРЕНДА! Дніпропетровська обл., м. Кам’янське, просп. Героїв АТО, 1. Оренда – приміщення 4-го поверху загальною площею 536,30 кв.м (В)
Україна, Дніпропетровська обл., м. Кам’янське, просп. Героїв АТО, 1
25.04.2025
Дніпропетровська обл., м. Дніпро, вул. Князя Ярослава Мудрого, 3. Оренда – приміщення 4-го поверху площею 51,40 кв.м (В)
6 075.48 грн
118.20 грн / м2
Приміщення
Дніпропетровська обл., м. Дніпро, вул. Князя Ярослава Мудрого, 3. Оренда – приміщення 4-го поверху площею 51,40 кв.м (В)
Україна, Дніпропетровська обл., м. Дніпро, вул. Князя Ярослава Мудрого, 3