Сумська обл., Шосткинський р-н, м. Середино-Буда, вул. Європейська, буд. 10. Оренда – офісні приміщення 1-го поверху площею 79,30 кв.м. (В)

5 551.00 грн
70.00 грн / м2
Україна, Сумська обл., Шосткинський р-н, м. Середино-Буда, вул. Європейська, буд. 10
Перейти до аукціону на сайті
  • Інформація
  • Опис
  • Документи
Дата оголошення пропозиції:
14 січня 2022
Площа:
79.30 м2
Тип об’єкта:
Офіс
Тип аукціону:
Англійський аукціон
Статус аукціону:
Аукціон не відбувся
Тип угоди:
Оренда
Розмір мінімального кроку:
100.00 ₴
Розмір гарантійного внеску:
3 330.60 ₴
Початок прийому пропозицій:
14.01.2022 14:12:11
Завершення прийому пропозицій:
14.02.2022 20:00:00
Лот:
UA-PS-2022-01-14-000090-1
№ лоту (УТК):
UTK260721_24P
Лот виставляється на торги (раз):
5
Стислий опис майна:
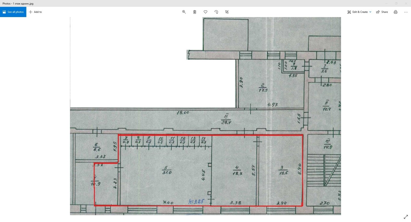
Пропонуються до оренди офісні приміщення 1-го поверху площею 79,30 кв.м. Знаходяться на першому поверсі 2-поверхової адміністративної будівлі в центральній частині міста. Добра візуалізація з дороги. Доступ вільний 24/7. Характеристики: Кількість поверхів – 2; Загальна площа – 345,1 кв.м.; Площа запропонована до оренди - 79,3 кв.м.; Водопостачання, опалення - відсутнє; Електропостачання - наявне; Дозволена потужність – 5 кВт; Земельна ділянка – 0,1878 га (договір оренди).
Адреса місцезнаходження майна:
Україна, Сумська обл., Шосткинський р-н, м. Середино-Буда, вул. Європейська, буд. 10
Схожі пропозиції
03.06.2025
Сумська обл., м. Буринь, вул. Першотравнева, 5. Оренда – офісні приміщення 2-го поверху площею 22,10 кв.м. (В)
502.33 грн
22.73 грн / м2
Офіс
Сумська обл., м. Буринь, вул. Першотравнева, 5. Оренда – офісні приміщення 2-го поверху площею 22,10 кв.м. (В)
Україна, Сумська обл., м. Буринь, вул. Першотравнева, 5
30.04.2024
Сумська обл., м. Суми, вул. Нижньосироватська, буд. 64. Оренда – офісні приміщення 2-го поверху площею 22,40 кв. м. (В)
1 253.95 грн
55.98 грн / м2
Офіс
Сумська обл., м. Суми, вул. Нижньосироватська, буд. 64. Оренда – офісні приміщення 2-го поверху площею 22,40 кв. м. (В)
Україна, Сумська обл., м. Суми, вул. Нижньосироватська, буд. 64
21.08.2024
Сумська обл., м. Суми, вул. Іллінська, буд. 2. Оренда – офісні приміщення 6-го поверху площею 415,40 кв. м. (В)
19 689.96 грн
47.40 грн / м2
Офіс
Сумська обл., м. Суми, вул. Іллінська, буд. 2. Оренда – офісні приміщення 6-го поверху площею 415,40 кв. м. (В)
Україна, Сумська обл., м. Суми, вул. Іллінська, буд. 2
21.03.2023
Сумська обл., м. Охтирка, вул. Чкалова, буд. 2. Оренда – офісна будівля площею 183,90 кв.м. (В)
1 701.08 грн
9.25 грн / м2
Офіс
Сумська обл., м. Охтирка, вул. Чкалова, буд. 2. Оренда – офісна будівля площею 183,90 кв.м. (В)
Україна, Сумська обл., м. Охтирка, вул. Чкалова, буд. 2
Переглянуті пропозиції
Рівненська обл., Сарненський р-н, смт. Степань, вул. Київська, 18. Оренда – приміщення 2-го поверху
1 603.01 грн
16.56 грн / м2
Приміщення
Рівненська обл., Сарненський р-н, смт. Степань, вул. Київська, 18. Оренда – приміщення 2-го поверху
Україна, Рівненська обл., Сарненський р-н, смт. Степань, вул. Київська, буд. 8
Сумська обл., м. Охтирка, вул. Перемоги, 17. Оренда – частина будівлі та склад
1 332.56 грн
11.37 грн / м2
Будівля
Сумська обл., м. Охтирка, вул. Перемоги, 17. Оренда – частина будівлі та склад
Україна, Сумська обл., м. Охтирка, вул. Перемоги, 17
13.05.2025
м. Київ, вул. Дегтярівська, 28А, літ. «А» (Шевченківський р-н). Оренда – приміщення на 4-му поверсі, площею – 496,20 кв.м (В)
74 608.63 грн
150.36 грн / м2
Приміщення
м. Київ, вул. Дегтярівська, 28А, літ. «А» (Шевченківський р-н). Оренда – приміщення на 4-му поверсі, площею – 496,20 кв.м (В)
Україна, м.Київ, Київ, 04119, м. Київ, вул. Дегтярівська, 28А, літ. «А» (Шевченківський р-н)