Дніпропетровська обл., м. Дніпро, вул. Пушкіна, 75А. Оренда – приміщення технічного поверху площею 66,80 кв.м (В)

6 710.06 грн
100.45 грн / м2
Україна, Дніпропетровська обл., м. Дніпро, вул. Пушкіна, 75А
Перейти до аукціону на сайті
  • Інформація
  • Опис
  • Документи
Дата оголошення пропозиції:
24 травня 2024
Площа:
66.80 м2
Тип об’єкта:
Приміщення
Тип аукціону:
Англійський аукціон
Статус аукціону:
Аукціон не відбувся
Тип угоди:
Оренда
Розмір мінімального кроку:
200.00 ₴
Розмір гарантійного внеску:
4 026.04 ₴
Початок прийому пропозицій:
24.05.2024 16:50:08
Завершення прийому пропозицій:
24.06.2024 20:00:00
Проведення аукціону:
25.06.2024 12:30:00
Лот:
CLE001-UA-20240524-12989
№ лоту (УТК):
UTK090224_08P
Лот виставляється на торги (раз):
4
Стислий опис майна:
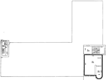
Пропонується до оренди приміщення технічного поверху площею 66,80 кв.м (прим. №3-1, №3-2 по техпаспорту). Розташування - будівля знаходиться в Чечелівському районі міста. Поруч знаходяться відділення банку, магазини, учбові заклади, зупинки громадського транспорту, високий автомобільний і пішохідний потоки. Стан приміщення потребує часткового ремонту. Вхід в приміщення спільний. Характеристики: Кількість поверхів – 5 Загальна площа об'єкту – 2267,5 кв.м Площа запропонована до оренди – 66,80 кв.м Електропостачання, водопостачання, теплопостачання Земельна ділянка – 0, 1095 га (договір оренди) Ресурсні податки – 4,88 грн за 1 кв.м
Адреса місцезнаходження майна:
Україна, Дніпропетровська обл., м. Дніпро, вул. Пушкіна, 75А
Схожі пропозиції
31.10.2023
Дніпропетровська обл., м. Покров, вул. Центральна, 50. Оренда – приміщення будівлі гаражів загальною площею 26,90 кв.м (В)
1 484.88 грн
55.20 грн / м2
Приміщення
Дніпропетровська обл., м. Покров, вул. Центральна, 50. Оренда – приміщення будівлі гаражів загальною площею 26,90 кв.м (В)
Україна, Дніпропетровська обл., м. Покров, вул. Центральна, 50
Дніпропетровська обл., м. Дніпро, вулиця Чернишевського, буд. 27. Оренда – приміщення 2-го поверху, площею 89,30 кв.м. (В)
2 779.02 грн
31.12 грн / м2
Приміщення
Дніпропетровська обл., м. Дніпро, вулиця Чернишевського, буд. 27. Оренда – приміщення 2-го поверху, площею 89,30 кв.м. (В)
Україна, Дніпропетровська обл., м. Дніпро, вулиця Чернишевського, буд. 27
21.11.2025
Дніпропетровська обл., м. Кривий Ріг, вул. Водоп'янова, 1а. Оренда – приміщення 3-го поверху, площею 812,30 кв.м. (В)
9 747.60 грн
12.00 грн / м2
Приміщення
Дніпропетровська обл., м. Кривий Ріг, вул. Водоп'янова, 1а. Оренда – приміщення 3-го поверху, площею 812,30 кв.м. (В)
Україна, Дніпропетровська обл., Кривий Ріг, вулиця Водоп'янова, 1
Дніпропетровська обл., м. Дніпро, вулиця Князя Ярослава Мудрого, 3. Оренда – приміщення 5-го поверху, площею 58,20 кв.м. (В)
3 610.15 грн
62.03 грн / м2
Приміщення
Дніпропетровська обл., м. Дніпро, вулиця Князя Ярослава Мудрого, 3. Оренда – приміщення 5-го поверху, площею 58,20 кв.м. (В)
Україна, Дніпропетровська обл., м. Дніпро, вулиця Князя Ярослава Мудрого, 3
Переглянуті пропозиції
25.06.2024
Дніпропетровська обл., м. Дніпро, вул. Панікахи, 27. Оренда – приміщення 4-го поверху площею 737,0 кв.м.(В)
47 477.54 грн
64.42 грн / м2
Приміщення
Дніпропетровська обл., м. Дніпро, вул. Панікахи, 27. Оренда – приміщення 4-го поверху площею 737,0 кв.м.(В)
Україна, Дніпропетровська обл., м. Дніпро, вул. Панікахи, 27
23.01.2024
Дніпропетровська обл., м. Кривий Ріг, вул. Водоп`янова, 1а;   Оренда – приміщення  1-го поверху, площею 282,5 кв.м. (В)
2 542.50 грн
9.00 грн / м2
Приміщення
Дніпропетровська обл., м. Кривий Ріг, вул. Водоп`янова, 1а; Оренда – приміщення 1-го поверху, площею 282,5 кв.м. (В)
Україна, Дніпропетровська обл., Кривий Ріг, вулиця Водоп'янова, 1а