Дніпропетровська обл., м. Кам’янське, просп. Свободи, 44. Оренда – приміщення 5-го поверху загальною площею 237,20 кв.м (В)

7 542.96 грн
31.80 грн / м2
Україна, Дніпропетровська обл., м. Кам’янське, просп. Свободи, 44
Перейти до аукціону на сайті
  • Інформація
  • Опис
  • Документи
Дата оголошення пропозиції:
07 червня 2024
Площа:
237.20 м2
Тип об’єкта:
Приміщення
Тип аукціону:
Англійський аукціон
Статус аукціону:
Аукціон не відбувся
Тип угоди:
Оренда
Розмір мінімального кроку:
500.00 ₴
Розмір гарантійного внеску:
4 525.78 ₴
Початок прийому пропозицій:
07.06.2024 16:04:33
Завершення прийому пропозицій:
08.07.2024 20:00:00
Проведення аукціону:
09.07.2024 11:20:00
Лот:
CLE001-UA-20240607-34487
№ лоту (УТК):
UTK230224_16P
Лот виставляється на торги (раз):
4
Стислий опис майна:
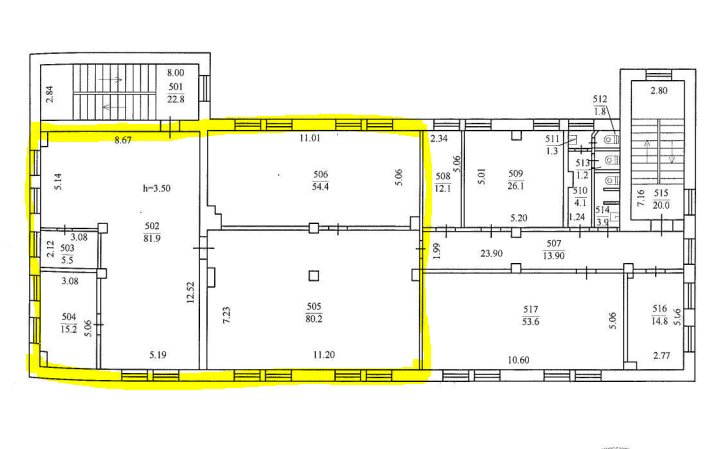
Пропонується до оренди приміщення 5-го поверху площею 237,20 кв.м (прим.№№502-506). Будівля в центрі міста. Поруч знаходяться об’єкти соціальної інфраструктури: відділення пошти та банку, клініка, магазини, ринок тощо. Стан приміщення відмінний, підходить для офісу, ідеальне місце під розвиток будь-якого бізнесу. Зручна транспортна розв’язка та інфраструктура. Характеристики: Кількість поверхів – 5 Загальна площа – 2506,00 кв.м Площа запропонована до оренди – 237,20 кв.м Електропостачання, водопостачання, теплопостачання Земельна ділянка – 0,2324 га (договір оренди) Ресурсні податки – 2,68 грн за 1 кв.м
Адреса місцезнаходження майна:
Україна, Дніпропетровська обл., м. Кам’янське, просп. Свободи, 44
Схожі пропозиції
26.11.2024
Дніпропетровська обл., м. Кривий Ріг, вул. Водоп`янова, 1а;   Оренда – приміщення 5-го поверху, площею 809,7 кв.м. (В)
7 287.30 грн
9.00 грн / м2
Приміщення
Дніпропетровська обл., м. Кривий Ріг, вул. Водоп`янова, 1а; Оренда – приміщення 5-го поверху, площею 809,7 кв.м. (В)
Україна, Дніпропетровська обл., Кривий Ріг, вулиця Водоп'янова, 1а
07.02.2025
Дніпропетровська обл., м.Кривий Ріг, вул. Головка Адмірала, 71;   Оренда–приміщення 3-го поверху, площею 777,3 кв.м. (В)
6 855.79 грн
8.82 грн / м2
Приміщення
Дніпропетровська обл., м.Кривий Ріг, вул. Головка Адмірала, 71; Оренда–приміщення 3-го поверху, площею 777,3 кв.м. (В)
Україна, Дніпропетровська обл., Кривий Ріг, вулиця Адмірала Головка, 71
10.09.2024
Дніпропетровська обл., м. Верхньодніпровськ, вул. Титова, 8; Оренда – приміщення 3-го поверху, площею 169,4 кв.м. (В)
725.03 грн
4.28 грн / м2
Приміщення
Дніпропетровська обл., м. Верхньодніпровськ, вул. Титова, 8; Оренда – приміщення 3-го поверху, площею 169,4 кв.м. (В)
Україна, Дніпропетровська обл., Верхньодніпровськ, вул. Титова, 8
18.10.2024
Дніпропетровська обл., м. Кривий Ріг, вул. Дніпропетровське шосе, 48;  Оренда – приміщення 4-го поверху, площею 640,0 кв.м. (В)
9 843.20 грн
15.38 грн / м2
Приміщення
Дніпропетровська обл., м. Кривий Ріг, вул. Дніпропетровське шосе, 48; Оренда – приміщення 4-го поверху, площею 640,0 кв.м. (В)
Україна, Дніпропетровська обл., Кривий Ріг, вулиця Дніпровське шосе, 48