Дніпропетровська обл., м. Дніпро, вул. Січових Стрільців, 10. Оренда – приміщення 1-го поверху площею 214,10 кв.м (В)

52 026.30 грн
243.00 грн / м2
Україна, Дніпропетровська обл., м. Дніпро, вул. Січових Стрільців, 10
Перейти до аукціону на сайті
  • Інформація
  • Опис
  • Документи
Дата оголошення пропозиції:
14 червня 2024
Площа:
214.10 м2
Тип об’єкта:
Приміщення
Тип аукціону:
Англійський аукціон
Статус аукціону:
Аукціон не відбувся
Тип угоди:
Оренда
Розмір мінімального кроку:
521.00 ₴
Розмір гарантійного внеску:
31 215.78 ₴
Початок прийому пропозицій:
14.06.2024 14:24:23
Завершення прийому пропозицій:
15.07.2024 20:00:00
Проведення аукціону:
16.07.2024 12:55:00
Лот:
CLE001-UA-20240614-14985
№ лоту (УТК):
UTK140624_09P
Лот виставляється на торги (раз):
1
Стислий опис майна:
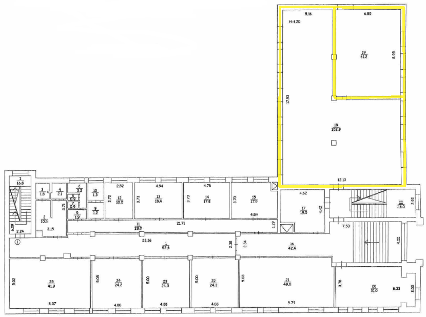
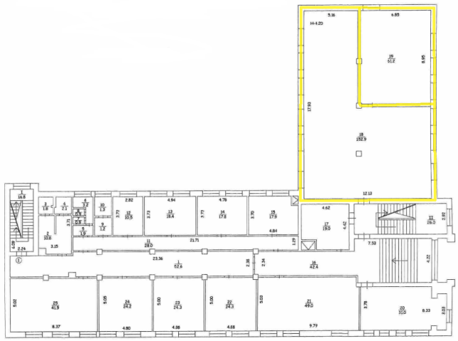
Пропонується до оренди приміщення 1-го поверху площею 214,10 кв.м. Розташування - будівля знаходиться в центральному районі міста. Поруч знаходяться відділення банку, високий автомобільний і пішохідний потоки. Стан приміщення задовільний, підходить для офісу, для дитячої студії, школи розвитку. Ідеальне місце під розвиток будь-якого бізнесу. Можливість передачі приміщень в суборенду. Характеристики: Кількість поверхів – 3 Загальна площа – 2761,80 кв.м Площа запропонована до оренди –214,10 кв.м Електропостачання, водопостачання, теплопостачання, охорона та обслуговування пожежної сигналізації, вивіз сміття, прибирання території; Земельна ділянка – 0, 1636 га (договір оренди) Ресурсні податки – 5,86 грн за 1 кв.м
Адреса місцезнаходження майна:
Україна, Дніпропетровська обл., м. Дніпро, вул. Січових Стрільців, 10
Схожі пропозиції
09.07.2024
ДОВГОСТРОКОВА ОРЕНДА! Дніпропетровська обл., м. Кам’янське, просп. Героїв АТО, 1. Оренда – приміщення 5-го поверху загальною площею 720,40 кв.м (В)
21 612.00 грн
30.00 грн / м2
Приміщення
ДОВГОСТРОКОВА ОРЕНДА! Дніпропетровська обл., м. Кам’янське, просп. Героїв АТО, 1. Оренда – приміщення 5-го поверху загальною площею 720,40 кв.м (В)
Україна, Дніпропетровська обл., м. Кам’янське, просп. Героїв АТО, 1
14.12.2023
Дніпропетровська обл., м. Дніпро, вул. Панікахи, 27;   Оренда – приміщення 1-го поверху площею 92,7 кв.м.(В)
8 520.06 грн
91.91 грн / м2
Приміщення
Дніпропетровська обл., м. Дніпро, вул. Панікахи, 27; Оренда – приміщення 1-го поверху площею 92,7 кв.м.(В)
Україна, Дніпропетровська обл., Дніпро, вулиця Панікахи, 27
04.06.2025
Дніпропетровська обл., м. Дніпро, вул. Князя Ярослава Мудрого, 3. Оренда – приміщення 3-го поверху площею 211,90 кв.м.(В)
29 426.55 грн
180.11 грн / м2
Приміщення
Дніпропетровська обл., м. Дніпро, вул. Князя Ярослава Мудрого, 3. Оренда – приміщення 3-го поверху площею 211,90 кв.м.(В)
Україна, Дніпропетровська обл., Дніпро, 49000, Дніпропетровська обл., м. Дніпро, вул. Князя Ярослава Мудрого, 3
28.06.2024
Дніпропетровська обл., м. П’ятихатки, вул. Шатрова, 2. Оренда –  приміщення 1-го поверху загальною площею 78,60 кв.м  (В)
5 131.01 грн
65.28 грн / м2
Приміщення
Дніпропетровська обл., м. П’ятихатки, вул. Шатрова, 2. Оренда – приміщення 1-го поверху загальною площею 78,60 кв.м (В)
Україна, Дніпропетровська обл., м. П’ятихатки, вул. Шатрова, 2