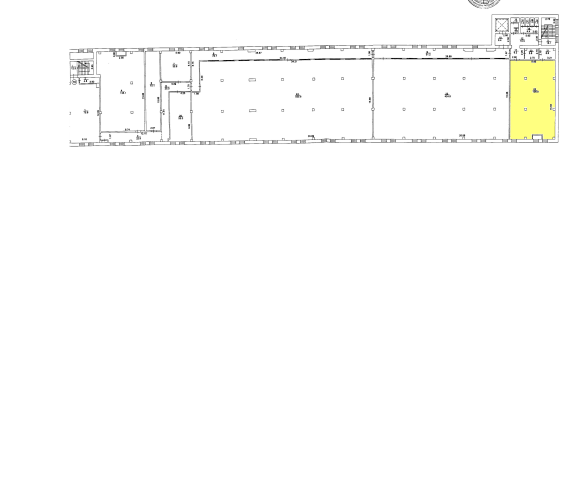
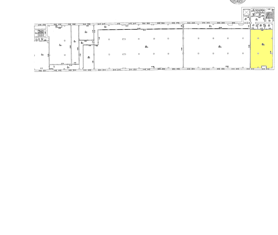
Харківська обл., м. Харків, вул. Нетіченська набережна, 8. Оренда – приміщення дев'ятого поверху площею 136,9 кв.м. (В)

7 392.60 грн
54.00 грн / м2
Україна, Харківська обл., м. Харків, вул. Нетіченська набережна, 8
Перейти до аукціону на сайті
  • Інформація
  • Опис
  • Документи
Дата оголошення пропозиції:
18 січня 2022
Площа:
136.90 м2
Тип об’єкта:
Приміщення
Тип аукціону:
Англійський аукціон
Статус аукціону:
Аукціон не відбувся
Тип угоди:
Оренда
Розмір мінімального кроку:
400.00 ₴
Розмір гарантійного внеску:
4 435.56 ₴
Початок прийому пропозицій:
18.01.2022 11:05:27
Завершення прийому пропозицій:
16.02.2022 20:00:00
Лот:
UA-PS-2022-01-18-000033-1
№ лоту (УТК):
UTK081121_25P
Лот виставляється на торги (раз):
3
Стислий опис майна:
Пропонується до оренди приміщення дев'ятого поверху площею 136,9 кв.м розташоване за адресою : м. Харків, вул. Нетіченська набережна, 8, 9-й поверх. Будівля знаходиться неподалік від центру міста, 5 хвилин до зупинки громадського транспорту та 15 хвилин до метро. Характеристики: Кількість поверхів – 9; Кількість приміщень, пропонованих до оренди – 1 В приміщеннях присутня електроенергія , на поверсі є водопостачання, у будівлі є охорона. Земельна ділянка -1,745 га
Адреса місцезнаходження майна:
Україна, Харківська обл., м. Харків, вул. Нетіченська набережна, 8
Схожі пропозиції
21.08.2024
Харківська обл., м. Лозова, вул. Михайла Грушевського, 7. Оренда – приміщення 3-го поверху, площею 1243,7 кв.м. (В)
6 803.04 грн
5.47 грн / м2
Приміщення
Харківська обл., м. Лозова, вул. Михайла Грушевського, 7. Оренда – приміщення 3-го поверху, площею 1243,7 кв.м. (В)
Україна, Харківська обл., м. Лозова, вул. Михайла Грушевського, 7
15.07.2025
Харківська обл., Харківський р-н, м. Мерефа, вул. Озерянська, 38. Оренда – приміщення будівлі площею 68,70 кв.м. (В)
7 625.70 грн
111.00 грн / м2
Приміщення
Харківська обл., Харківський р-н, м. Мерефа, вул. Озерянська, 38. Оренда – приміщення будівлі площею 68,70 кв.м. (В)
Україна, Харківська обл., Харківський р-н, м. Мерефа, вул. Озерянська, 38
12.07.2024
м. Харків, пр-т. Г. Сталінграду, 169. Оренда – приміщення 2-го поверху площею 5,5 кв.м. (В)
522.50 грн
95.00 грн / м2
Приміщення
м. Харків, пр-т. Г. Сталінграду, 169. Оренда – приміщення 2-го поверху площею 5,5 кв.м. (В)
Україна, Харківська обл., м. Харків, пр-т. Г. Сталінграду, 169
05.06.2024
м. Харків, пр-т. Г. Сталінграду, 169. Оренда – приміщення 2-го поверху площею 5,5 кв.м. (В)
522.50 грн
95.00 грн / м2
Приміщення
м. Харків, пр-т. Г. Сталінграду, 169. Оренда – приміщення 2-го поверху площею 5,5 кв.м. (В)
Україна, Харківська обл., м. Харків, пр-т. Г. Сталінграду, 169