Рівненська обл., м. Рівне, вул. Дубенська, 44б. Оренда – приміщення 1-го поверху одноповерхової будівлі площею 65,1 кв.м. (В)

6 238.53 грн
95.83 грн / м2
Україна, Рівненська обл., м. Рівне, вул. Дубенська, 44б
Перейти до аукціону на сайті
  • Інформація
  • Опис
  • Документи
Дата оголошення пропозиції:
01 липня 2024
Площа:
65.10 м2
Тип об’єкта:
Приміщення
Тип аукціону:
Англійський аукціон
Статус аукціону:
Аукціон не відбувся
Тип угоди:
Оренда
Розмір мінімального кроку:
500.00 ₴
Розмір гарантійного внеску:
3 743.12 ₴
Початок прийому пропозицій:
01.07.2024 13:26:43
Завершення прийому пропозицій:
29.07.2024 20:00:00
Проведення аукціону:
30.07.2024 11:55:00
Лот:
CLE001-UA-20240701-36870
№ лоту (УТК):
UTK190523_12P
Лот виставляється на торги (раз):
10
Стислий опис майна:
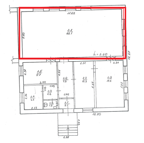
Пропонується до оренди приміщення 1-го поверху одноповерхової будівлі площею 65,1 кв.м. Будівля знаходяться на околиці міста. Розвинена інфраструктура, досить високі автомобільний та пішохідний потоки. Приміщення потребують реконструкції електромережі . Окремий вхід відсутній. Характеристики: Кількість поверхів – 1. Загальна площа – 126,2 кв.м. Площа, запропонована до оренди – загальною площею 65,1 кв.м. Опалення – відсутнє. Земельна ділянка - площа 0, 0224 га. (договір оренди).
Адреса місцезнаходження майна:
Україна, Рівненська обл., м. Рівне, вул. Дубенська, 44б
Схожі пропозиції
25.08.2023
Рівненська обл., Рівненський р-н, с. Пустомити, вул. Радянська, 41. Оренда – виробничі приміщення площею 21,80 кв.м. (В)
261.60 грн
12.00 грн / м2
Приміщення
Рівненська обл., Рівненський р-н, с. Пустомити, вул. Радянська, 41. Оренда – виробничі приміщення площею 21,80 кв.м. (В)
Україна, Рівненська обл., Рівненський р-н, с. Пустомити, вул. Радянська, 41
Рівненська обл., Вараський р-н. смт. Володимирець  вул. Поштова, 23. Оренда – приміщення 1-го поверху площею 52,8 кв.м. (В)
1 172.16 грн
22.20 грн / м2
Приміщення
Рівненська обл., Вараський р-н. смт. Володимирець вул. Поштова, 23. Оренда – приміщення 1-го поверху площею 52,8 кв.м. (В)
Україна, Рівненська обл., Вараський р-н. смт. Володимирець , вул. Поштова ,23
Рівненська обл., смт. Рокитне, вул. Незалежності, 9. Оренда приміщень 3-го поверху
1 304.78 грн
18.72 грн / м2
Приміщення
Рівненська обл., смт. Рокитне, вул. Незалежності, 9. Оренда приміщень 3-го поверху
Україна, Рівненська обл., смт. Рокитне, вул. Незалежності, 9
03.04.2024
Рівненська обл., м. Дубровиця, вул. Шевченка, 53. Оренда – приміщення 2-го та 3-го поверху площею 163,7 кв.м. (В)
649.89 грн
3.97 грн / м2
Приміщення
Рівненська обл., м. Дубровиця, вул. Шевченка, 53. Оренда – приміщення 2-го та 3-го поверху площею 163,7 кв.м. (В)
Україна, Рівненська обл., м. Дубровиця, вул. Шевченка, 53
Переглянуті пропозиції
21.12.2022
Чернігівська обл., смт. Сосниця, вул. Б. Хмельницького, 16. Оренда – підвальне приміщення площею 31,35 кв.м. (В)
404.42 грн
12.90 грн / м2
Приміщення
Чернігівська обл., смт. Сосниця, вул. Б. Хмельницького, 16. Оренда – підвальне приміщення площею 31,35 кв.м. (В)
Україна, Чернігівська обл., смт. Сосниця, вул. Б. Хмельницького, 16
10.09.2024
Дніпропетровська обл., м.Кривий Ріг, вул. Головка Адмірала,71; Оренда–приміщення 2-го поверху, площею 306,9 кв.м. (В)
2 706.86 грн
8.82 грн / м2
Приміщення
Дніпропетровська обл., м.Кривий Ріг, вул. Головка Адмірала,71; Оренда–приміщення 2-го поверху, площею 306,9 кв.м. (В)
Україна, Дніпропетровська обл., Кривий Ріг, вулиця Адмірала Головка, 71
25.01.2024
Харківська обл., Лозівський р-н, м. Первомайський, 3-й мікрорайон, буд.1-А. Оренда – приміщення на 1-му поверсі загальною площею 221,70 кв.м. (В)
15 563.30 грн
70.20 грн / м2
Приміщення
Харківська обл., Лозівський р-н, м. Первомайський, 3-й мікрорайон, буд.1-А. Оренда – приміщення на 1-му поверсі загальною площею 221,70 кв.м. (В)
Україна, Харківська обл., Лозівський р-н, м. Первомайський, 3-й мікрорайон, буд.1-А
Івано-Франківська обл., м. Івано-Франківськ, вул. В.Симоненка, 1. Оренда – складське приміщення цокольного поверху, площею 56,6 м.кв. (В)
1 616.50 грн
28.56 грн / м2
Приміщення
Івано-Франківська обл., м. Івано-Франківськ, вул. В.Симоненка, 1. Оренда – складське приміщення цокольного поверху, площею 56,6 м.кв. (В)
Україна, Івано-Франківська обл., м. Івано-Франківськ, вул. В.Симоненка, 1