Волинська обл., Володимир-Волинський р-н, м.Нововолинськ, вул.Митрополита Шептицького, 6; Оренда – група приміщень 3-го поверху площею 79,20 кв.м. (В)

4 937.33 грн
62.34 грн / м2
Україна, Волинська обл., Нововолинськ, вул. Митрополита Шептицького, 6
Перейти до аукціону на сайті
  • Інформація
  • Опис
  • Документи
Дата оголошення пропозиції:
09 серпня 2024
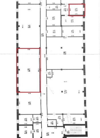
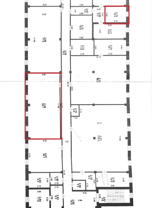
Площа:
79.20 м2
Тип об’єкта:
Приміщення
Тип аукціону:
Англійський аукціон
Статус аукціону:
Аукціон не відбувся
Тип угоди:
Оренда
Розмір мінімального кроку:
150.00 ₴
Розмір гарантійного внеску:
2 962.40 ₴
Початок прийому пропозицій:
09.08.2024 10:13:22
Завершення прийому пропозицій:
10.09.2024 20:00:00
Проведення аукціону:
11.09.2024 12:30:00
Лот:
CLE001-UA-20240809-64616
№ лоту (УТК):
UTK210624_07T
Лот виставляється на торги (раз):
2
Стислий опис майна:
Пропонується до оренди група приміщень 3-го поверху площею 79,20 кв.м., що може бути використане під навчальний клас, майстерню, офіс, тощо. Вхід – з внутрішньої сторони будівлі. Будівля знаходиться в центральній частині міста, розвинена інфраструктура, середні пішохідні та автомобільні потоки. Поряд – Укрпошта. Зручна транспортна розв’язка. Характеристики • кількість поверхів – 5; • загальна площа – 3741,60 кв.м; • площа запропонована до оренди – 79,20 кв.м; • Опаленя, водопостачання, водовідведення – централізоване; • земельна ділянка – 0,3700 га (податок).
Адреса місцезнаходження майна:
Україна, Волинська обл., Нововолинськ, вул. Митрополита Шептицького, 6
Схожі пропозиції
02.08.2023
Волинська обл., Володимир-Волинський р-н, с. Стара Лішня, вул. Миру, 39. Оренда – група приміщень 1-го поверху площею 19,30 кв.м. (В)
936.05 грн
48.50 грн / м2
Приміщення
Волинська обл., Володимир-Волинський р-н, с. Стара Лішня, вул. Миру, 39. Оренда – група приміщень 1-го поверху площею 19,30 кв.м. (В)
Україна, Волинська обл., Володимир-Волинський р-н, с. Стара Лішня, вул. Миру, 39
27.07.2023
Волинська обл., м. Луцьк, вул. Гордіюк, 8. Оренда – приміщення 1-го поверху площею 196,30 кв.м. (В)
11 705.37 грн
59.63 грн / м2
Приміщення
Волинська обл., м. Луцьк, вул. Гордіюк, 8. Оренда – приміщення 1-го поверху площею 196,30 кв.м. (В)
Україна, Волинська обл., м. Луцьк, вул. Гордіюк, 8
29.11.2023
Волинська обл., м. Ківерці, вул. Шевченка, 8. Оренда – приміщення 2-го поверху адмінбудівлі площею 20,8 кв.м (В)
1 607.42 грн
77.28 грн / м2
Приміщення
Волинська обл., м. Ківерці, вул. Шевченка, 8. Оренда – приміщення 2-го поверху адмінбудівлі площею 20,8 кв.м (В)
Україна, Волинська обл., м. Ківерці, вул. Шевченка, 8
03.04.2024
Волинська обл., Камінь-Каширський р-н, смт. Любешів, вул. Незалежності, 76. Оренда – приміщення 2-го поверху площею 10,50 кв.м. (В)
500.01 грн
47.62 грн / м2
Приміщення
Волинська обл., Камінь-Каширський р-н, смт. Любешів, вул. Незалежності, 76. Оренда – приміщення 2-го поверху площею 10,50 кв.м. (В)
Україна, Волинська обл., смт. Любешів, вул. Незалежності, 76
Переглянуті пропозиції
Рівненська обл., м. Здолбунів, вул. Б. Хмельницького, 7.Оренда – приміщення підвалу, 2-го поверху та надвірної будівлі площею 661,4 кв.м.(В)
7 315.08 грн
11.06 грн / м2
Приміщення
Рівненська обл., м. Здолбунів, вул. Б. Хмельницького, 7.Оренда – приміщення підвалу, 2-го поверху та надвірної будівлі площею 661,4 кв.м.(В)
Україна, Рівненська обл., Здолбунів, вул. Б. Хмельницького, 7
07.11.2024
м. Київ, бульвар Бучми Амвросія, 5;   Оренда – приміщення 3-го та 4-го поверхів технічної будівлі АТС-550 (літ. «Б»), площею 1006,83 кв.м. (В)
92 628.36 грн
92.00 грн / м2
Приміщення
м. Київ, бульвар Бучми Амвросія, 5; Оренда – приміщення 3-го та 4-го поверхів технічної будівлі АТС-550 (літ. «Б»), площею 1006,83 кв.м. (В)
Україна, м.Київ, м. Київ, бульвар Амвросія Бучми, 5 літ.Б
09.12.2022
Сумська обл., м. Суми, пр-т. Курський, буд. 37. Оренда – частина підвального приміщення площею 341,90 кв.м. (В)
15 795.78 грн
46.20 грн / м2
Приміщення
Сумська обл., м. Суми, пр-т. Курський, буд. 37. Оренда – частина підвального приміщення площею 341,90 кв.м. (В)
Україна, Сумська обл., м. Суми, пр-т. Курський, буд. 37
15.07.2025
Харківська обл., м. Первомайський, мікрорайон 3, буд.1-А. Оренда – приміщення першого поверху, площею 145,2 кв.м. (В)
1 742.40 грн
12.00 грн / м2
Приміщення
Харківська обл., м. Первомайський, мікрорайон 3, буд.1-А. Оренда – приміщення першого поверху, площею 145,2 кв.м. (В)
Україна, Харківська обл., м. Первомайський, мікрорайон 3, буд.1-А