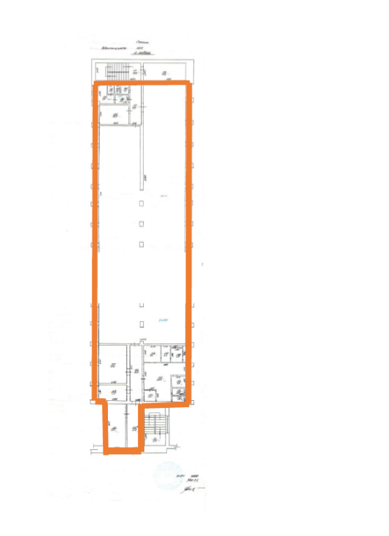
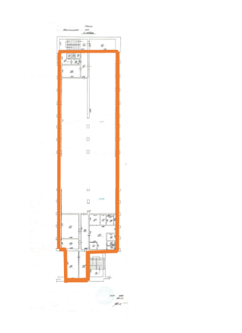
м. Сокаль, вул.Шептицького,105. Оренда – приміщення 3-го поверху площею 430,50 кв. м (В)

13 612.41 грн
31.62 грн / м2
Україна, Львівська обл., м. Сокаль, вул.Шептицького,105
Перейти до аукціону на сайті
  • Інформація
  • Опис
  • Документи
Дата оголошення пропозиції:
09 серпня 2024
Площа:
430.50 м2
Тип об’єкта:
Приміщення
Тип аукціону:
Англійський аукціон
Статус аукціону:
Аукціон не відбувся
Тип угоди:
Оренда
Розмір мінімального кроку:
500.00 ₴
Розмір гарантійного внеску:
8 167.45 ₴
Початок прийому пропозицій:
09.08.2024 19:41:53
Завершення прийому пропозицій:
10.09.2024 20:00:00
Проведення аукціону:
11.09.2024 11:20:00
Лот:
CLE001-UA-20240809-93815
№ лоту (УТК):
UTK050724_07P
Лот виставляється на торги (раз):
2
Стислий опис майна:
Пропонується до оренди приміщення 3-го поверху площею 430,50 кв. м. Будівля розташована в центрі міста, зручна транспортна розв’язка, високі пішохідні та автомобільні потоки. Характеристики Кількість поверхів – 3 Електропостачання Водопостачання та водовідведення
Адреса місцезнаходження майна:
Україна, Львівська обл., м. Сокаль, вул.Шептицького,105
Схожі пропозиції
07.09.2022
Львівська обл., м. Львів, вул. Виговського, 29а. Оренда – приміщення 3-го поверху площею 508,20 кв.м. (В)
54 916.09 грн
108.06 грн / м2
Приміщення
Львівська обл., м. Львів, вул. Виговського, 29а. Оренда – приміщення 3-го поверху площею 508,20 кв.м. (В)
Україна, Львівська обл., м. Львів, вул. Виговського, 29а
03.04.2024
Львівська обл., Стрийський р-н, м. Жидачів, пл. Свободи, 8. Оренда – приміщення 2-го поверху площею 224,40 кв.м. (В)
3 554.50 грн
15.84 грн / м2
Приміщення
Львівська обл., Стрийський р-н, м. Жидачів, пл. Свободи, 8. Оренда – приміщення 2-го поверху площею 224,40 кв.м. (В)
Україна, Львівська обл., Стрийський р-н, м. Жидачів, пл. Свободи, 8
Львівська обл., с. Куликів, вул. Шевченка, 2. Оренда – приміщення 2-го поверху площею 28,50 кв. м. (В)
500.18 грн
17.55 грн / м2
Приміщення
Львівська обл., с. Куликів, вул. Шевченка, 2. Оренда – приміщення 2-го поверху площею 28,50 кв. м. (В)
Україна, Львівська обл., с. Куликів, вул. Шевченка, 2
Львівська обл., смт. Івано-Франкове, вул. Львівська, 32. Оренда –  приміщення 3-го поверху площею 119,50 кв. м. (В)
1 376.64 грн
11.52 грн / м2
Приміщення
Львівська обл., смт. Івано-Франкове, вул. Львівська, 32. Оренда – приміщення 3-го поверху площею 119,50 кв. м. (В)
Україна, Львівська обл., смт. Івано-Франкове, вул. Львівська, 32