м. Київ, вул. Героїв Севастополя, 39/8, літ.«В»; Оренда – приміщення 1-го поверху блоку зовнішніх споруд, площею 80,60 кв.м. (В)

15 771.00 грн
195.67 грн / м2
Україна, м.Київ, Київ, вул. Героїв Севастополя, 39/8(В)
Перейти до аукціону на сайті
  • Інформація
  • Опис
  • Документи
Дата оголошення пропозиції:
12 серпня 2024
Площа:
80.60 м2
Тип об’єкта:
Приміщення
Тип аукціону:
Англійський аукціон
Статус аукціону:
Аукціон не відбувся
Тип угоди:
Оренда
Розмір мінімального кроку:
500.00 ₴
Розмір гарантійного внеску:
9 462.60 ₴
Початок прийому пропозицій:
12.08.2024 15:36:26
Завершення прийому пропозицій:
12.09.2024 20:00:00
Проведення аукціону:
13.09.2024 11:15:00
Лот:
CLE001-UA-20240812-40922
№ лоту (УТК):
UTK010323_1T
Лот виставляється на торги (раз):
10
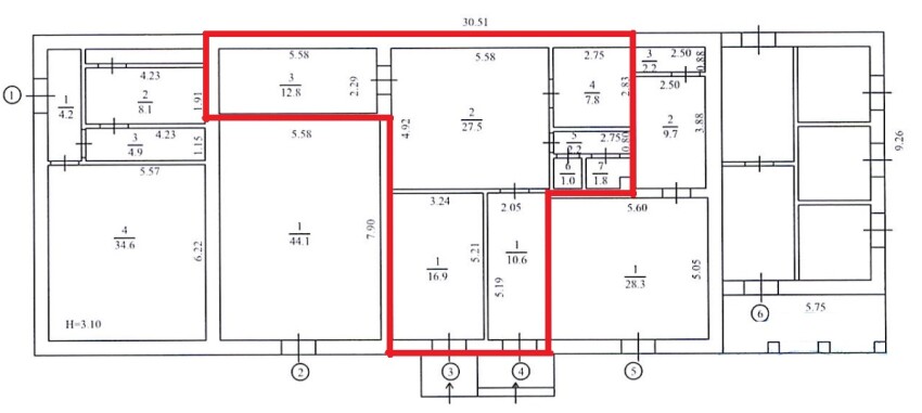
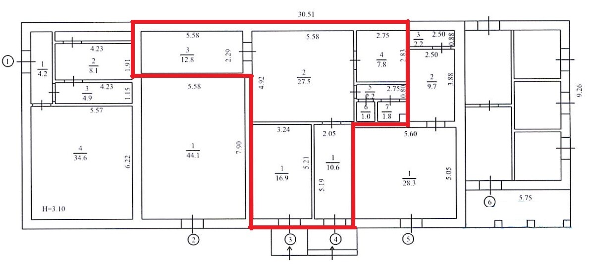
Стислий опис майна:
Пропонується до оренди приміщення 1-го поверху блоку зовнішніх споруд, площею 80,60 кв.м.. Розташування будівлі у Солом'янському районі міста Києва, місцевості Відрадний та Новокараваєві дачі. Поруч розвинена інфраструктура, зупинки маршрутного транспорту, трамваю, магазини, кафе, аптеки, середній автомобільний і пішохідний потоки. Вхід з вулиці Героїв Севастополя та з прохідної. Доступ 24/7. Характеристики: - загальна площа будівлі – 216,40 кв.м.; - кількість поверхів – 1; - загальна площа земельної ділянки – 0,9713 га; - опалення – відсутнє; - сан. вузол, каналізація, водопостачання – присутне;
Адреса місцезнаходження майна:
Україна, м.Київ, Київ, вул. Героїв Севастополя, 39/8(В)
Схожі пропозиції
13.09.2024
м. Київ, вул. Василя Макуха (Івана Шевцова), 5;   Оренда – приміщення 1-го поверху будівлі, площею 401,5 кв.м. (В)
83 720.78 грн
208.52 грн / м2
Приміщення
м. Київ, вул. Василя Макуха (Івана Шевцова), 5; Оренда – приміщення 1-го поверху будівлі, площею 401,5 кв.м. (В)
Україна, м.Київ, м. Київ, вулиця Василя Макуха (Івана Шевцова), 5
м. Київ, вул. Джона Маккейна, №40 Оренда – приміщення 1-го поверху, площею 99,10 кв.м. (П)
61 614.43 грн
621.74 грн / м2
Приміщення
м. Київ, вул. Джона Маккейна, №40 Оренда – приміщення 1-го поверху, площею 99,10 кв.м. (П)
Україна, м.Київ, Київ, вул. Джона Маккейна, №40
07.05.2025
Довгострокова оренда! м. Київ, бульвар Амвросія Бучми, 5 (Дніпровський р-н), літ. «А». Оренда – частина нежилої будівлі літ. «А», приміщення підвалу, 1,2,3 та 5 поверхів площею 1512,80 кв.м. (В)
27.07.2023
м. Київ, вул. Героїв полку «Азов» (колишня Малиновського Маршала, 19-А)   Оренда – приміщення 1-го поверху площею 55,8 кв.м. (В)
19 911.67 грн
356.84 грн / м2
Приміщення
м. Київ, вул. Героїв полку «Азов» (колишня Малиновського Маршала, 19-А) Оренда – приміщення 1-го поверху площею 55,8 кв.м. (В)
Україна, м.Київ, Київ, вул.Героїв полку«Азов» (М.Малиновського19-А)