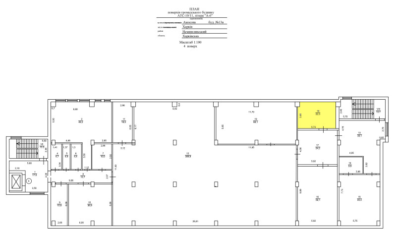
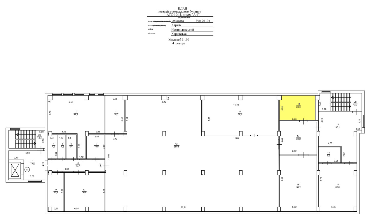
м.Харків, вул. Амосова,13-В ; Оренда – приміщення четвертого поверху площею 22,3 кв.м. (П)

1 716.88 грн
76.99 грн / м2
Україна, Харківська обл., Харків, вул. Амосова,13-В
Перейти до аукціону на сайті
  • Інформація
  • Опис
  • Документи
Дата оголошення пропозиції:
16 серпня 2024
Площа:
22.30 м2
Тип об’єкта:
Приміщення
Тип аукціону:
Англійський аукціон
Статус аукціону:
Аукціон не відбувся
Тип угоди:
Оренда
Розмір мінімального кроку:
100.00 ₴
Розмір гарантійного внеску:
1 030.13 ₴
Початок прийому пропозицій:
16.08.2024 12:55:07
Завершення прийому пропозицій:
16.09.2024 20:00:00
Проведення аукціону:
17.09.2024 11:00:00
Лот:
CLE001-UA-20240816-86575
№ лоту (УТК):
UTK160824_08T
Лот виставляється на торги (раз):
1
Стислий опис майна:
Пропонується до оренди приміщення четветого поверху площею 22,3 кв.м. Будівля в спальному районі міста Харкова. 10 хв до зупинки транспорту. Характеристики: Кількість поверхів – 5; Загальна площа – 4838,00 кв.м_ Площа запропонована до оренди – 22,3 кв.м. Дозволена потужність – 2 кВт Теплопостачання-централізоване Земельна ділянка – 0,4825 га
Адреса місцезнаходження майна:
Україна, Харківська обл., Харків, вул. Амосова,13-В
Схожі пропозиції
03.06.2025
Харківська обл., Харківський р-н, м. Мерефа, вул. Дніпровська, 226. Оренда – приміщення 2-го поверху будівлі «Дизельна», площею 85,80 кв.м. (В)
1 115.40 грн
13.00 грн / м2
Приміщення
Харківська обл., Харківський р-н, м. Мерефа, вул. Дніпровська, 226. Оренда – приміщення 2-го поверху будівлі «Дизельна», площею 85,80 кв.м. (В)
Україна, Харківська обл., Харківський р-н, м. Мерефа, вул. Дніпровська, 226
Харківська обл., м. Харків, вул. Старошишківська, 5а. Оренда – приміщення 3-го поверху площею 540,7 кв.м. (В)
4 076.88 грн
7.54 грн / м2
Приміщення
Харківська обл., м. Харків, вул. Старошишківська, 5а. Оренда – приміщення 3-го поверху площею 540,7 кв.м. (В)
Україна, Харківська обл., м. Харків, вул. Старошишківська, буд. 5а
13.09.2023
Харківська обл., м. Лозова, вул. Михайла Грушевського, 7. Оренда – приміщення на 1-му поверсі площею 265,3 кв.м. (В)
8 468.38 грн
31.92 грн / м2
Приміщення
Харківська обл., м. Лозова, вул. Михайла Грушевського, 7. Оренда – приміщення на 1-му поверсі площею 265,3 кв.м. (В)
Україна, Харківська обл., м. Лозова, вул. Михайла Грушевського, 7
23.07.2025
м. Харків, вул.Конторська,14. Оренда – приміщення першого поверху площею 17,0 кв.м (В)
1 344.53 грн
79.09 грн / м2
Приміщення
м. Харків, вул.Конторська,14. Оренда – приміщення першого поверху площею 17,0 кв.м (В)
Україна, Харківська обл., Харків, вулиця Конторська, 14