Полтавська обл., Миргородський район, смт. Комишня, вул. Миру, 101. Оренда – приміщення загальною площею 552,90 кв.м. (В)

21 822.96 грн
39.47 грн / м2
Україна, Полтавська обл., Миргородський район, смт. Комишня, вул. Миру, 101
Перейти до аукціону на сайті
  • Інформація
  • Опис
  • Документи
Дата оголошення пропозиції:
23 серпня 2024
Площа:
552.90 м2
Тип об’єкта:
Приміщення
Тип аукціону:
Англійський аукціон
Статус аукціону:
Аукціон не відбувся
Тип угоди:
Оренда
Розмір мінімального кроку:
1 000.00 ₴
Розмір гарантійного внеску:
13 093.78 ₴
Початок прийому пропозицій:
23.08.2024 12:43:26
Завершення прийому пропозицій:
23.09.2024 20:00:00
Проведення аукціону:
24.09.2024 11:55:00
Лот:
CLE001-UA-20240823-53461
№ лоту (УТК):
UTK230824_08P
Лот виставляється на торги (раз):
1
Стислий опис майна:
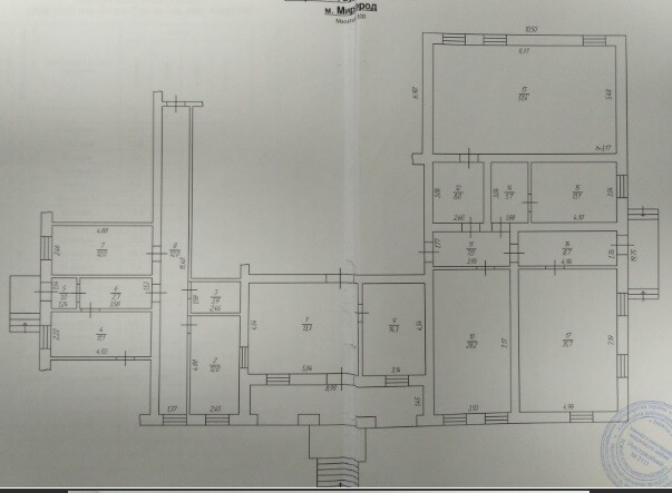
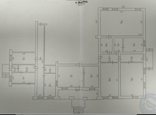
Пропонується до оренди приміщення загальною площею 552,9кв.м., що розташовані в центрі смт. Комишня Характеристики Складові об'єкту: будівля РВ 238,7 м.кв дизельна площею 56,0 м.кв склади площею 43,2 м.кв, 15,6 м.кв гаражі площею: 20,2 м.кв ,20,6 м.кв., 62,7 м.кв. та гараж на 2 автомобілі площею 95,9 м.кв Характеристики Дозволена потужність – до 3 кВт; земельна ділянка – 0,5146 га (договір оренди ЗД)
Адреса місцезнаходження майна:
Україна, Полтавська обл., Миргородський район, смт. Комишня, вул. Миру, 101
Схожі пропозиції
26.11.2025
Полтавська обл., Кременчуцький р-н, с. Омельник, вул. Центральна, буд. 51б. Оренда – приміщення площею 66,00 кв.м. (В)
792.00 грн
12.00 грн / м2
Приміщення
Полтавська обл., Кременчуцький р-н, с. Омельник, вул. Центральна, буд. 51б. Оренда – приміщення площею 66,00 кв.м. (В)
Україна, Полтавська обл., Кременчуцький р-н, с. Омельник, вул. Центральна, буд. 51б
07.12.2022
Полтавська обл., Кременчуцький р-н, с. Омельник, вул. Центральна, буд. 51б. Оренда – приміщення площею 66,00 кв.м. (В)
396.00 грн
6.00 грн / м2
Приміщення
Полтавська обл., Кременчуцький р-н, с. Омельник, вул. Центральна, буд. 51б. Оренда – приміщення площею 66,00 кв.м. (В)
Україна, Полтавська обл., Кременчуцький р-н, с. Омельник, вул. Центральна, буд. 51б
26.11.2025
Полтавська обл., Кременчуцький р-н, м. Кременчук, вулиця В. Пугачова, 12. Оренда – приміщення площею 666,40 кв.м. (В)
7 996.80 грн
12.00 грн / м2
Приміщення
Полтавська обл., Кременчуцький р-н, м. Кременчук, вулиця В. Пугачова, 12. Оренда – приміщення площею 666,40 кв.м. (В)
Україна, Полтавська обл., Кременчуцький р-н, м. Кременчук, вул. В. Пугачова, 12
28.02.2024
Полтавська обл., м. Кременчук, вулиця Олега Кошового, 9, кв.26;  Оренда – приміщення площею 47,00 кв.м. (В)
2 981.21 грн
63.43 грн / м2
Приміщення
Полтавська обл., м. Кременчук, вулиця Олега Кошового, 9, кв.26; Оренда – приміщення площею 47,00 кв.м. (В)
Україна, Полтавська обл., Кременчук, вул.Олега Кошового, 9,кв,26
Переглянуті пропозиції
Кіровоградська обл., смт Вільшанка, вул. Миру, 44. Оренда – приміщення 2-го поверху площею 45,05 кв.м. (В)
1 475.84 грн
32.80 грн / м2
Приміщення
Кіровоградська обл., смт Вільшанка, вул. Миру, 44. Оренда – приміщення 2-го поверху площею 45,05 кв.м. (В)
Україна, Кіровоградська обл., смт Вільшанка, вул. Миру, 44