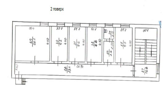
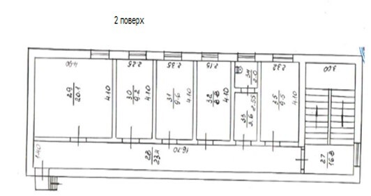
Львівська обл., м. Броди, вул. Зелена, 19. Оренда – частини будівлі площею 492,60 кв. м. (В)

7 901.30 грн
16.04 грн / м2
Україна, Львівська обл., м. Броди, вул. Зелена, 19
Перейти до аукціону на сайті
  • Інформація
  • Опис
  • Документи
Дата оголошення пропозиції:
11 вересня 2024
Площа:
492.60 м2
Тип об’єкта:
Будівля
Тип аукціону:
Англійський аукціон
Статус аукціону:
Аукціон не відбувся
Тип угоди:
Оренда
Розмір мінімального кроку:
100.00 ₴
Розмір гарантійного внеску:
4 740.78 ₴
Початок прийому пропозицій:
11.09.2024 15:08:54
Завершення прийому пропозицій:
14.10.2024 20:00:00
Проведення аукціону:
15.10.2024 11:55:00
Лот:
CLE001-UA-20240911-74468
№ лоту (УТК):
UTK200721_18P
Лот виставляється на торги (раз):
10
Стислий опис майна:
Пропонується до оренди частини будівлі площею 492,60 кв. м. Велика територія. Будівля знаходиться на околиці міста. Приміщення потребують капітального ремонту. Грибок на стінах, сирість. Характеристики: кількість поверхів – 2; Вільне до використання електропостачання- 50 кВт; водопостачання; газове опалення потребує повного відновлення; земельна ділянка – 1,8404 га (договір оренди)
Адреса місцезнаходження майна:
Україна, Львівська обл., м. Броди, вул. Зелена, 19
Схожі пропозиції
08.10.2025
ДОВГОСТРОКОВА ОРЕНДА! Львівська обл., смт. Немирів, вул. Західні Вали, 12А. Оренда – будівля площею 55,8 кв.м. (В)
7 797.49 грн
139.74 грн / м2
Будівля
ДОВГОСТРОКОВА ОРЕНДА! Львівська обл., смт. Немирів, вул. Західні Вали, 12А. Оренда – будівля площею 55,8 кв.м. (В)
Україна, Львівська обл., смт. Немирів, вул. Західні Вали, 12А
Львівська обл., м. Золочів, вул. Л. Українки, 16. Оренда – одноповерхова будівля площею 248,5 кв.м. (В)
3 358.23 грн
13.51 грн / м2
Будівля
Львівська обл., м. Золочів, вул. Л. Українки, 16. Оренда – одноповерхова будівля площею 248,5 кв.м. (В)
Україна, Львівська обл., м. Золочів, вул. Л. Українки, 16
Львівська обл. смт. Верхнє Синьовидне, вул. Січових Стрільців, 106. Оренда – частини будівлі площею 294,10 кв. м. (В)
1 726.37 грн
5.87 грн / м2
Будівля
Львівська обл. смт. Верхнє Синьовидне, вул. Січових Стрільців, 106. Оренда – частини будівлі площею 294,10 кв. м. (В)
Україна, Львівська обл., Верхнє Синьовидне, вул. Січових Стрільців, 106
11.08.2023
Львівська обл., смт. Підбуж, вул. Зелена, 17. Оренда – нежитлової будівлі загальною площею 111,10 кв.м. (В)
2 893.04 грн
26.04 грн / м2
Будівля
Львівська обл., смт. Підбуж, вул. Зелена, 17. Оренда – нежитлової будівлі загальною площею 111,10 кв.м. (В)
Україна, Львівська обл., смт. Підбуж, вул. Зелена, 17
Переглянуті пропозиції
24.02.2023
Вінницька обл., Вінницький р-н, м. Немирів, вул. Шевченка, 25, оренда – приміщення 1 поверху площею 21,2 кв. м (В)
508.80 грн
24.00 грн / м2
Приміщення
Вінницька обл., Вінницький р-н, м. Немирів, вул. Шевченка, 25, оренда – приміщення 1 поверху площею 21,2 кв. м (В)
Україна, Вінницька обл., Немирів, вул. Шевченка, 25
м. Київ, вул. Оболонська, 29-А, оренда – приміщення 1-го поверху площею 113,30 м2 (В)
36 013.54 грн
317.86 грн / м2
Приміщення
м. Київ, вул. Оболонська, 29-А, оренда – приміщення 1-го поверху площею 113,30 м2 (В)
Україна, м.Київ, Київ, вул. Оболонська, 29-А
Рівненська обл., м. Дубровиця, вул. Шевченка, 53. Оренда приміщень 2-го поверху
891.07 грн
18.72 грн / м2
Приміщення
Рівненська обл., м. Дубровиця, вул. Шевченка, 53. Оренда приміщень 2-го поверху
Україна, Рівненська обл., м. Дубровиця, вул. Шевченка, 53
21.03.2024
м.Харків, вул.Конторська,14 ;     Оренда–приміщення 2-го поверху площею 26,1 кв.м (В)
1 808.73 грн
69.30 грн / м2
Приміщення
м.Харків, вул.Конторська,14 ; Оренда–приміщення 2-го поверху площею 26,1 кв.м (В)
Україна, Харківська обл., Харків, вулиця Конторська, 14