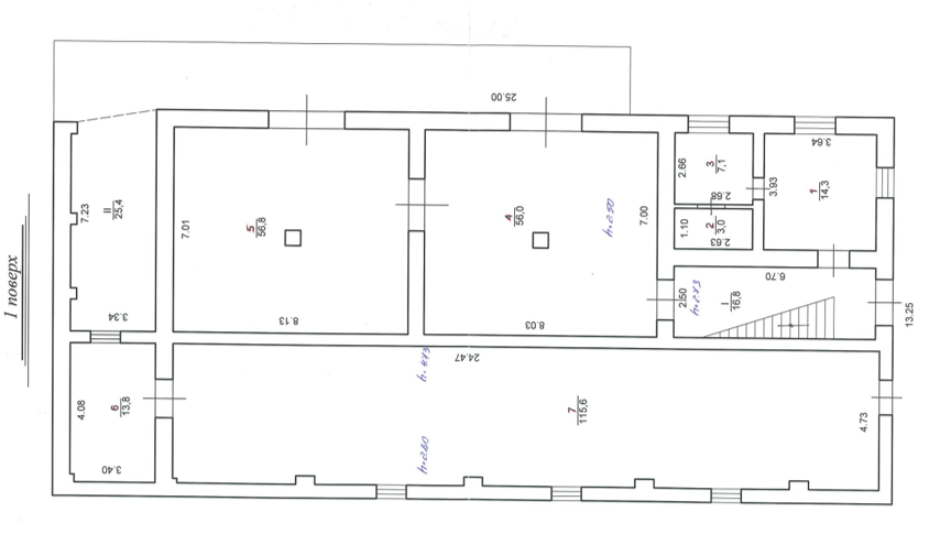
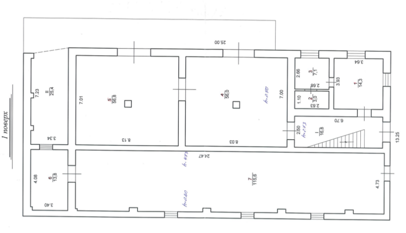
ДОВГОСТРОКОВА ОРЕНДА! Тернопільська обл., м. Тернопіль, вул. Бордуляка, 5. Оренда – будівля складу площею 462,5 кв.м. (В)

21 922.50 грн
47.40 грн / м2
Україна, Львівська обл., м. Тернопіль, вул. Бордуляка, 5
Перейти до аукціону на сайті
  • Інформація
  • Опис
  • Документи
Дата оголошення пропозиції:
12 вересня 2024
Площа:
462.50 м2
Тип об’єкта:
Будівля
Тип аукціону:
Англійський аукціон
Статус аукціону:
Аукціон не відбувся
Тип угоди:
Оренда
Розмір мінімального кроку:
400.00 ₴
Розмір гарантійного внеску:
13 153.50 ₴
Початок прийому пропозицій:
12.09.2024 11:12:16
Завершення прийому пропозицій:
14.10.2024 20:00:00
Проведення аукціону:
15.10.2024 12:40:00
Лот:
CLE001-UA-20240912-65410
№ лоту (УТК):
UTK190523_05P
Лот виставляється на торги (раз):
10
Стислий опис майна:
Пропонуються до оренди двоповерхова будівля складу загальною площею 462,5 кв.м. Будівля знаходиться в наближеному до центра міста районі, навколо малоповерхова житлова забудова зручний заїзд. Рампа для розгрузки. Можливий заїзд габаритними авто, велика територія. Можливість паркінгу. Характеристики: кількість поверхів – 2; опалення – електричне; водопостачання, водовідведення – централізоване.
Адреса місцезнаходження майна:
Україна, Львівська обл., м. Тернопіль, вул. Бордуляка, 5
Схожі пропозиції
14.05.2024
Львівська обл., смт. Немирів, вул. Західні Вали, 12А. Оренда – будівля площею 55,8 кв.м. (В)
3 777.10 грн
67.69 грн / м2
Будівля
Львівська обл., смт. Немирів, вул. Західні Вали, 12А. Оренда – будівля площею 55,8 кв.м. (В)
Україна, Львівська обл., смт. Немирів, вул. Західні Вали, 12А
Львівська обл., м. Ходорів, вул. Шевченка, 119. Оренда –  частини будівлі площею 48,10 кв. м. (В)
1 573.83 грн
32.72 грн / м2
Будівля
Львівська обл., м. Ходорів, вул. Шевченка, 119. Оренда – частини будівлі площею 48,10 кв. м. (В)
Україна, Львівська обл., м. Ходорів, вул. Шевченка, 119
 Львівська обл., с. П’ятничани, вул. Львівська, 1. Оренда – будівля складу площею 75 кв.м. (В)
1 308.00 грн
17.44 грн / м2
Будівля
Львівська обл., с. П’ятничани, вул. Львівська, 1. Оренда – будівля складу площею 75 кв.м. (В)
Україна, Львівська обл., с. П’ятничани , вул. Львівська, 1
м. Львів, вул. Скляна, 11а. Оренда – будівля гаражів площею 211,10 кв.м. (В)
17 282.76 грн
81.87 грн / м2
Будівля
м. Львів, вул. Скляна, 11а. Оренда – будівля гаражів площею 211,10 кв.м. (В)
Україна, Львівська обл., м. Львів, вул. Скляна, 11а