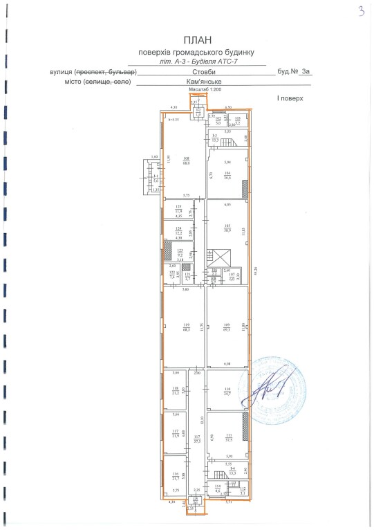
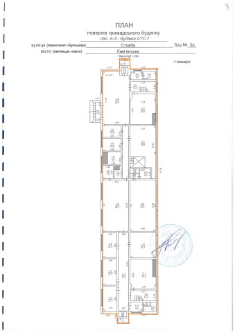
ДОВГОСТРОКОВА ОРЕНДА! Дніпропетровська обл., м. Кам’янське, вул. Стовби, 3а. Оренда – триповерхова будівля, загальною площею 1811,00 (літ. А-3) (В)

10 340.81 грн
5.71 грн / м2
Україна, Дніпропетровська обл., м. Кам’янське, вул. Стовби, 3а
Перейти до аукціону на сайті
  • Інформація
  • Опис
  • Документи
Дата оголошення пропозиції:
16 вересня 2024
Площа:
1811.00 м2
Тип об’єкта:
Приміщення
Тип аукціону:
Англійський аукціон
Статус аукціону:
Аукціон не відбувся
Тип угоди:
Оренда
Розмір мінімального кроку:
200.00 ₴
Розмір гарантійного внеску:
6 204.49 ₴
Початок прийому пропозицій:
16.09.2024 14:50:21
Завершення прийому пропозицій:
17.10.2024 20:00:00
Проведення аукціону:
18.10.2024 11:55:00
Лот:
CLE001-UA-20240916-36746
№ лоту (УТК):
UTK020821_22P
Лот виставляється на торги (раз):
10
Стислий опис майна:
Пропонується до оренди триповерхова будівля загальною площею 1811,00 (літ. А-3). Зручна транспортна розв’язка та інфраструктура. Характеристики: Кількість поверхів – 3; Загальна площа – 1811,00 кв.м.; Площа запропонована до оренди – 1811,00 кв.м.; Електропостачання, водопостачання, водовідведення.; Земельна ділянка – 0,3284 га (договір оренди)
Адреса місцезнаходження майна:
Україна, Дніпропетровська обл., м. Кам’янське, вул. Стовби, 3а
Схожі пропозиції
17.03.2023
Дніпропетровська обл., Апостолівський р-н, с. Мар`янське, вул. Терешкової, 7. Оренда – приміщення 1-го поверху площею 32,30 кв.м. (В)
607.89 грн
18.82 грн / м2
Приміщення
Дніпропетровська обл., Апостолівський р-н, с. Мар`янське, вул. Терешкової, 7. Оренда – приміщення 1-го поверху площею 32,30 кв.м. (В)
Україна, Дніпропетровська обл., Апостолівський р-н, с. Мар`янське, вул. Терешкової, 7
17.05.2024
Дніпропетровська обл., м. Дніпро, вул. Князя Ярослава Мудрого, 3. Оренда – приміщення 5-го поверху площею 34,80 кв.м.(В)
4 163.81 грн
119.65 грн / м2
Приміщення
Дніпропетровська обл., м. Дніпро, вул. Князя Ярослава Мудрого, 3. Оренда – приміщення 5-го поверху площею 34,80 кв.м.(В)
Україна, Дніпропетровська обл., м. Дніпро, вул. Князя Ярослава Мудрого, 3
Дніпропетровська обл., м. Новомосковськ, вул. Північна, 5. Оренда – приміщення громадського будинку нежитлових будівель площею 2636,60 кв.м. (В)
61 538.24 грн
23.34 грн / м2
Приміщення
Дніпропетровська обл., м. Новомосковськ, вул. Північна, 5. Оренда – приміщення громадського будинку нежитлових будівель площею 2636,60 кв.м. (В)
Україна, Дніпропетровська обл., м. Новомосковськ, вул. Північна, 5
21.04.2023
Дніпропетровська обл., м. Дніпро, вул. Панікахи, 27. Оренда – приміщення 4-го поверху площею 737,0 кв.м.(В)
34 049.40 грн
46.20 грн / м2
Приміщення
Дніпропетровська обл., м. Дніпро, вул. Панікахи, 27. Оренда – приміщення 4-го поверху площею 737,0 кв.м.(В)
Україна, Дніпропетровська обл., м. Дніпро, вул. Панікахи, 27
Переглянуті пропозиції
30.05.2023
Дніпропетровська обл., м. Дніпро, вул. Січових Стрільців, 10. Оренда – приміщення цокольного поверху площею 47,90 кв.м. (В)
2 212.98 грн
46.20 грн / м2
Приміщення
Дніпропетровська обл., м. Дніпро, вул. Січових Стрільців, 10. Оренда – приміщення цокольного поверху площею 47,90 кв.м. (В)
Україна, Дніпропетровська обл., м. Дніпро, вул. Січових Стрільців, 10