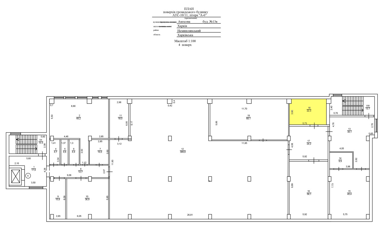
м.Харків, вул. Амосова,13-В ; Оренда – приміщення четвертого поверху площею 22,3 кв.м. (П)

1 292.73 грн
57.97 грн / м2
Україна, Харківська обл., Харків, вул. Амосова,13-В
Перейти до аукціону на сайті
  • Інформація
  • Опис
  • Документи
Дата оголошення пропозиції:
27 вересня 2024
Площа:
22.30 м2
Тип об’єкта:
Приміщення
Тип аукціону:
Англійський аукціон
Статус аукціону:
Аукціон не відбувся
Тип угоди:
Оренда
Розмір мінімального кроку:
70.00 ₴
Розмір гарантійного внеску:
775.64 ₴
Початок прийому пропозицій:
27.09.2024 10:30:23
Завершення прийому пропозицій:
28.10.2024 20:00:00
Проведення аукціону:
29.10.2024 11:00:00
Лот:
CLE001-UA-20240927-09018
№ лоту (УТК):
UTK160824_08T
Лот виставляється на торги (раз):
1
Стислий опис майна:
Пропонується до оренди приміщення четветого поверху площею 22,3 кв.м. Будівля в спальному районі міста Харкова. 10 хв до зупинки транспорту. Характеристики: Кількість поверхів – 5; Загальна площа – 4838,00 кв.м_ Площа запропонована до оренди – 22,3 кв.м. Дозволена потужність –1, 2 кВт Теплопостачання-централізоване Земельна ділянка – 0,4825 га
Адреса місцезнаходження майна:
Україна, Харківська обл., Харків, вул. Амосова,13-В
Схожі пропозиції
16.05.2024
Харківська обл., м. Харків, пр-т Байрона, 169 (пр-т Героїв Сталінграду, 169). Оренда – приміщення на 1-му поверсі загальною площею 31,10 кв.м. (В)
2 425.80 грн
78.00 грн / м2
Приміщення
Харківська обл., м. Харків, пр-т Байрона, 169 (пр-т Героїв Сталінграду, 169). Оренда – приміщення на 1-му поверсі загальною площею 31,10 кв.м. (В)
Україна, Харківська обл., м. Харків, пр-т Байрона, 169 (пр-т Героїв Сталінграду, 169)
24.01.2024
Харківська обл., Богодухівський р-н, смт. Краснокутськ, вул. Миру, 123. Оренда – приміщення 1-го поверху площею 25,42 кв.м. (В)
1 982.76 грн
78.00 грн / м2
Приміщення
Харківська обл., Богодухівський р-н, смт. Краснокутськ, вул. Миру, 123. Оренда – приміщення 1-го поверху площею 25,42 кв.м. (В)
Україна, Харківська обл., Богодухівський р-н, смт. Краснокутськ, вул. Миру, 123
11.10.2023
м. Харків, вул. Старошишківська, 5а. Оренда – приміщення 2-го поверху площею 127,8 кв.м. (В)
8 451.41 грн
66.13 грн / м2
Приміщення
м. Харків, вул. Старошишківська, 5а. Оренда – приміщення 2-го поверху площею 127,8 кв.м. (В)
Україна, Харківська обл., м. Харків, вул. Старошишківська, 5а
03.06.2025
м. Харків, вул. Конторська,14.Оренда – приміщення 2-го поверху площею 36,2 кв.м (В)
1 086.00 грн
30.00 грн / м2
Приміщення
м. Харків, вул. Конторська,14.Оренда – приміщення 2-го поверху площею 36,2 кв.м (В)
Україна, Харківська обл., м. Харків, вул. Конторська,14