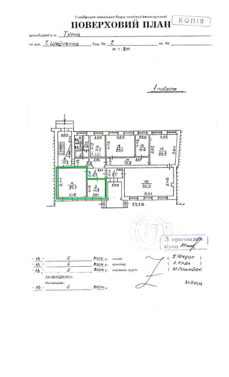
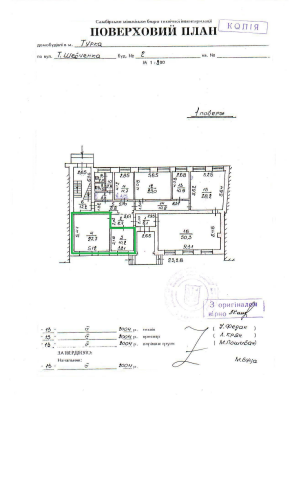
Львівська обл., м. Турка, вул. Т.Шевченка, 2. Оренда – приміщення першого поверху площею 37,90 кв. м (В)

1 364.40 грн
36.00 грн / м2
Україна, Львівська обл., м. Турка, вул. Т.Шевченка, 2
Перейти до аукціону на сайті
  • Інформація
  • Опис
  • Документи
Дата оголошення пропозиції:
27 вересня 2024
Площа:
37.90 м2
Тип об’єкта:
Приміщення
Тип аукціону:
Англійський аукціон
Статус аукціону:
Аукціон не відбувся
Тип угоди:
Оренда
Розмір мінімального кроку:
50.00 ₴
Розмір гарантійного внеску:
818.64 ₴
Початок прийому пропозицій:
27.09.2024 14:33:33
Завершення прийому пропозицій:
28.10.2024 20:00:00
Проведення аукціону:
29.10.2024 11:10:00
Лот:
CLE001-UA-20240927-38462
№ лоту (УТК):
UTK140624_15P
Лот виставляється на торги (раз):
4
Стислий опис майна:
Пропонується до оренди приміщення першого поверху площею 37,90 кв. м. Будівля розташована в центрі міста, зручна транспортна розв’язка, високі пішохідні та автомобільні потоки. Характеристики Кількість поверхів – 3 Електропостачання
Адреса місцезнаходження майна:
Україна, Львівська обл., м. Турка, вул. Т.Шевченка, 2
Схожі пропозиції
04.08.2023
Львівська обл., Жовківський р-н., с. Мокротин, вул. Хоробрівка, 7а . Оренда – приміщення площею 16,60 кв.м. (В)
500.16 грн
30.13 грн / м2
Приміщення
Львівська обл., Жовківський р-н., с. Мокротин, вул. Хоробрівка, 7а . Оренда – приміщення площею 16,60 кв.м. (В)
Україна, Львівська обл., Жовківський р-н., с. Мокротин, вул. Хоробрівка, 7а
05.06.2025
Львівська обл., с. Зубів Міст, вул. Широка, 23.
519.00 грн
30.00 грн / м2
Приміщення
Львівська обл., с. Зубів Міст, вул. Широка, 23.
Україна, Львівська обл., Зубів Міст, Зубів Міст, вул. Широка, 23
Львівська обл., м. Новий Розділ,  пр. Шевченка, 30. Оренда – приміщення  3-го поверху 158,4 кв.м.
1 764.58 грн
11.14 грн / м2
Приміщення
Львівська обл., м. Новий Розділ, пр. Шевченка, 30. Оренда – приміщення 3-го поверху 158,4 кв.м.
Україна, Львівська обл., м. Новий Розділ, пр. Шевченка, 30
17.01.2023
Львівська обл., м. Стрий, вул. Бачинської, 4Б. Оренда – приміщення площею 80,70 кв.м. (В)
2 947.16 грн
36.52 грн / м2
Приміщення
Львівська обл., м. Стрий, вул. Бачинської, 4Б. Оренда – приміщення площею 80,70 кв.м. (В)
Україна, Львівська обл., м. Стрий, вул. Бачинської, 4Б
Переглянуті пропозиції
27.09.2024
Сумська обл., м. Глухів, пров. Сергеєва-Ценського, буд. 13;   Оренда – тех.будівля площею 164,6 кв.м. (В)
984.31 грн
5.98 грн / м2
Будівля
Сумська обл., м. Глухів, пров. Сергеєва-Ценського, буд. 13; Оренда – тех.будівля площею 164,6 кв.м. (В)
Україна, Сумська обл., Глухів, пров. Сергеєва-Ценського, 13
04.02.2025
Львівська обл., м. Городок, вул. Львівська, 16;  Оренда – приміщення 4-го поверху площею 156,6 кв. м. (В)
1 006.94 грн
6.43 грн / м2
Приміщення
Львівська обл., м. Городок, вул. Львівська, 16; Оренда – приміщення 4-го поверху площею 156,6 кв. м. (В)
Україна, Львівська обл., Городок, Львівська вулиця, 16
17.03.2023
Дніпропетровська обл., м. Синельникове, вул. Богми, 4. Оренда – приміщення гаражу площею 30,7 кв.м. (В)
626.28 грн
20.40 грн / м2
Приміщення
Дніпропетровська обл., м. Синельникове, вул. Богми, 4. Оренда – приміщення гаражу площею 30,7 кв.м. (В)
Україна, Дніпропетровська обл., Синельникове, вулиця Богми, 4
01.09.2023
Дніпропетровська обл., смт Софіївка, бул. Шевченка, 17А. Оренда – приміщення гаражу площею 33,00 кв.м. (В)
429.00 грн
13.00 грн / м2
Приміщення
Дніпропетровська обл., смт Софіївка, бул. Шевченка, 17А. Оренда – приміщення гаражу площею 33,00 кв.м. (В)
Україна, Дніпропетровська обл., смт Софіївка, ул. Шевченка, 17А