Сумська обл., Шосткинський р-н, с. Каліївка, вул. Садова (Жовтнева), буд.14; Оренда – частина будівлі та сарай площею 103,7 кв.м. (В)

502.95 грн
4.85 грн / м2
Україна, Сумська обл., Каліївка, вул. Садова (Жовтнева), буд.14
Перейти до аукціону на сайті
  • Інформація
  • Опис
  • Документи
Дата оголошення пропозиції:
02 жовтня 2024
Площа:
103.70 м2
Тип об’єкта:
Будівля
Тип аукціону:
Англійський аукціон
Статус аукціону:
Аукціон не відбувся
Тип угоди:
Оренда
Розмір мінімального кроку:
30.00 ₴
Розмір гарантійного внеску:
301.77 ₴
Початок прийому пропозицій:
02.10.2024 14:21:23
Завершення прийому пропозицій:
04.11.2024 20:00:00
Проведення аукціону:
05.11.2024 12:55:00
Лот:
CLE001-UA-20241002-94232
№ лоту (УТК):
UTK160721_42Т
Лот виставляється на торги (раз):
10
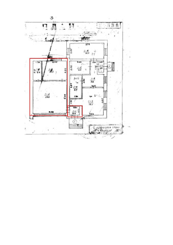
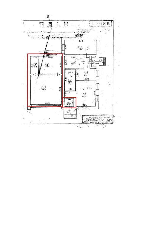
Стислий опис майна:
Пропонується до оренди частина будівлі та сарай площею 103,7 кв.м. Знаходиться в прицентральній частині села в приватній забудові житлових будинків. Потрібно відновлення систем водопостачання, теплопостачання, електропостачання. Характеристики: • кількість поверхів – 1; • Загальна площа – 160,1 кв. м.; • Площа запропонована до оренди – 103,7 кв.м.; • Опалення, водопостачання, електропостачання-відсутнє; • Дозволена потужність – 2 кВт; • земельна ділянка – 0,0893 га (договір оренди ЗД); • стан приміщення –задовільний.
Адреса місцезнаходження майна:
Україна, Сумська обл., Каліївка, вул. Садова (Жовтнева), буд.14
Схожі пропозиції
30.04.2024
Сумська обл., м. Конотоп, вул. Вирівська, 21. Оренда – нежитлові будівлі площею 527,70 кв.м. (В)
8 970.90 грн
17.00 грн / м2
Будівля
Сумська обл., м. Конотоп, вул. Вирівська, 21. Оренда – нежитлові будівлі площею 527,70 кв.м. (В)
Україна, Сумська обл., м. Конотоп, вул. Вирівська, 21
30.04.2024
Сумська обл., м. Кролевець, пл. Свободи, буд. 10/2;   Оренда – частина будівлі та гараж, площею 233,3 кв. м. (В)
779.22 грн
3.34 грн / м2
Будівля
Сумська обл., м. Кролевець, пл. Свободи, буд. 10/2; Оренда – частина будівлі та гараж, площею 233,3 кв. м. (В)
Україна, Сумська обл., Кролевець, площа Свободи, 10/2
Сумська обл., м. Лебедин, вул. Шевська, буд. 46. Оренда – нежитлова будівля площею 236,9 кв.м (В)
1 153.70 грн
4.87 грн / м2
Будівля
Сумська обл., м. Лебедин, вул. Шевська, буд. 46. Оренда – нежитлова будівля площею 236,9 кв.м (В)
Україна, Сумська обл., Лебедин, вул. Шевська, буд. 46
Сумська обл., м. Лебедин, вул. Героїв Майдану, 23. Оренда – будівля.
14 101.20 грн
12.00 грн / м2
Будівля
Сумська обл., м. Лебедин, вул. Героїв Майдану, 23. Оренда – будівля.
Україна, Сумська обл., м. Лебедин, вул. Героїв Майдану, 23