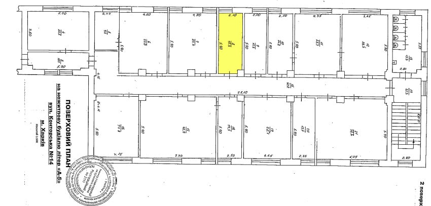
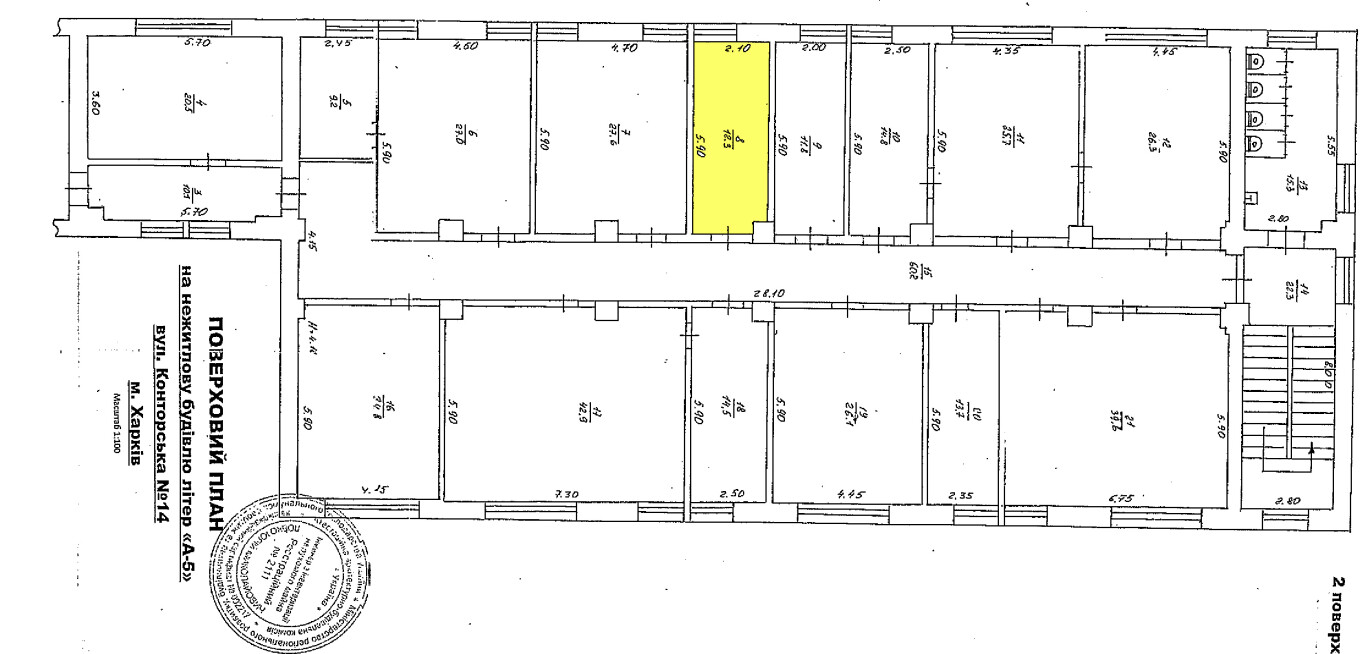
м.Харків, вул.Конторська,14; Оренда–приміщення 2-го поверху площею 12,3 кв.м (В)

852.39 грн
69.30 грн / м2
Україна, Харківська обл., Харків, вулиця Конторська, 14
Перейти до аукціону на сайті
  • Інформація
  • Опис
  • Документи
Дата оголошення пропозиції:
02 жовтня 2024
Площа:
12.30 м2
Тип об’єкта:
Приміщення
Тип аукціону:
Англійський аукціон
Статус аукціону:
Аукціон не відбувся
Тип угоди:
Оренда
Розмір мінімального кроку:
50.00 ₴
Розмір гарантійного внеску:
511.43 ₴
Початок прийому пропозицій:
02.10.2024 17:52:03
Завершення прийому пропозицій:
04.11.2024 20:00:00
Проведення аукціону:
05.11.2024 12:15:00
Лот:
CLE001-UA-20241002-44419
№ лоту (УТК):
UTK070723_05T
Лот виставляється на торги (раз):
10
Стислий опис майна:
Пропонується до оренди приміщення 2-го поверху площею 12,3 кв.м. Будівля в центрі міста Харкова.15 хв до метро Центральний ринок. Характеристики: Кількість поверхів – 4; Загальна площа – 5611,00 кв.м_ Площа запропонована до оренди - 12,3 кв.м Дозволена потужність – 4 кВт Теплопостачання - відсутнє Земельна ділянка – 0,5169 га
Адреса місцезнаходження майна:
Україна, Харківська обл., Харків, вулиця Конторська, 14
Схожі пропозиції
Харківська обл., м. Харків, вул. Конторська, 14 . Оренда – приміщення 1 поверху, площею 4,0 м2 (П)
418.16 грн
104.54 грн / м2
Приміщення
Харківська обл., м. Харків, вул. Конторська, 14 . Оренда – приміщення 1 поверху, площею 4,0 м2 (П)
Україна, Харківська обл., Харків, вул. Конторська, 14
05.06.2024
м. Харків, вул.Старошишківська,5а. Оренда – приміщення 1-го поверху, площею 46,2 кв.м (В)
2 393.62 грн
67.81 грн / м2
Приміщення
м. Харків, вул.Старошишківська,5а. Оренда – приміщення 1-го поверху, площею 46,2 кв.м (В)
Україна, Харківська обл., м. Харків, вул.Старошишківська,5а
27.08.2024
м.Харків, вул. Конторська,14. Оренда – приміщення 1-го поверху, площею 11,9 кв.м (В)
1 719.31 грн
144.48 грн / м2
Приміщення
м.Харків, вул. Конторська,14. Оренда – приміщення 1-го поверху, площею 11,9 кв.м (В)
Україна, Харківська обл., м. Харків, вул. Конторська,14
06.02.2024
м.Харків, вул. Амосова,13 в. Оренда – приміщення 2-го поверху площею 136,3 кв.м (В)
11 826.75 грн
86.77 грн / м2
Приміщення
м.Харків, вул. Амосова,13 в. Оренда – приміщення 2-го поверху площею 136,3 кв.м (В)
Україна, Харківська обл., м. Харків, вул. Амосова,13 в
Переглянуті пропозиції
Рівненська обл., смт. Рокитне, вул. Незалежності 9, Оренда – приміщення 4-го поверху площею 21,90 кв.м. (В) .
167.75 грн
7.66 грн / м2
Приміщення
Рівненська обл., смт. Рокитне, вул. Незалежності 9, Оренда – приміщення 4-го поверху площею 21,90 кв.м. (В) .
Україна, Рівненська обл., Рокитне, вул. Незалежності, 9