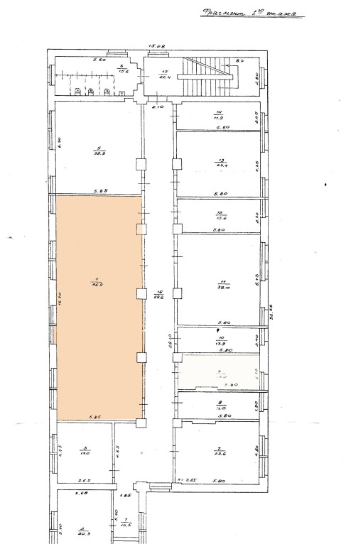
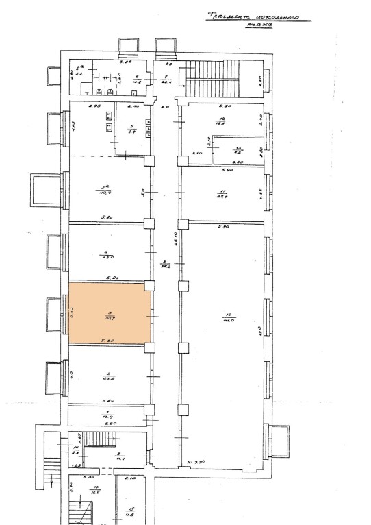
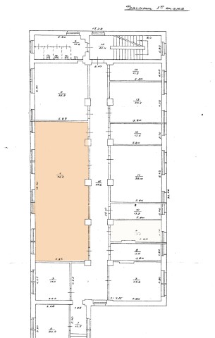
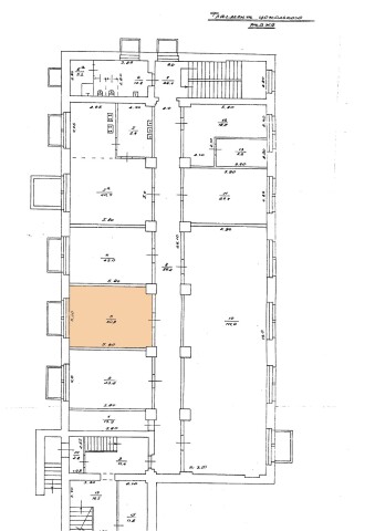
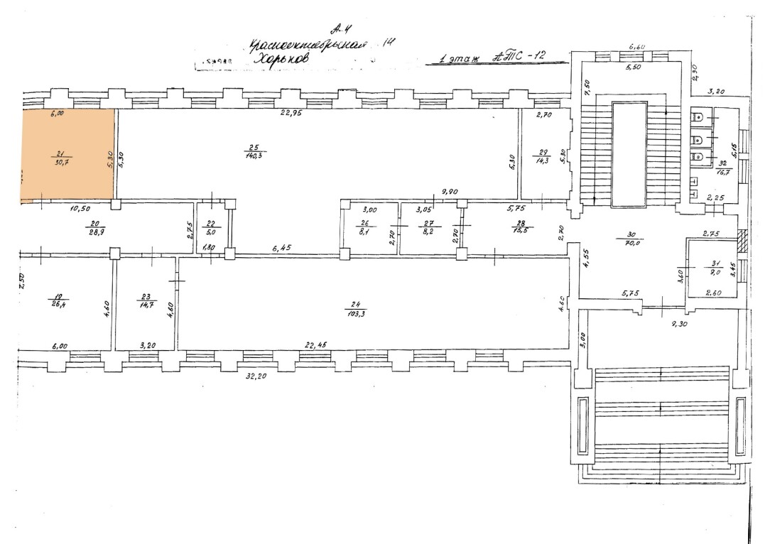
Харківська обл., м. Харків, вул. Конторська, 14. Оренда – приміщення першого поверху та цоколю, площею 158,30 кв.м. (П)

19 971.00 грн
126.16 грн / м2
Україна, Харківська обл., м. Харків, вул. Конторська, 14
Перейти до аукціону на сайті
  • Інформація
  • Опис
  • Документи
Дата оголошення пропозиції:
27 січня 2022
Площа:
158.30 м2
Тип об’єкта:
Приміщення
Тип аукціону:
Англійський аукціон
Статус аукціону:
Аукціон не відбувся
Тип угоди:
Оренда
Розмір мінімального кроку:
400.00 ₴
Розмір гарантійного внеску:
11 982.60 ₴
Початок прийому пропозицій:
27.01.2022 14:24:01
Завершення прийому пропозицій:
28.02.2022 20:00:00
Лот:
UA-PS-2022-01-27-000068-1
№ лоту (УТК):
UTK270122_16P
Лот виставляється на торги (раз):
1
Стислий опис майна:
Пропонуються до оренди приміщення першого поверху та цоколю, площею 158,30 м2, розташовані за адресою: м. Харків, вул.Конторьска, 14, перший поверх та цоколь. Будівля знаходиться в районі міста наближеного до центру, 5 хвилин до зупинки громадського транспорту. Характеристики: Кількість поверхів – 4 ; кількість приміщень, пропонованих до оренди – 3; В приміщенні присутні електроенергія , на поверсі є водопостачання та сан. кімната.; Земельна ділянка – 5196,00 кв.м.
Адреса місцезнаходження майна:
Україна, Харківська обл., м. Харків, вул. Конторська, 14
Схожі пропозиції
05.06.2024
 Харківська обл., м. Харків, Нетіченська набережна, 8;  Оренда – приміщення на 2-му поверсі загальною площею 1453,40 кв.м. (В)
9 164.20 грн
6.31 грн / м2
Приміщення
Харківська обл., м. Харків, Нетіченська набережна, 8; Оренда – приміщення на 2-му поверсі загальною площею 1453,40 кв.м. (В)
Україна, Харківська обл., Харків, Нетіченська набережна, 8
21.08.2024
м. Харків, пр-т. Г. Сталінграду, 169. Оренда – приміщення 3-го поверху площею 320,9 кв.м. (В)
17 521.14 грн
54.60 грн / м2
Приміщення
м. Харків, пр-т. Г. Сталінграду, 169. Оренда – приміщення 3-го поверху площею 320,9 кв.м. (В)
Україна, Харківська обл., м. Харків, пр-т. Г. Сталінграду, 169
30.04.2025
м. Харків, вул. Старошишківська,5а. Оренда – приміщення 1-го поверху площею 36,0 кв.м (В)
2 265.12 грн
62.92 грн / м2
Приміщення
м. Харків, вул. Старошишківська,5а. Оренда – приміщення 1-го поверху площею 36,0 кв.м (В)
Україна, Харківська обл., м. Харків, вул. Старошишківська,5а
17.10.2023
м. Харків, вул. Конторська,14.Оренда – приміщення 2-го поверху площею 36,2 кв.м (В)
2 508.66 грн
69.30 грн / м2
Приміщення
м. Харків, вул. Конторська,14.Оренда – приміщення 2-го поверху площею 36,2 кв.м (В)
Україна, Харківська обл., м. Харків, вул. Конторська,14
Переглянуті пропозиції
Харківська обл., м. Харків, вул. Академіка Вальтера, 3. Оренда – приміщення цокольного поверху, площею 47,9 кв.м. (В)
942.67 грн
19.68 грн / м2
Приміщення
Харківська обл., м. Харків, вул. Академіка Вальтера, 3. Оренда – приміщення цокольного поверху, площею 47,9 кв.м. (В)
Україна, Харківська обл., м. Харків, вул. Ак. Вальтера,3