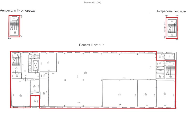
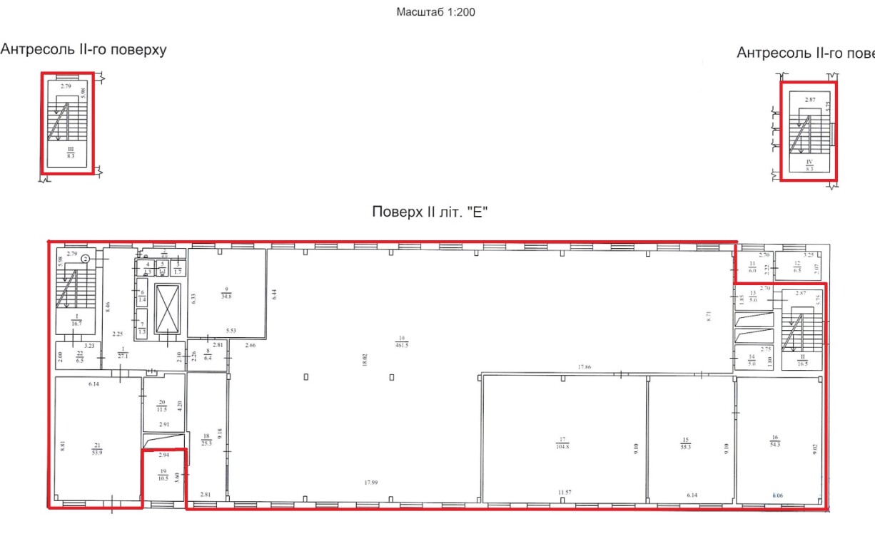
ДОВГОСТРОКОВА ОРЕНДА! м. Київ, вул. Героїв Севастополя, 39/8 літ. «Е»; Оренда – приміщення 2-го та 4-го поверхів, площею 1751,8 кв.м. (В)

239 944.05 грн
136.97 грн / м2
Україна, м.Київ, Київ, вул. Героїв Севастополя, 39/8(Е)
Перейти до аукціону на сайті
  • Інформація
  • Опис
  • Документи
Дата оголошення пропозиції:
05 жовтня 2024
Площа:
1751.80 м2
Тип об’єкта:
Приміщення
Тип аукціону:
Англійський аукціон
Статус аукціону:
Аукціон не відбувся
Тип угоди:
Оренда
Розмір мінімального кроку:
2 500.00 ₴
Розмір гарантійного внеску:
143 966.43 ₴
Початок прийому пропозицій:
05.10.2024 08:58:12
Завершення прийому пропозицій:
06.11.2024 20:00:00
Проведення аукціону:
07.11.2024 11:30:00
Лот:
CLE001-UA-20241005-59819
№ лоту (УТК):
UTK270522_6T
Лот виставляється на торги (раз):
10
Стислий опис майна:
Пропонується до оренди приміщення 2-го та 4-го поверху площею 1751,80 кв.м. Розташування будівлі у Солом'янському районі міста Києва, місцевості Відрадний та Новокараваєві дачі. Поруч розвинена інфраструктура, зупинки маршрутного транспорту, трамваю, магазини, кафе, аптеки, середній автомобільний і пішохідний потоки. Вхід з вулиці Героїв Севастополя та з прохідної. Доступ 24/7. Характеристики: - загальна площа будівлі – 4607,20 м²; - кількість поверхів – 4; - загальна площа земельної ділянки – 0,9713 га; - опалення – централізоване (міське); - сан. вузол, каналізація, водопостачання – присутне;
Адреса місцезнаходження майна:
Україна, м.Київ, Київ, вул. Героїв Севастополя, 39/8(Е)
Схожі пропозиції
м. Київ, вул. Оболонська, 29-А, оренда – приміщення 1-го поверху площею 113,30 м2 (В)
54 020.31 грн
476.79 грн / м2
Приміщення
м. Київ, вул. Оболонська, 29-А, оренда – приміщення 1-го поверху площею 113,30 м2 (В)
Україна, м.Київ, Київ, вул. Оболонська, 29-А
15.08.2023
м. Київ, бульвар Бучми Амвросія, 5. Оренда – приміщення 3-го та 4-го поверхів технічної будівлі АТС-550 (літ. «Б»), площею 1006,83 кв. м. (В)
22.08.2023
м. Київ, вул. Ореста Васкула (Пушиної Феодори), 27     Оренда – приміщення 1-го поверху площею 252,30 кв.м. (П)
106 732.99 грн
423.04 грн / м2
Приміщення
м. Київ, вул. Ореста Васкула (Пушиної Феодори), 27 Оренда – приміщення 1-го поверху площею 252,30 кв.м. (П)
Україна, м.Київ, Київ, вул. Ореста Васкула (Пушиної Феодори), 27
27.01.2023
м. Київ, вул. Архітектора Вербицького, 3. Оренда – приміщення 1-го та 3-го поверху площею 263,7 м2 (В)
30 663.04 грн
116.28 грн / м2
Приміщення
м. Київ, вул. Архітектора Вербицького, 3. Оренда – приміщення 1-го та 3-го поверху площею 263,7 м2 (В)
Україна, м.Київ, Київ, вулиця Архітектора Вербицького, 3