м. Київ, вул. Героїв Севастополя, 39/8, літ.«В»; Оренда – приміщення 1-го поверху блоку зовнішніх споруд, площею 80,60 кв.м. (В)

15 771.00 грн
195.67 грн / м2
Україна, м.Київ, Київ, вул. Героїв Севастополя, 39/8(В)
Перейти до аукціону на сайті
  • Інформація
  • Опис
  • Документи
Дата оголошення пропозиції:
05 жовтня 2024
Площа:
80.60 м2
Тип об’єкта:
Приміщення
Тип аукціону:
Англійський аукціон
Статус аукціону:
Аукціон не відбувся
Тип угоди:
Оренда
Розмір мінімального кроку:
500.00 ₴
Розмір гарантійного внеску:
9 462.60 ₴
Початок прийому пропозицій:
05.10.2024 09:00:24
Завершення прийому пропозицій:
06.11.2024 20:00:00
Проведення аукціону:
07.11.2024 12:15:00
Лот:
CLE001-UA-20241005-51258
№ лоту (УТК):
UTK010323_1T
Лот виставляється на торги (раз):
10
Стислий опис майна:
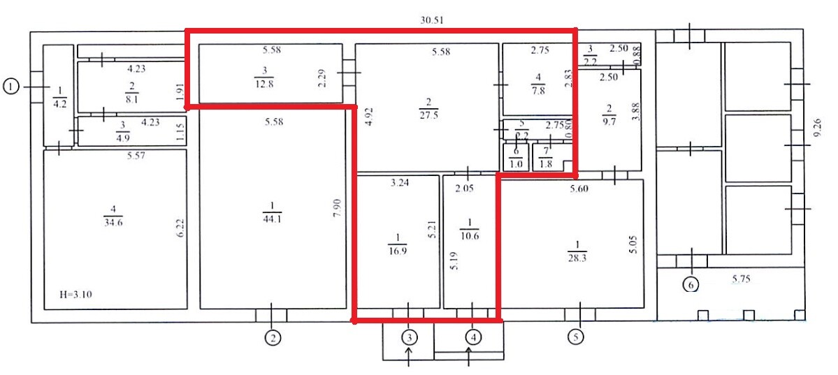
Пропонується до оренди приміщення 1-го поверху блоку зовнішніх споруд, площею 80,60 кв.м.. Розташування будівлі у Солом'янському районі міста Києва, місцевості Відрадний та Новокараваєві дачі. Поруч розвинена інфраструктура, зупинки маршрутного транспорту, трамваю, магазини, кафе, аптеки, середній автомобільний і пішохідний потоки. Вхід з вулиці Героїв Севастополя та з прохідної. Доступ 24/7. Характеристики: - загальна площа будівлі – 216,40 кв.м.; - кількість поверхів – 1; - загальна площа земельної ділянки – 0,9713 га; - опалення – відсутнє; - сан. вузол, каналізація, водопостачання – присутне;
Адреса місцезнаходження майна:
Україна, м.Київ, Київ, вул. Героїв Севастополя, 39/8(В)
Схожі пропозиції
14.03.2023
м. Київ, вул. Ореста Васкула (Феодори Пушиної), 27. Оренда – приміщення 3-го поверху, площею 7,5 кв.м (В)
1 890.00 грн
252.00 грн / м2
Приміщення
м. Київ, вул. Ореста Васкула (Феодори Пушиної), 27. Оренда – приміщення 3-го поверху, площею 7,5 кв.м (В)
Україна, м.Київ, м. Київ, вул. Ореста Васкула (Феодори Пушиної), 27
30.07.2025
м. Київ, вул. Макіївська, 3, літ. «А» (Оболонський р-н). Оренда – група приміщень на 1-му поверсі, загальною площею 247,40 кв.м (В)
27 394.60 грн
110.73 грн / м2
Приміщення
м. Київ, вул. Макіївська, 3, літ. «А» (Оболонський р-н). Оренда – група приміщень на 1-му поверсі, загальною площею 247,40 кв.м (В)
Україна, м.Київ, Київ, 04082, м. Київ, вул. Макіївська, 3, літ. «А» (Оболонський р-н)
30.12.2022
ДОВГОСТРОКОВА ОРЕНДА! м. Київ, вул. Салютна, 5а, літ. «Б». Оренда – приміщення 3-го та 4-го поверхів площею 992,8 кв.м. (В)
21.06.2023
ДОВГОСТРОКОВА ОРЕНДА !м. Київ, вул. Макіївська, 3.    Оренда – приміщення 4-го поверху площею 891,70 кв.м. (П)
41 196.54 грн
46.20 грн / м2
Приміщення
ДОВГОСТРОКОВА ОРЕНДА !м. Київ, вул. Макіївська, 3. Оренда – приміщення 4-го поверху площею 891,70 кв.м. (П)
Україна, м.Київ, Київ, вулиця Макіївська, 3
Переглянуті пропозиції
16.01.2024
Рівненська обл., Рівненський р-н, с. Пустомити, вул. Радянська, 41. Оренда – виробничі приміщення площею 21,80 кв.м. (В)
261.60 грн
12.00 грн / м2
Приміщення
Рівненська обл., Рівненський р-н, с. Пустомити, вул. Радянська, 41. Оренда – виробничі приміщення площею 21,80 кв.м. (В)
Україна, Рівненська обл., Рівненський р-н, с. Пустомити, вул. Радянська, 41
28.12.2022
Волинська обл., м. Любомль, вул. Б.Хмельницького, 2. Оренда – приміщення 1-го поверху адмінбудівлі площею 98,50 кв.м. (В)
4 018.80 грн
40.80 грн / м2
Приміщення
Волинська обл., м. Любомль, вул. Б.Хмельницького, 2. Оренда – приміщення 1-го поверху адмінбудівлі площею 98,50 кв.м. (В)
Україна, Волинська обл., м. Любомль, вул. Б.Хмельницького, 2
22.04.2025
м. Чернігів, вул. Кільцева,11. Оренда – частина комплексу виробничих будівель площею 1339,7 кв.м (В)
40 191.00 грн
30.00 грн / м2
Будівля
м. Чернігів, вул. Кільцева,11. Оренда – частина комплексу виробничих будівель площею 1339,7 кв.м (В)
Україна, Чернігівська обл., м. Чернігів, вул. Кільцева,11
21.08.2024
Сумська обл., м. Суми, вул. Іллінська, буд. 2. Оренда – офісні приміщення 3-го поверху площею 411,00 кв. м. (В)
24 138.03 грн
58.73 грн / м2
Офіс
Сумська обл., м. Суми, вул. Іллінська, буд. 2. Оренда – офісні приміщення 3-го поверху площею 411,00 кв. м. (В)
Україна, Сумська обл., м. Суми, вул. Іллінська, буд. 2