ДОВГОСТРОКОВА ОРЕНДА! Львівська обл., м. Дрогобич, вул. Самбірська, 81. Оренда – майновий комплекс площею 1118,80 кв. м. (В)

51 017.28 грн
45.60 грн / м2
Україна, Львівська обл., м. Дрогобич, вул. Самбірська, 81
Перейти до аукціону на сайті
  • Інформація
  • Опис
  • Документи
Дата оголошення пропозиції:
09 жовтня 2024
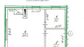
Площа:
1118.80 м2
Тип об’єкта:
Комплекс
Тип аукціону:
Англійський аукціон
Статус аукціону:
Аукціон не відбувся
Тип угоди:
Оренда
Розмір мінімального кроку:
2 000.00 ₴
Розмір гарантійного внеску:
30 610.37 ₴
Початок прийому пропозицій:
09.10.2024 13:43:27
Завершення прийому пропозицій:
07.11.2024 20:00:00
Проведення аукціону:
08.11.2024 12:55:00
Лот:
CLE001-UA-20241009-19751
№ лоту (УТК):
UTK091024_07P
Лот виставляється на торги (раз):
1
Стислий опис майна:
Пропонується до оренди майновий комплекс 1 118,80 кв. м. Простора територія, загороджена. Комплекс складається з 4-ьох будівель. Характеристики Електропостачання Водопостачання (потребує відновлення) Охорона
Адреса місцезнаходження майна:
Україна, Львівська обл., м. Дрогобич, вул. Самбірська, 81
Схожі пропозиції
Львівська  обл., м. Турка, вул. Міцкевича, 59а. Оренда – майновий комплекс
10 129.86 грн
16.20 грн / м2
Комплекс
Львівська обл., м. Турка, вул. Міцкевича, 59а. Оренда – майновий комплекс
Україна, Львівська обл., м. Турка, вул. Міцкевича, 59а
21.02.2025
ДОВГОСТРОКОВА ОРЕНДА! Львівська обл., м. Дрогобич, вул. Самбірська, 81. Оренда – майновий комплекс площею 1118,80 кв. м. (В)
22 376.00 грн
20.00 грн / м2
Комплекс
ДОВГОСТРОКОВА ОРЕНДА! Львівська обл., м. Дрогобич, вул. Самбірська, 81. Оренда – майновий комплекс площею 1118,80 кв. м. (В)
Україна, Львівська обл., м. Дрогобич, вул. Самбірська, 81
30.03.2023
Львівська обл., Турківський р-н, м. Турка, вул. Міцкевича, 59а. Оренда – майновий комплекс площею 625,3 кв.м. (В)
9 567.09 грн
15.30 грн / м2
Комплекс
Львівська обл., Турківський р-н, м. Турка, вул. Міцкевича, 59а. Оренда – майновий комплекс площею 625,3 кв.м. (В)
Україна, Львівська обл., Турківський р-н, м. Турка, вул. Міцкевича, 59а
03.04.2024
Львівська обл., м.Турка, вул. Міцкевича, 59а. Оренда – майновий комплекс площею 565,40 кв.м. (В)
30 118.86 грн
53.27 грн / м2
Комплекс
Львівська обл., м.Турка, вул. Міцкевича, 59а. Оренда – майновий комплекс площею 565,40 кв.м. (В)
Україна, Львівська обл., м.Турка, вул. Міцкевича, 59а
Переглянуті пропозиції
06.10.2023
Дніпропетровська обл., м. Дніпро, пр. Пушкіна, 75а. Оренда – приміщення 1-го поверху площею 11,5 кв.м. (В)
1 585.39 грн
137.86 грн / м2
Приміщення
Дніпропетровська обл., м. Дніпро, пр. Пушкіна, 75а. Оренда – приміщення 1-го поверху площею 11,5 кв.м. (В)
Україна, Дніпропетровська обл., Дніпро, вулиця Пушкіна, 75
21.01.2025
м.Харків, Салтівське шосе,2. Оренда – приміщення 1-го поверху, площею 41,00 кв.м (В)
2 204.98 грн
53.78 грн / м2
Приміщення
м.Харків, Салтівське шосе,2. Оренда – приміщення 1-го поверху, площею 41,00 кв.м (В)
Україна, Харківська обл., м. Харків, Салтівське шосе,2
09.01.2024
ДОВГОСТРОКОВА ОРЕНДА! Чернігівська обл., м. Чернігів, вул. Козацька, 5Б. Оренда – приміщення 2-го поверху площею 457,40 кв.м (В)
23 821.39 грн
52.08 грн / м2
Приміщення
ДОВГОСТРОКОВА ОРЕНДА! Чернігівська обл., м. Чернігів, вул. Козацька, 5Б. Оренда – приміщення 2-го поверху площею 457,40 кв.м (В)
Україна, Чернігівська обл., м. Чернігів, вул. Козацька, 5Б
10.08.2023
Дніпропетровська обл, м. П’ятихатки, вул. Мірошниченка, 107. Оренда – нежитлова будівля з підвалом загальною площею 145,6 кв.м. (В)
7 451.81 грн
51.18 грн / м2
Будівля
Дніпропетровська обл, м. П’ятихатки, вул. Мірошниченка, 107. Оренда – нежитлова будівля з підвалом загальною площею 145,6 кв.м. (В)
Україна, Дніпропетровська обл., м. П’ятихатки, вул. Мірошниченка, 107