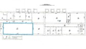
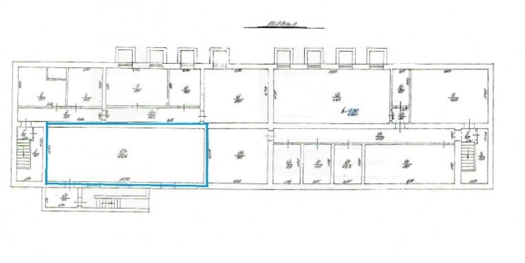
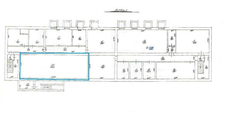
Львівська обл., м. Львів, вул. Виговського, 29а. Оренда – приміщення підвалу площею 86,80 кв.м (В)

7 812.87 грн
90.01 грн / м2
Україна, Львівська обл., м. Львів, вул. Виговського, 29а
Перейти до аукціону на сайті
  • Інформація
  • Опис
  • Документи
Дата оголошення пропозиції:
18 жовтня 2024
Площа:
86.80 м2
Тип об’єкта:
Приміщення
Тип аукціону:
Англійський аукціон
Статус аукціону:
Аукціон не відбувся
Тип угоди:
Оренда
Розмір мінімального кроку:
200.00 ₴
Розмір гарантійного внеску:
4 687.72 ₴
Початок прийому пропозицій:
18.10.2024 15:37:06
Завершення прийому пропозицій:
19.11.2024 20:00:00
Проведення аукціону:
20.11.2024 12:55:00
Лот:
CLE001-UA-20241018-29907
№ лоту (УТК):
UTK140322_13P
Лот виставляється на торги (раз):
10
Стислий опис майна:
Пропонуються до оренди приміщення підвалу площею 86,80 кв. м. Будівля знаходиться у прицентральній частині міста, в районі з розвиненою інфраструктурою і відмінною транспортною розв’язкою. Стан приміщення потребує ремонту. Характеристики: кількість поверхів – 3 опалення централізоване, водопостачання, електропостачання, каналізаційна мережа Вільне до споживання електропостачання – 50 кВт земельна ділянка – 0,2057га (договір оренди)
Адреса місцезнаходження майна:
Україна, Львівська обл., м. Львів, вул. Виговського, 29а
Схожі пропозиції
28.12.2023
Львівська область., смт. Підкамінь, вул. Незалежності, 48. Оренда – приміщення 1-го поверху площею 27,50 кв. м. (В)
275.00 грн
10.00 грн / м2
Приміщення
Львівська область., смт. Підкамінь, вул. Незалежності, 48. Оренда – приміщення 1-го поверху площею 27,50 кв. м. (В)
Україна, Львівська обл., смт. Підкамінь, вул. Незалежності, 48
06.12.2022
Львівська обл., м. Белз, вул. Савенка, 8. Оренда – приміщення гаражу площею 40,3 кв.м. (В)
2 599.75 грн
64.51 грн / м2
Приміщення
Львівська обл., м. Белз, вул. Савенка, 8. Оренда – приміщення гаражу площею 40,3 кв.м. (В)
Україна, Львівська обл., м. Белз, вул. Савенка, 8
05.06.2025
Тернопільська обл., м. Тернопіль, вул. Бордуляка, 5. Оренда – приміщення складу на 2-му поверсі площею 290 кв.м. (В)
17 400.00 грн
60.00 грн / м2
Приміщення
Тернопільська обл., м. Тернопіль, вул. Бордуляка, 5. Оренда – приміщення складу на 2-му поверсі площею 290 кв.м. (В)
Україна, Львівська обл., м. Тернопіль, вул. Бордуляка, 5
Львівська обл., смт. Верхнє Синьовидне, вул. Січових Стрільців, 106. Оренда – приміщення гаражів площею 318,20 кв.м. (В)
1 867.83 грн
5.87 грн / м2
Приміщення
Львівська обл., смт. Верхнє Синьовидне, вул. Січових Стрільців, 106. Оренда – приміщення гаражів площею 318,20 кв.м. (В)
Україна, Львівська обл., смт. Верхнє Синьовидне, вул. Січових Стрільців, 106
Переглянуті пропозиції
15.07.2025
м.Харків, пр-т Ювілейний,66. Оренда – приміщення 2-го поверху площею 10,6 кв.м (В)
578.34 грн
54.56 грн / м2
Приміщення
м.Харків, пр-т Ювілейний,66. Оренда – приміщення 2-го поверху площею 10,6 кв.м (В)
Україна, Харківська обл., Харків, Ювілейний проспект, 66
Львівська обл., м. Львів, вул. Берестяна, 2. Оренда – приміщення  1-го поверху площею 140,2 кв.м. (В)
6 645.48 грн
47.40 грн / м2
Приміщення
Львівська обл., м. Львів, вул. Берестяна, 2. Оренда – приміщення 1-го поверху площею 140,2 кв.м. (В)
Україна, Львівська обл., м. Львів, вул. Берестяна, 2
16.07.2025
ДОЛВГОСТРОКОВА ОРЕНДА! Дніпропетровська обл., м. Дніпро, пр. Богдана Хмельницького, 28а. Оренда – приміщення 3-го поверху загальною площею 713,90 кв.м(В)
21 417.00 грн
30.00 грн / м2
Приміщення
ДОЛВГОСТРОКОВА ОРЕНДА! Дніпропетровська обл., м. Дніпро, пр. Богдана Хмельницького, 28а. Оренда – приміщення 3-го поверху загальною площею 713,90 кв.м(В)
Україна, Дніпропетровська обл., пр. Богдана Хмельницького, 28а, м. Дніпро
30.04.2024
Сумська обл., м. Суми, вул. Нижньосироватська, 64;   Оренда – приміщення складу площею 42,6 кв. м. (В)
2 019.24 грн
47.40 грн / м2
Приміщення
Сумська обл., м. Суми, вул. Нижньосироватська, 64; Оренда – приміщення складу площею 42,6 кв. м. (В)
Україна, Сумська обл., Суми, вул.Нижньосироватська буд., 64