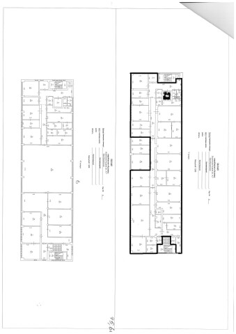
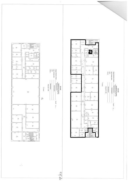
Кіровоградська обл., м. Кропивницький, вул. Преображенська, 5. Оренда – приміщень 5-го поверху площею 986,30 кв.м. (В)

66 802.10 грн
67.73 грн / м2
Україна, Кіровоградська обл., м. Кропивницький, вул. Преображенська, 5
Перейти до аукціону на сайті
  • Інформація
  • Опис
  • Документи
Дата оголошення пропозиції:
24 жовтня 2024
Площа:
986.30 м2
Тип об’єкта:
Приміщення
Тип аукціону:
Англійський аукціон
Статус аукціону:
Аукціон не відбувся
Тип угоди:
Оренда
Розмір мінімального кроку:
1 000.00 ₴
Розмір гарантійного внеску:
40 081.26 ₴
Початок прийому пропозицій:
24.10.2024 11:33:07
Завершення прийому пропозицій:
25.11.2024 20:00:00
Проведення аукціону:
26.11.2024 12:15:00
Лот:
CLE001-UA-20241024-36620
№ лоту (УТК):
UTK270522_03P
Лот виставляється на торги (раз):
10
Стислий опис майна:
Пропонується до оренди приміщення 5-го поверху площею 986,30 кв.м. Розташування - будівля знаходиться у центральній частині міста. Поруч знаходяться парк, віділення банка, ринок, продуктові магазини, високий автомобільний і пішохідний потоки. Стан приміщення частково задовільний, підходить для магазину, офісу., складу, ресторану. Ідеальне місце під розвиток будь-якого бізнесу. Можливість передачі приміщень в суборенду. Характеристики: Кількість поверхів – 7 Загальна площа – 8022,50 кв.м. Площа запропонована до оренди – 986,30 кв.м. Електропостачання Водопостачання та водовідведення Земельна ділянка – 0,3773 га (договір оренди)
Адреса місцезнаходження майна:
Україна, Кіровоградська обл., м. Кропивницький, вул. Преображенська, 5
Схожі пропозиції
22.09.2023
Кіровоградська обл., м. Бобринець, вул. Незалежності, 111. Оренда – приміщення 2-го поверху площею 138,30 кв.м. (В)
6 209.67 грн
44.90 грн / м2
Приміщення
Кіровоградська обл., м. Бобринець, вул. Незалежності, 111. Оренда – приміщення 2-го поверху площею 138,30 кв.м. (В)
Україна, Кіровоградська обл., м. Бобринець, вул. Незалежності, 111
Кіровоградська обл., м. Світловодськ, вул. Ювілейна, 9. Оренда – приміщення 1-го, 3-го та 5 го поверху
38 889.73 грн
22.80 грн / м2
Приміщення
Кіровоградська обл., м. Світловодськ, вул. Ювілейна, 9. Оренда – приміщення 1-го, 3-го та 5 го поверху
Україна, Кіровоградська обл., м. Світловодськ, вул. Ювілейна, буд. 9
21.02.2025
Кіровоградська обл., с. Злинка, вул. Центральна, 88а. Оренда – приміщення 1-го поверху площею 116,40 кв.м.(П)
6 581.72 грн
56.54 грн / м2
Приміщення
Кіровоградська обл., с. Злинка, вул. Центральна, 88а. Оренда – приміщення 1-го поверху площею 116,40 кв.м.(П)
Україна, Кіровоградська обл., с. Злинка, вул. Центральна, 88а
Кіровоградська обл., смт Онуфріївка, вул. М. Скляра, 7. Оренда – приміщення 1-го та 2-го поверху площею 312,80 кв.м.(В)
18 279.41 грн
58.44 грн / м2
Приміщення
Кіровоградська обл., смт Онуфріївка, вул. М. Скляра, 7. Оренда – приміщення 1-го та 2-го поверху площею 312,80 кв.м.(В)
Україна, Кіровоградська обл., смт Онуфріївка, вул. М. Скляра, 7
Переглянуті пропозиції
20.08.2024
Одеська обл., Білгород-Дністровський р-н, смт. Сарата, вул. Захисників України, 15. Оренда – приміщення 2-го поверху загальною площею 99,70 кв.м (В)
6 752.68 грн
67.73 грн / м2
Приміщення
Одеська обл., Білгород-Дністровський р-н, смт. Сарата, вул. Захисників України, 15. Оренда – приміщення 2-го поверху загальною площею 99,70 кв.м (В)
Україна, Одеська обл., Білгород-Дністровський р-н, смт. Сарата, вул. Захисників України, 15
30.04.2024
м. Харків, вул. Конторська,14.Оренда – приміщення 2-го поверху площею 20,5 кв.м (В)
1 420.65 грн
69.30 грн / м2
Приміщення
м. Харків, вул. Конторська,14.Оренда – приміщення 2-го поверху площею 20,5 кв.м (В)
Україна, Харківська обл., м. Харків, вул. Конторська,14
09.04.2024
Дніпропетровська обл., м. Синельникове, вул. Богми, 4;  Оренда – приміщення 2-го поверху, площею 213,5 кв.м. (В)
2 307.94 грн
10.81 грн / м2
Приміщення
Дніпропетровська обл., м. Синельникове, вул. Богми, 4; Оренда – приміщення 2-го поверху, площею 213,5 кв.м. (В)
Україна, Дніпропетровська обл., м. Синельникове, вулиця Богми, 4
13.08.2024
Сумська обл., Охтирський р-н, с. Мащанка, вул. Лісанова, буд. 8-А;   Оренда – нежитлове приміщення площею 27,20 кв. м. (В)
544.00 грн
20.00 грн / м2
Приміщення
Сумська обл., Охтирський р-н, с. Мащанка, вул. Лісанова, буд. 8-А; Оренда – нежитлове приміщення площею 27,20 кв. м. (В)
Україна, Сумська обл., с. Мащанка,, вулиця Лісанова, 8-А